← Bromley

Status

Pending House extension
Received
Not recorded
New homes
0

Full proposal

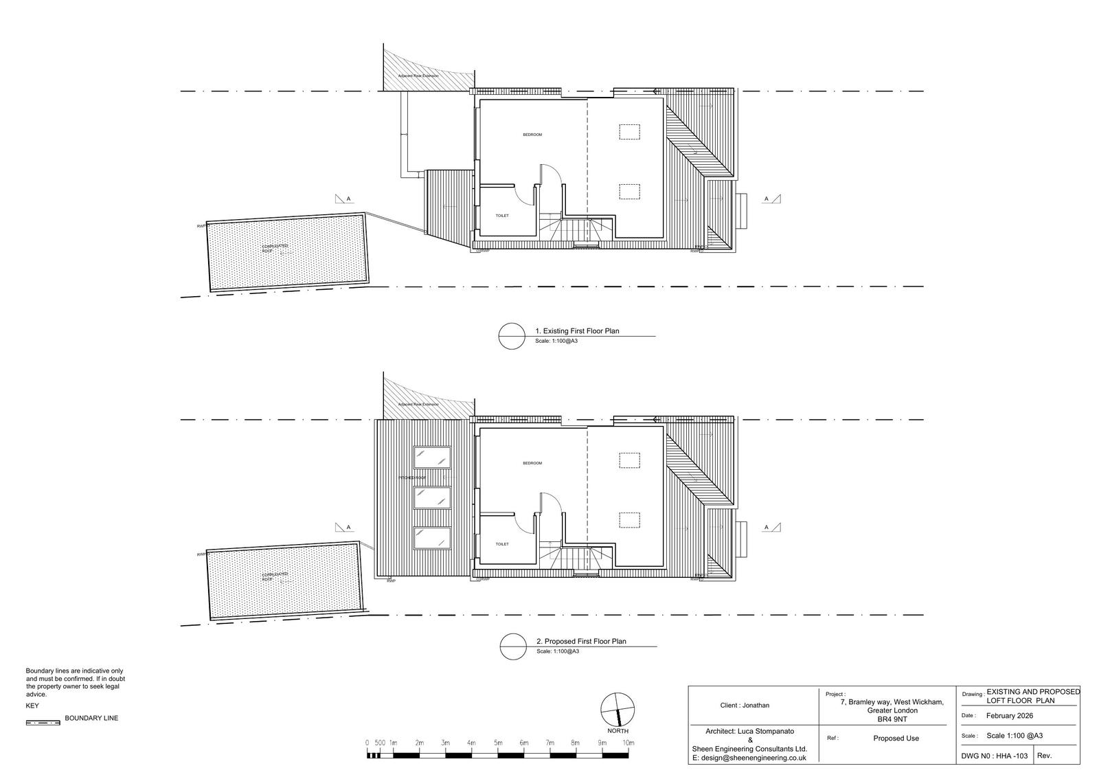
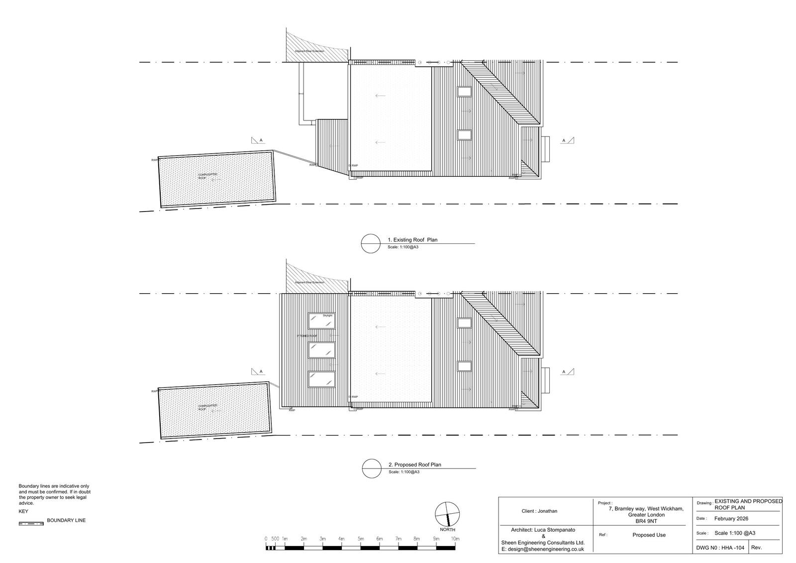
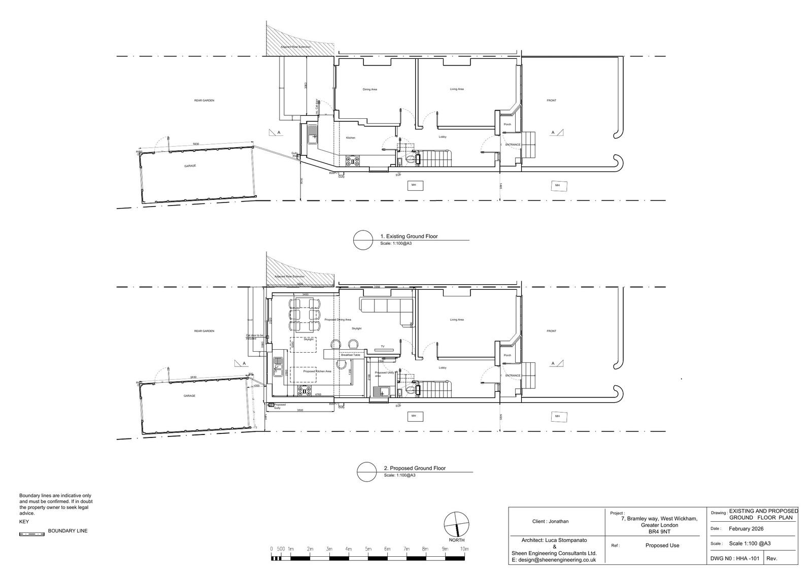
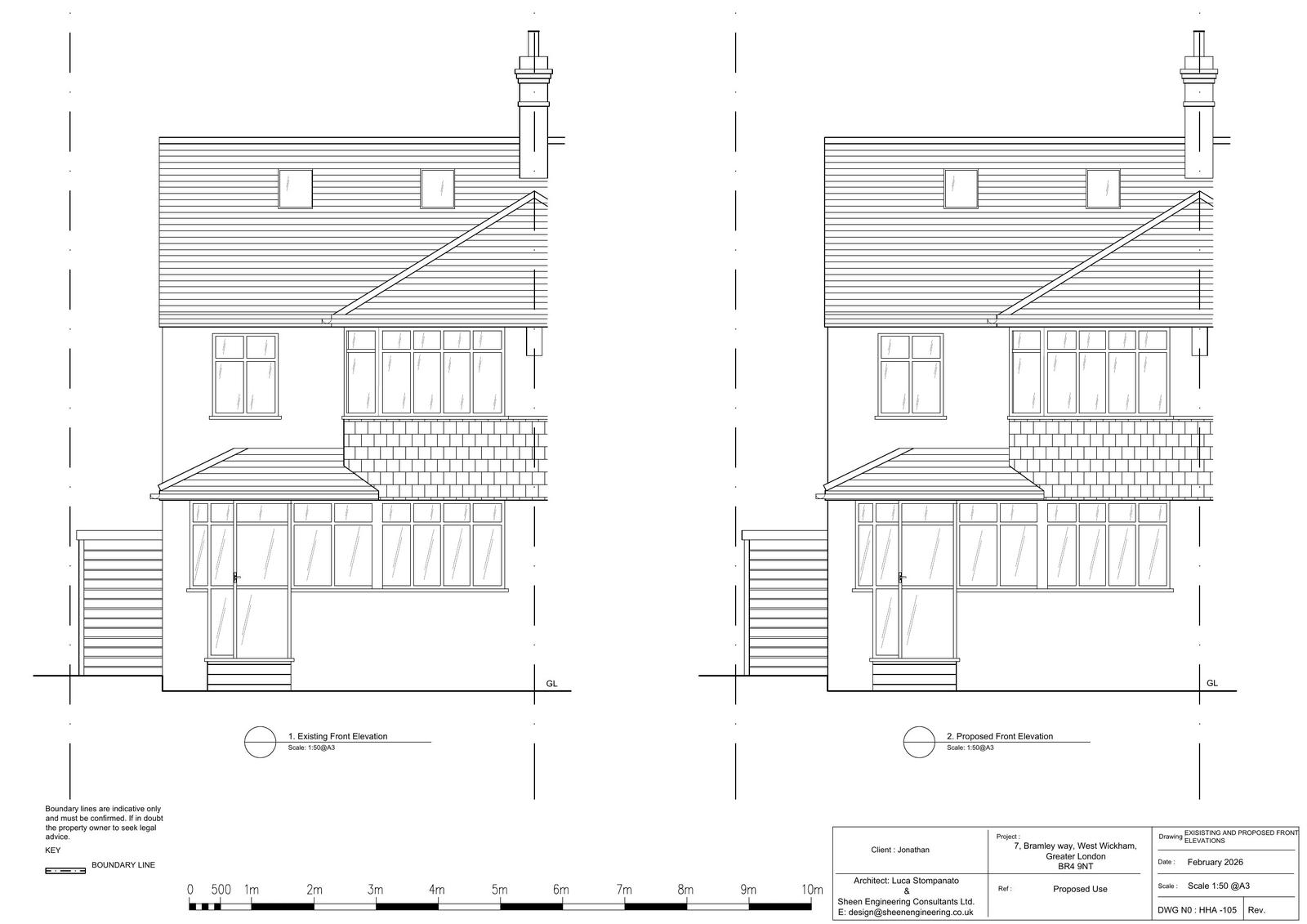
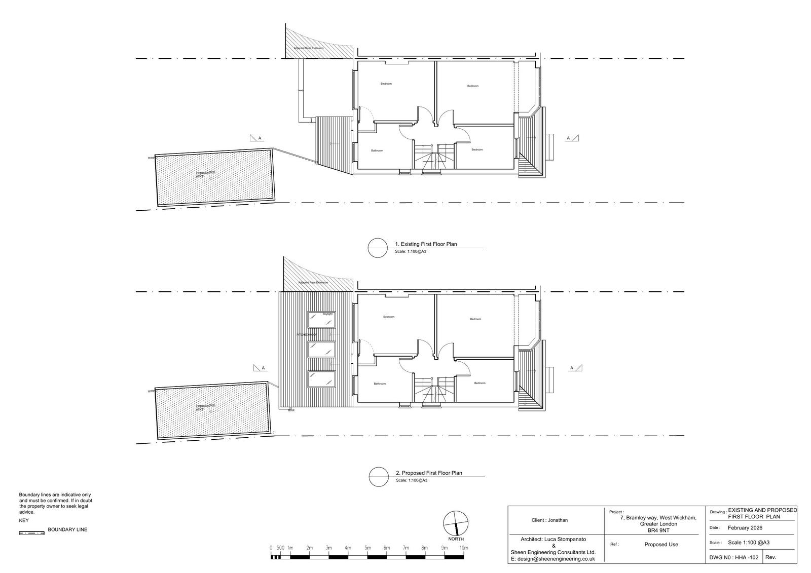
Reference 26/00687/HPA Received Date 20/2/2026 Application type Householder planning permission Site address 7 BRAMLEY WAY, WEST WICKHAM, BR4 9NT Description Demolition of rear extension. Single storey rear extension and partial demolition of existing rear garage to reduce length. Status Valid Decision

Documents

Uncategorised
Archived · Original link
Uncategorised
Archived · Original link
Uncategorised
Archived · Original link
Uncategorised
Archived · Original link
Uncategorised
Archived · Original link
Uncategorised
Archived · Original link
Uncategorised
Archived · Original link
Uncategorised
Archived · Original link
Uncategorised
Archived · Original link
Uncategorised
Archived · Original link
Uncategorised
Archived · Original link
Uncategorised
Archived · Original link
Uncategorised
Archived · Original link
Uncategorised
Archived · Original link
Uncategorised
Archived · Original link
Uncategorised
Archived · Original link

Have your say

Your comment matters. Councils must consider every representation that raises material planning considerations.

Write a comment