← Bromley

Status

Pending House extension
Received
Not recorded
New homes
0

Full proposal

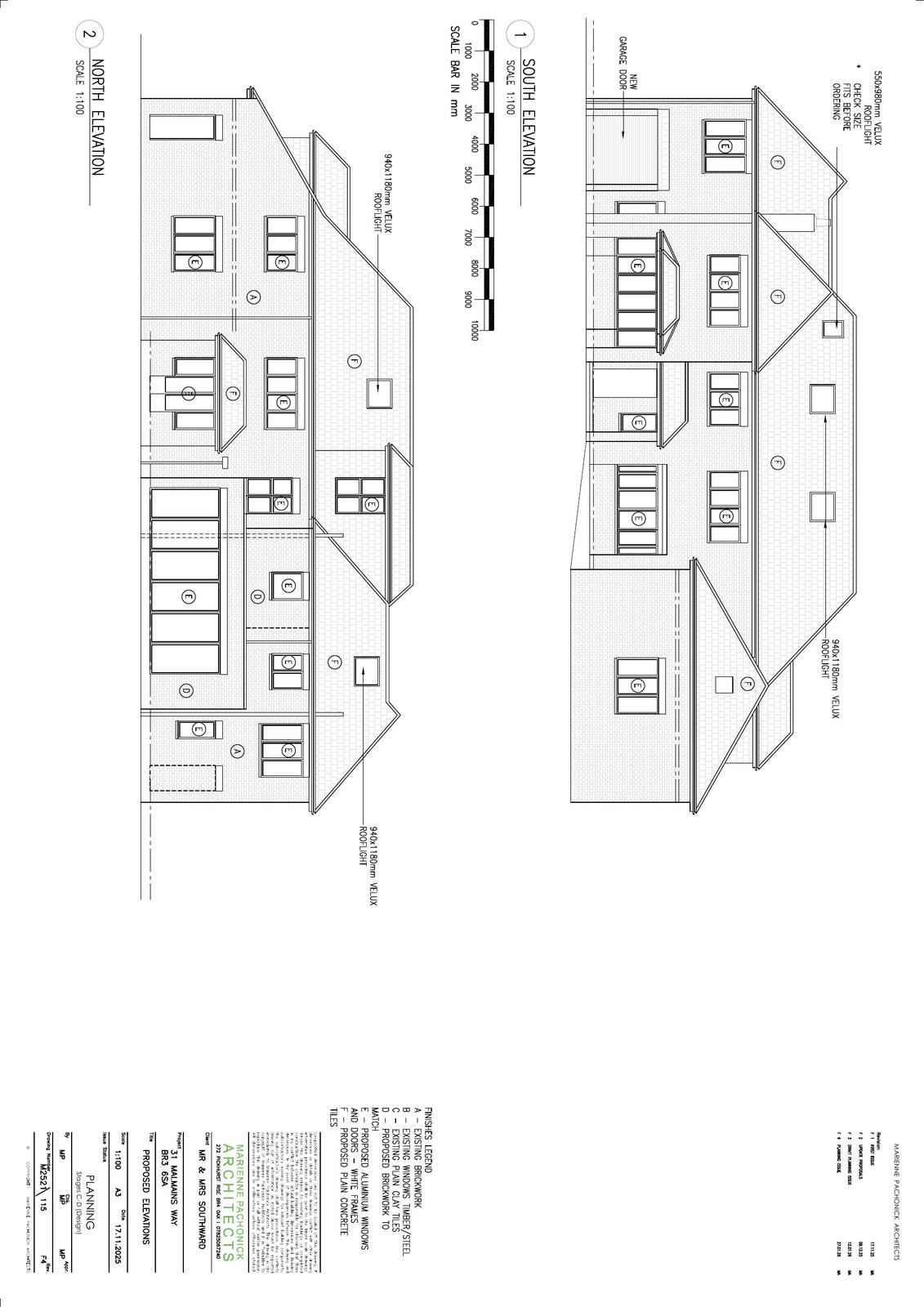
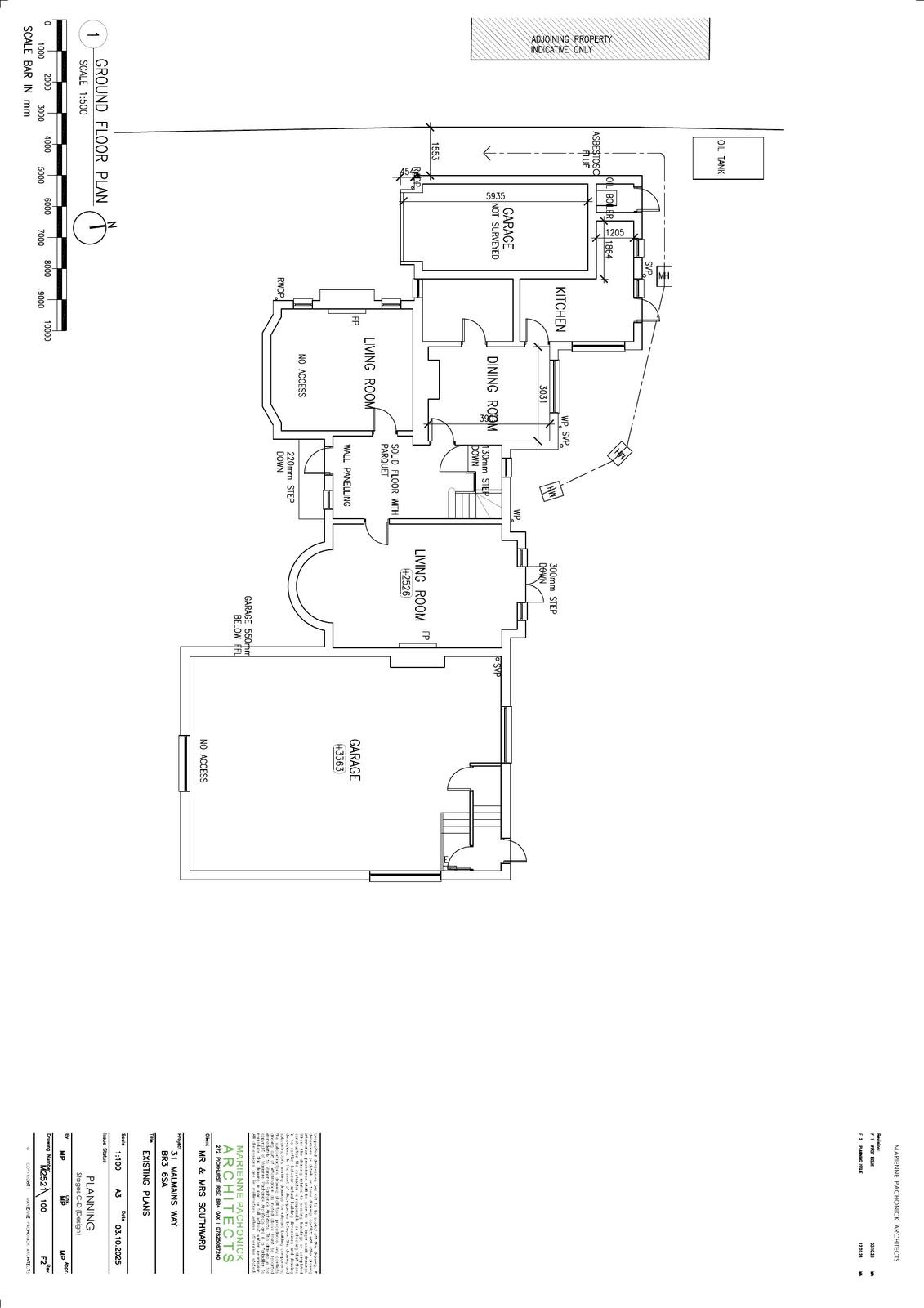
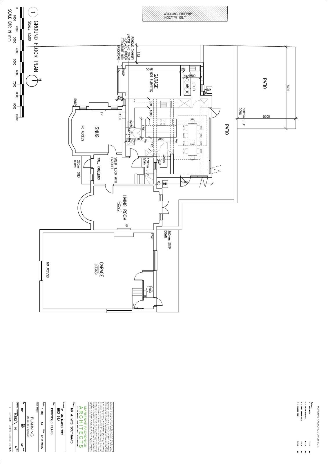
Reference 26/00702/HPA Received Date 23/2/2026 Application type Householder planning permission Site address 31 MALMAINS WAY, BECKENHAM, BR3 6SA Description Replacement of timber structure around smaller side garage and addition of new garage doors. Part one/two storey rear extension with new patio area and hard landscaping. Elevational alterations to include new windows. Roof alterations to include crown roof, loft conversion with rear dormer and roof lights. Status Valid Decision

Documents

Uncategorised
Archived · Original link
Uncategorised
Archived · Original link
Uncategorised
Archived · Original link
Uncategorised
Archived · Original link
Uncategorised
Archived · Original link
Uncategorised
Archived · Original link
Uncategorised
Archived · Original link
Uncategorised
Archived · Original link
Uncategorised
Archived · Original link
Uncategorised
Archived · Original link
Uncategorised
Archived · Original link
Uncategorised
Archived · Original link
Uncategorised
Archived · Original link
Uncategorised
Archived · Original link
Uncategorised
Archived · Original link
Uncategorised
Archived · Original link

Have your say

Your comment matters. Councils must consider every representation that raises material planning considerations.

Write a comment