← Bromley

Status

Pending House extension
Received
Not recorded
New homes
0

Full proposal

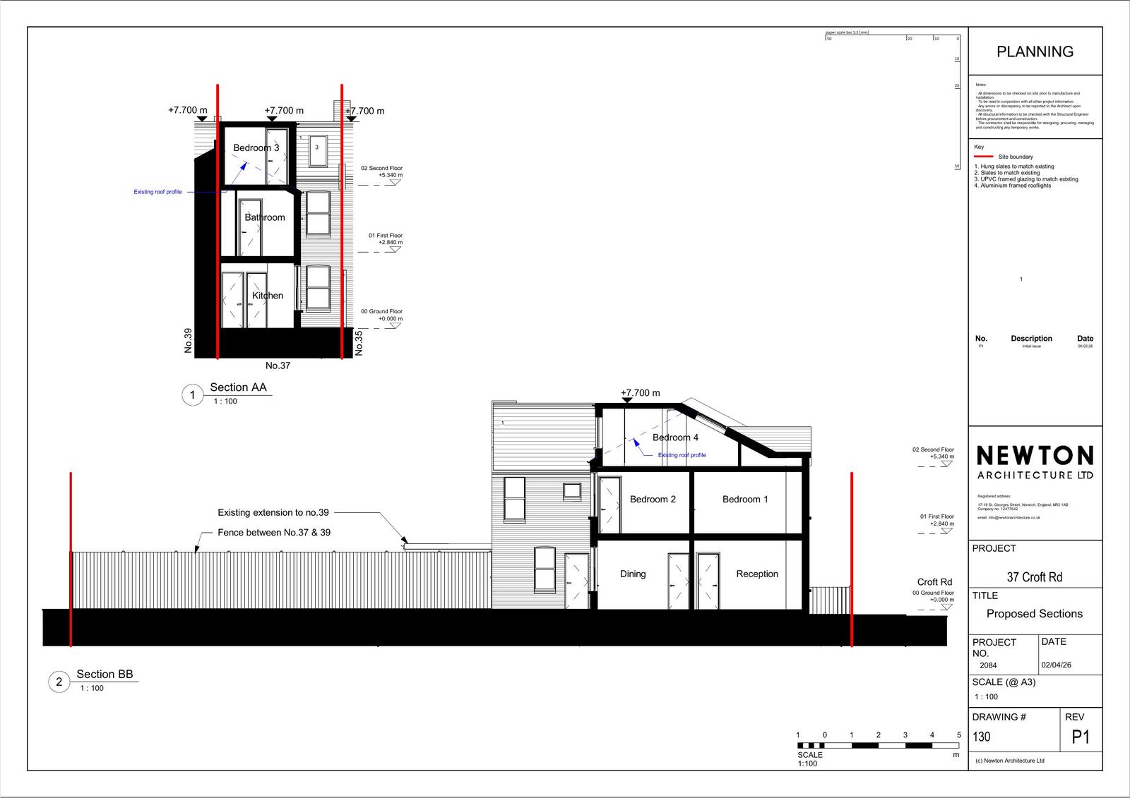
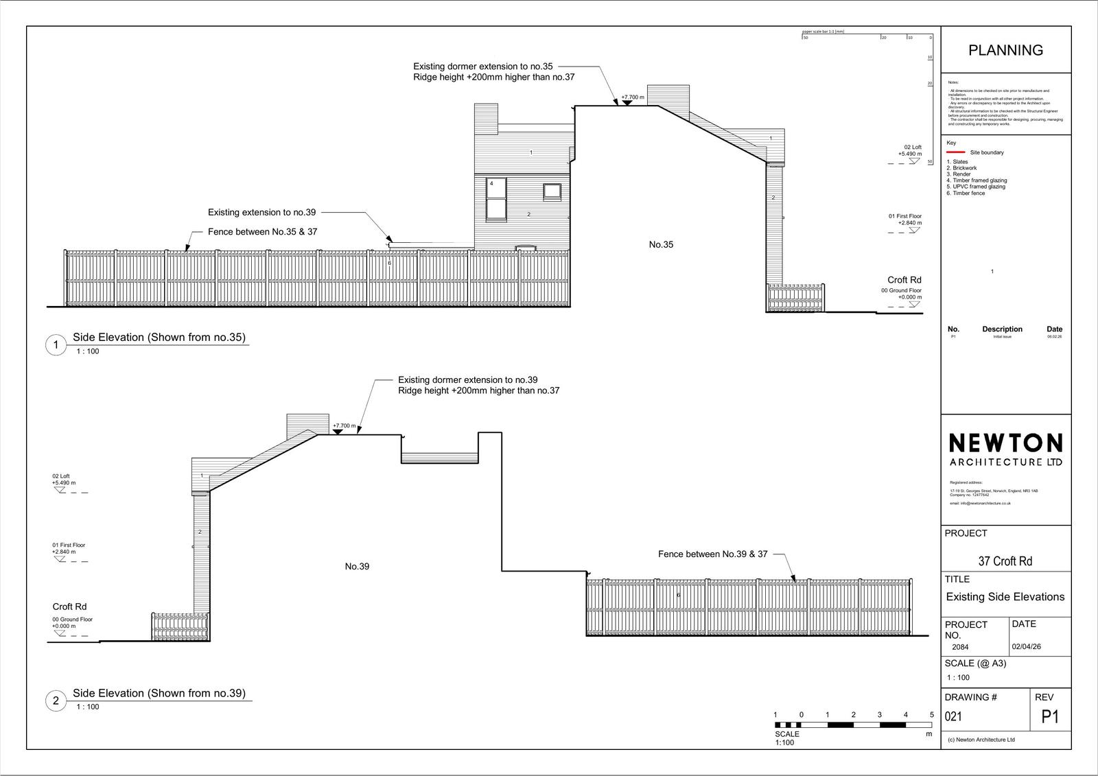
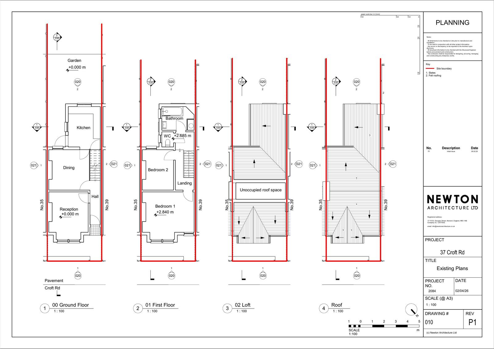
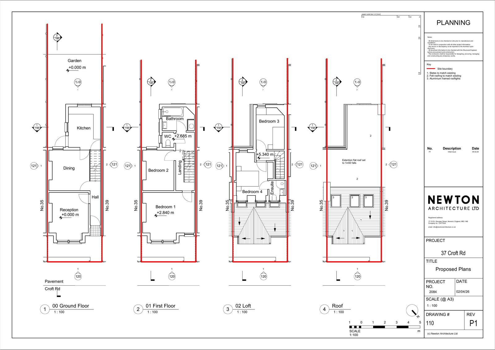
Reference 26/00717/HPA Received Date 24/2/2026 Application type Householder planning permission Site address 37 CROFT ROAD, BROMLEY, BR1 4DR Description Loft conversion with L shaped roof extension including increased ridge height rear dormer and front roof lights. Status Valid Decision

Documents

Uncategorised
Archived · Original link
Uncategorised
Archived · Original link
Uncategorised
Archived · Original link
Uncategorised
Archived · Original link
Uncategorised
Archived · Original link
Uncategorised
Archived · Original link
Uncategorised
Archived · Original link
Uncategorised
Archived · Original link
Uncategorised
Archived · Original link
Uncategorised
Archived · Original link
Uncategorised
Archived · Original link
Uncategorised
Archived · Original link
Uncategorised
Archived · Original link

Have your say

Your comment matters. Councils must consider every representation that raises material planning considerations.

Write a comment