← Bromley

Status

Pending Commercial
Received
Not recorded
New homes
0

Full proposal

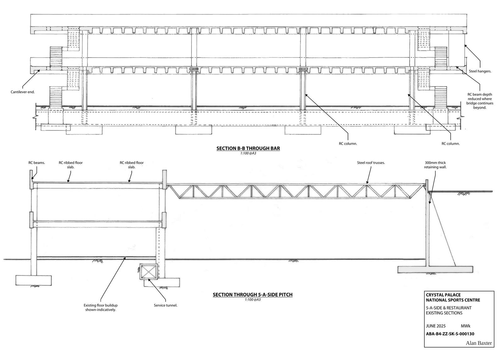
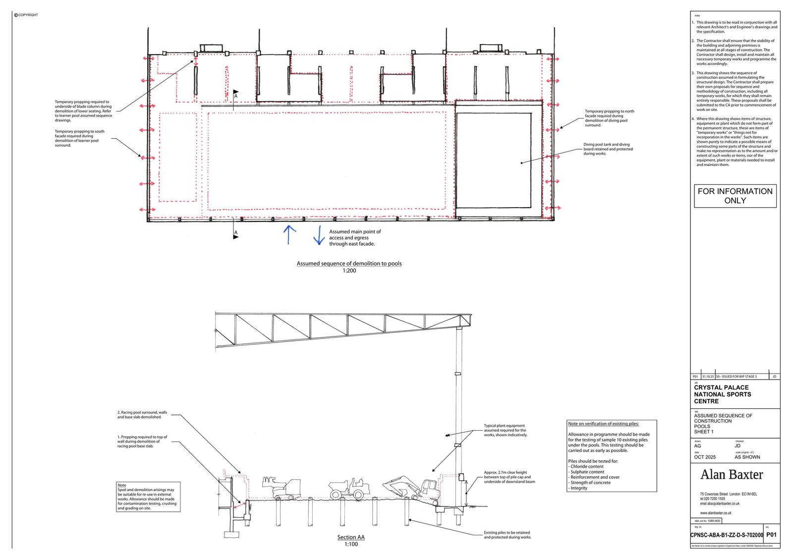
Reference 26/00738/FPA Received Date 18/2/2026 Application type Full planning permission Site address CRYSTAL PALACE NATIONAL SPORTS CENTRE, LEDRINGTON ROAD, ANERLEY, LONDON, SE19 2GA Description Full planning application for the refurbishment and enhancement of Crystal Palace National Sports Centre comprising: Demolition of the 25m Pool Building, Lodge Tower and Lower Buildings; Refurbishment of the Crystal Palace National Sports Centre (Main Building), including external alterations; reprovision of an indoor 25m length swimming pool, provision of a replacement energy centre, improvement and enhancement of indoor and outdoor sports facilities; Refurbishment and external works to the Athletics Stadium including erection of a new accessible walkway and additional Stadium seating; Refurbishment and alterations of the 5-a-side building, reduction of parking spaces; New and enhanced external sports facilities including a Sports Plaza, courts and Pitches; and, Ancillary works and improvements to public routes, access, parking and landscape. Status Valid Decision

Documents

Uncategorised
Archived · Original link
Uncategorised
Archived · Original link
Uncategorised
Archived · Original link
Uncategorised
Archived · Original link
Uncategorised
Archived · Original link
Uncategorised
Archived · Original link
Uncategorised
Archived · Original link
Uncategorised
Archived · Original link
Uncategorised
Archived · Original link
Uncategorised
Archived · Original link
Uncategorised
Archived · Original link
Uncategorised
Archived · Original link
Uncategorised
Archived · Original link
Uncategorised
Archived · Original link
Uncategorised
Archived · Original link
Uncategorised
Archived · Original link
Uncategorised
Archived · Original link
Uncategorised
Archived · Original link
Uncategorised
Archived · Original link
Uncategorised
Archived · Original link

Have your say

Your comment matters. Councils must consider every representation that raises material planning considerations.

Write a comment