← Bromley

Status

Pending House extension
Received
Not recorded
New homes
0

Full proposal

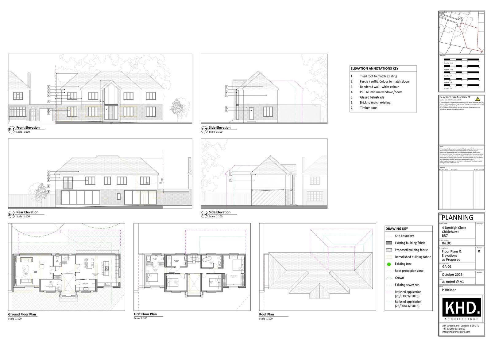
Reference 26/00759/HPA Received Date 26/2/2026 Application type Householder planning permission Site address 4 DENBIGH CLOSE, CHISLEHURST, BR7 5EB Description Removal of chimney, part demolition and conversion of garage to habitable space, construction of first floor side extension, two storey front extension and elevational alterations. Status Valid Decision

Documents

Uncategorised
Archived · Original link
Uncategorised
Archived · Original link
Uncategorised
Archived · Original link
Uncategorised
Archived · Original link
Uncategorised
Archived · Original link
Uncategorised
Archived · Original link

Have your say

Your comment matters. Councils must consider every representation that raises material planning considerations.

Write a comment