← Bromley

Status

Pending House extension
Received
Not recorded
New homes
0

Full proposal

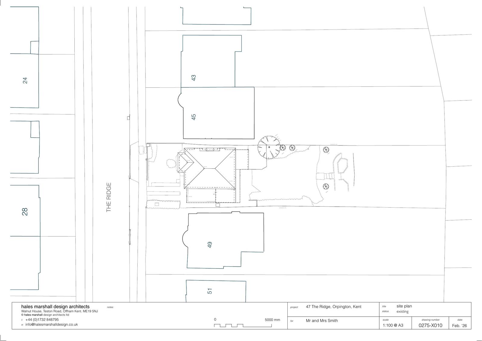
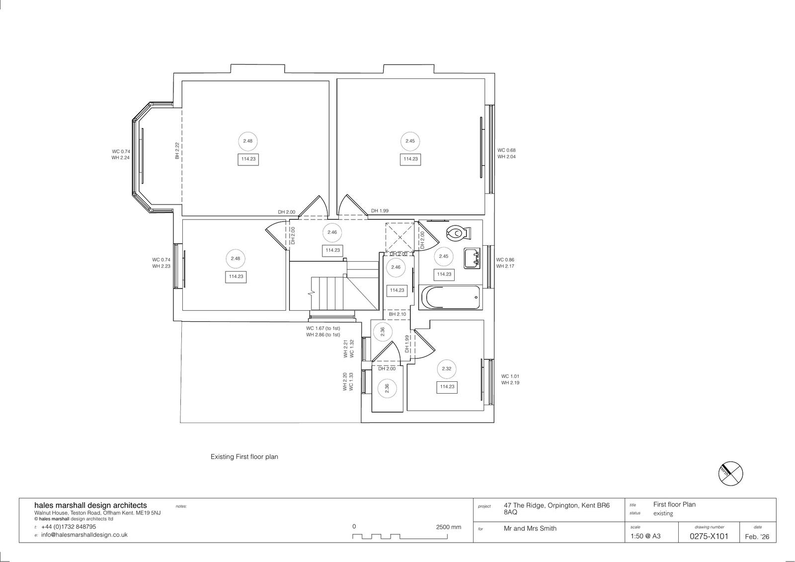
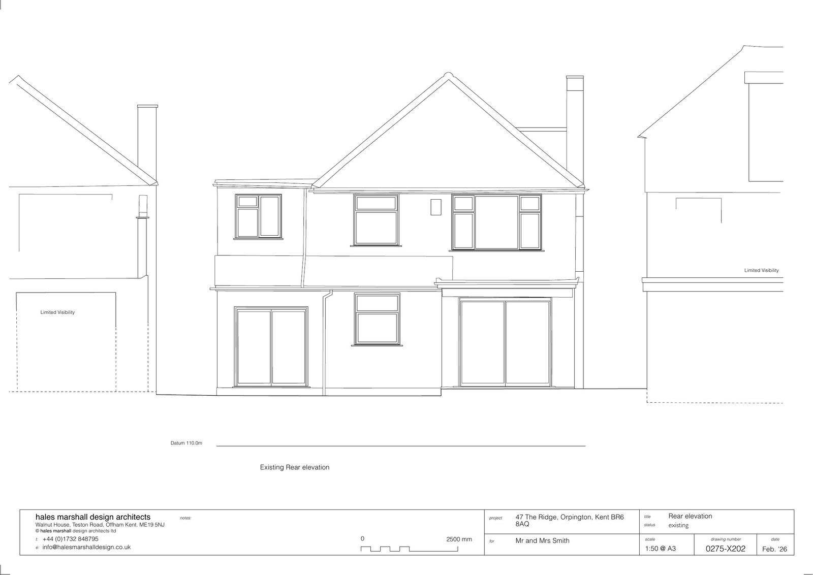
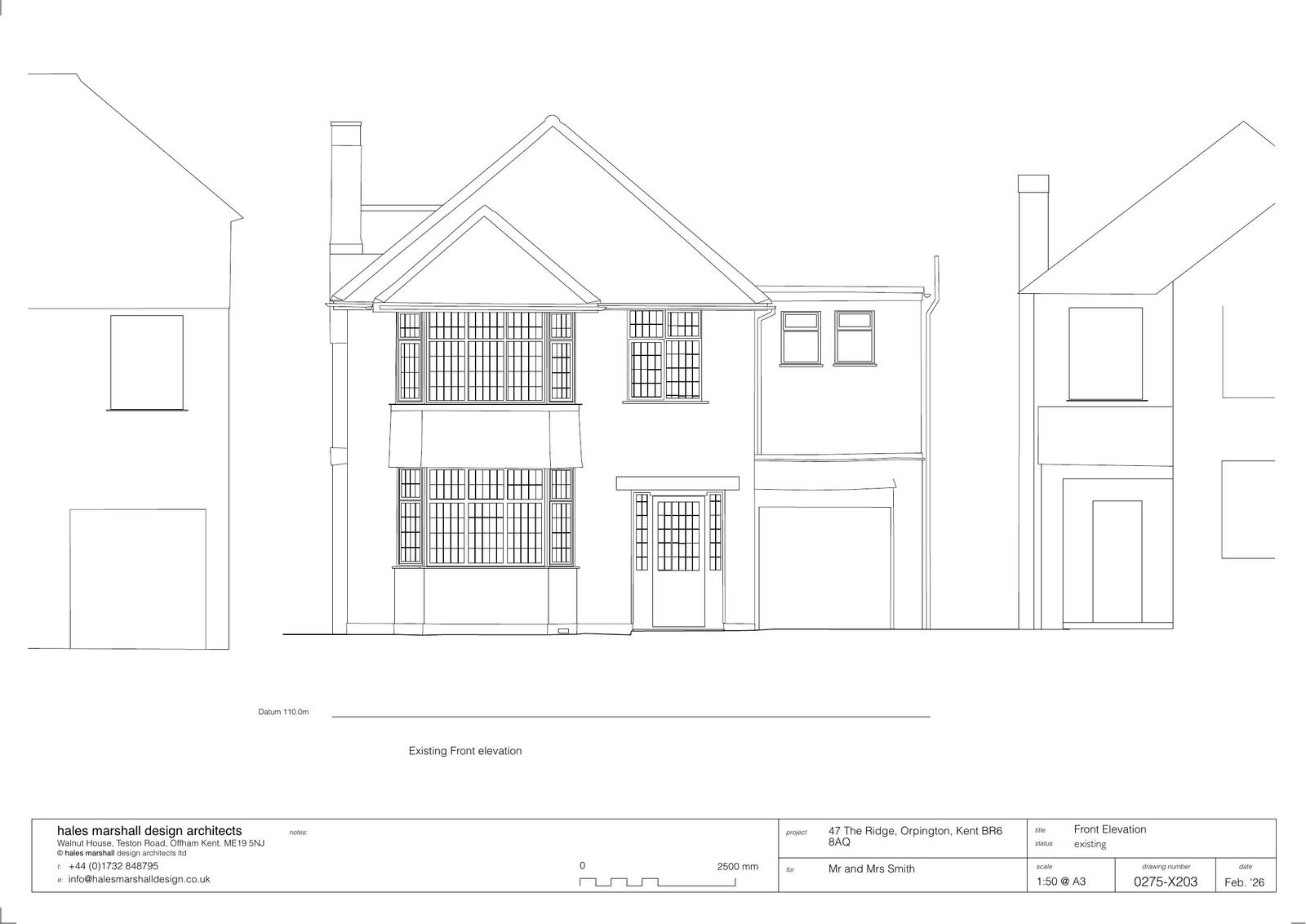
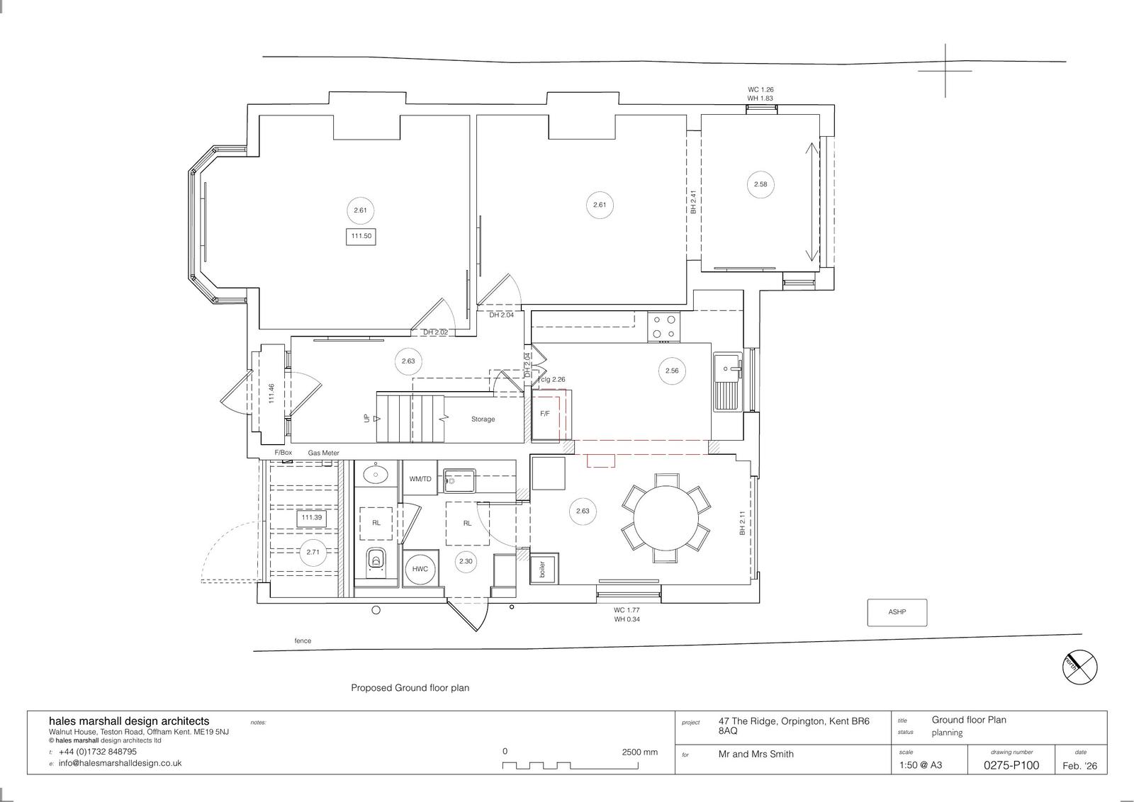
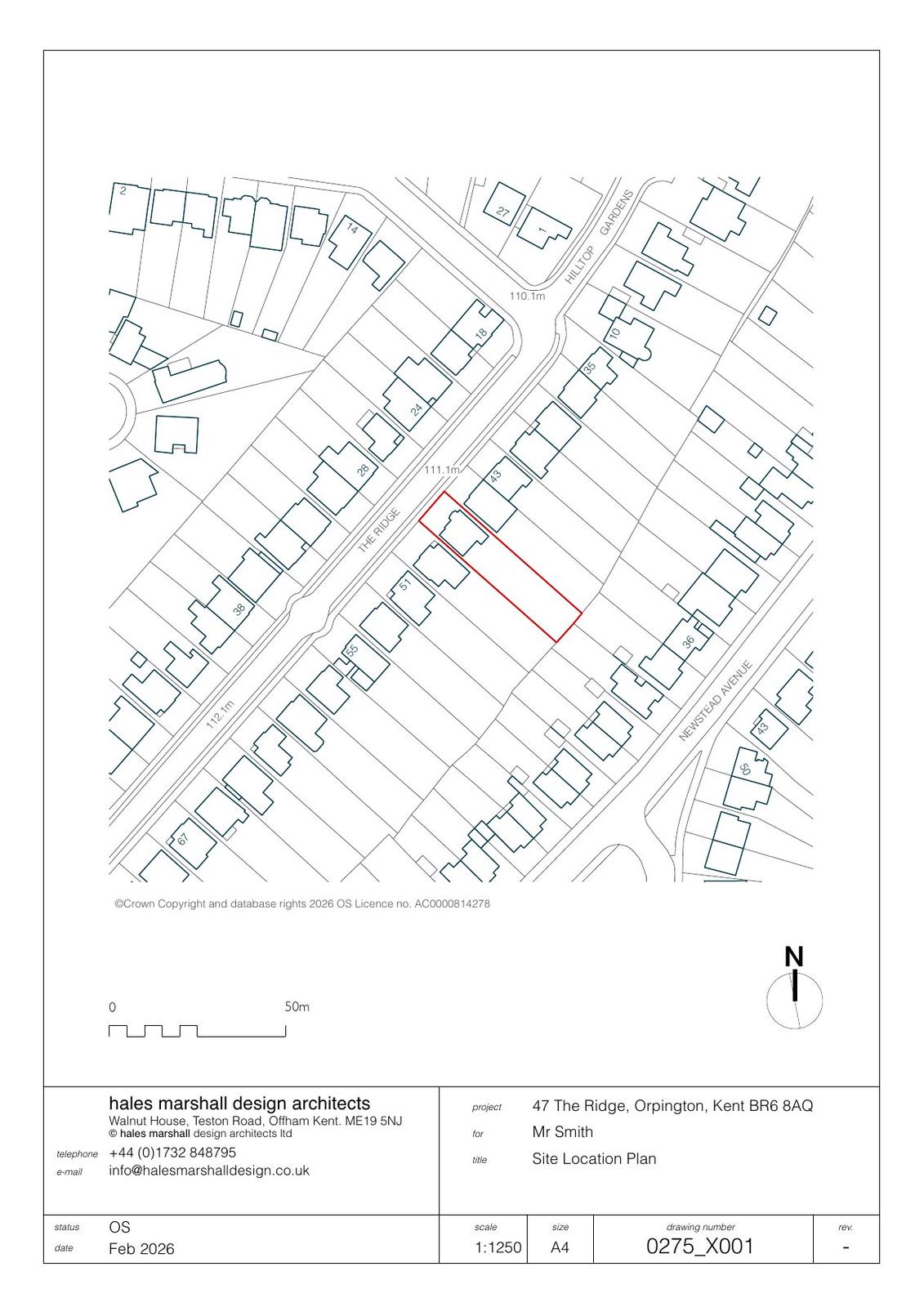
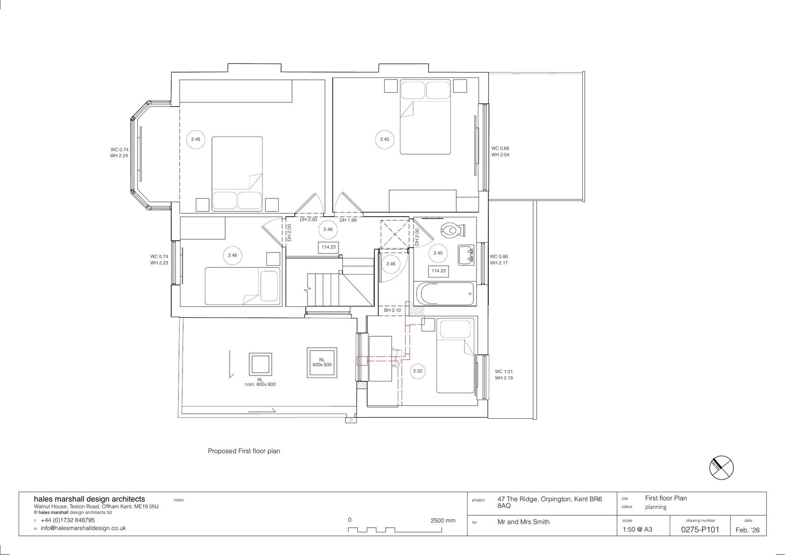
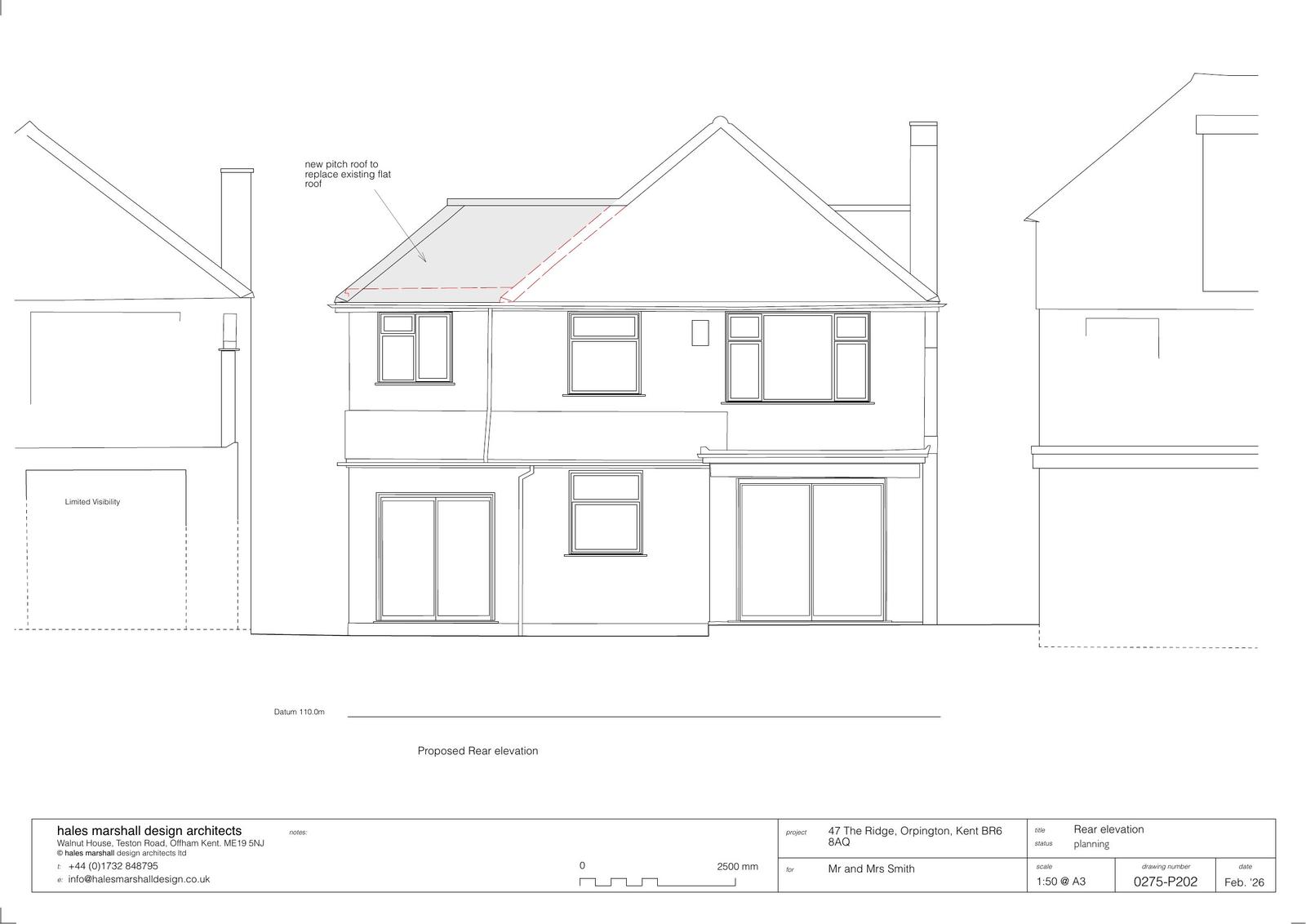
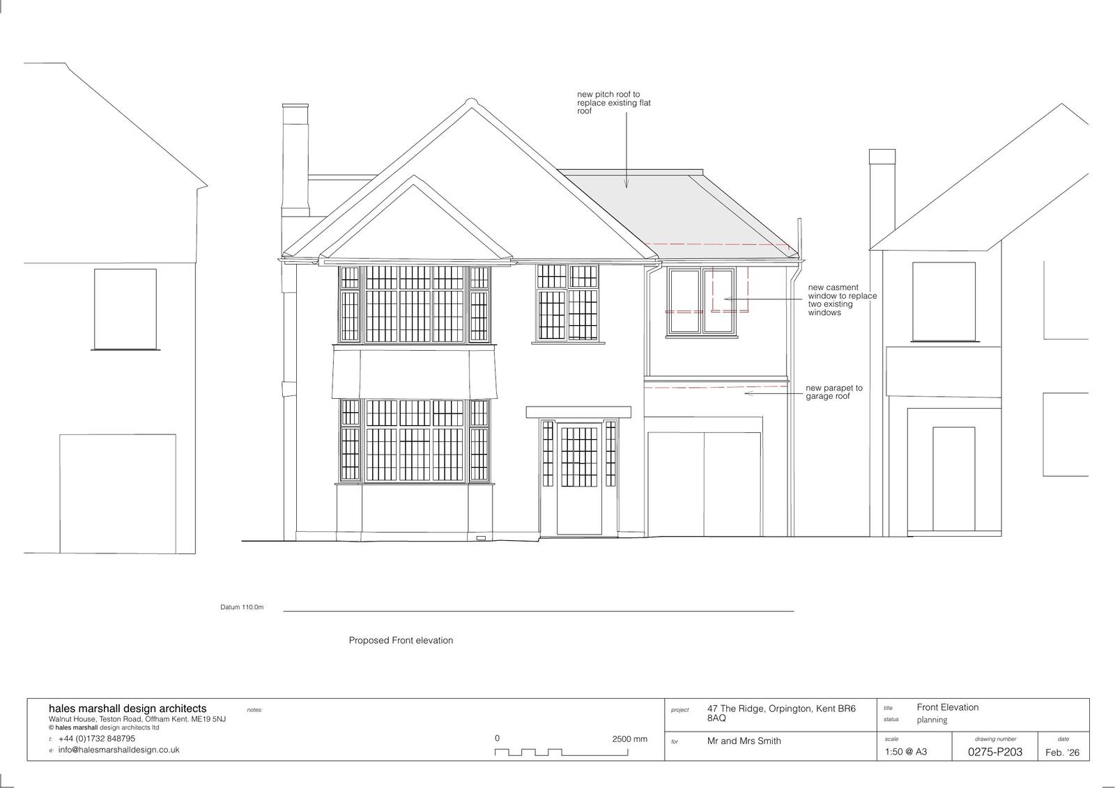
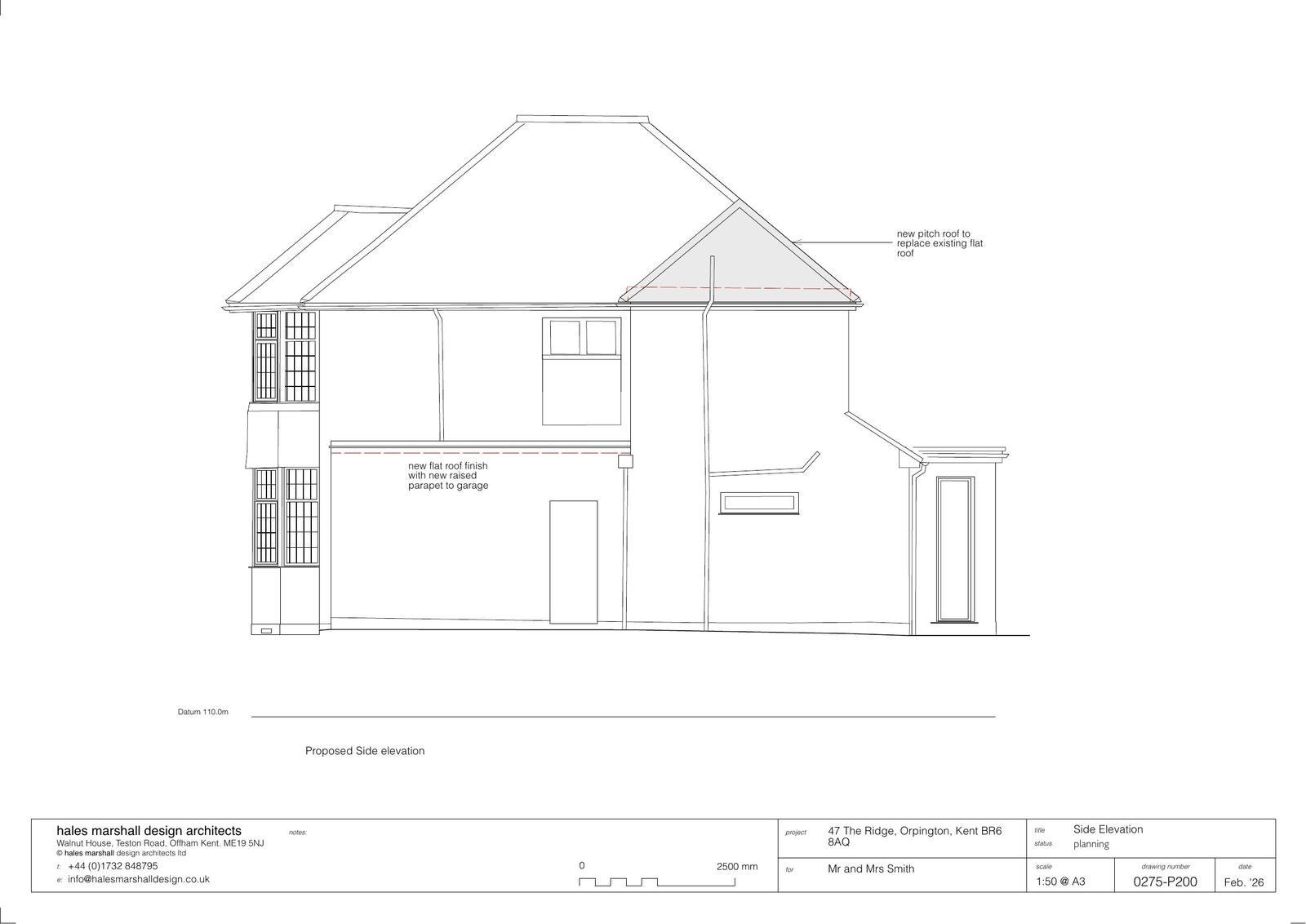
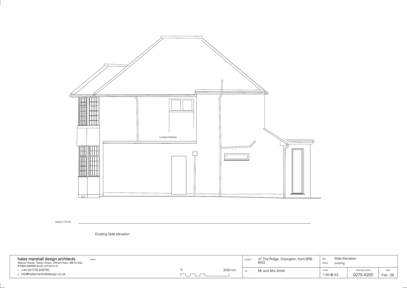
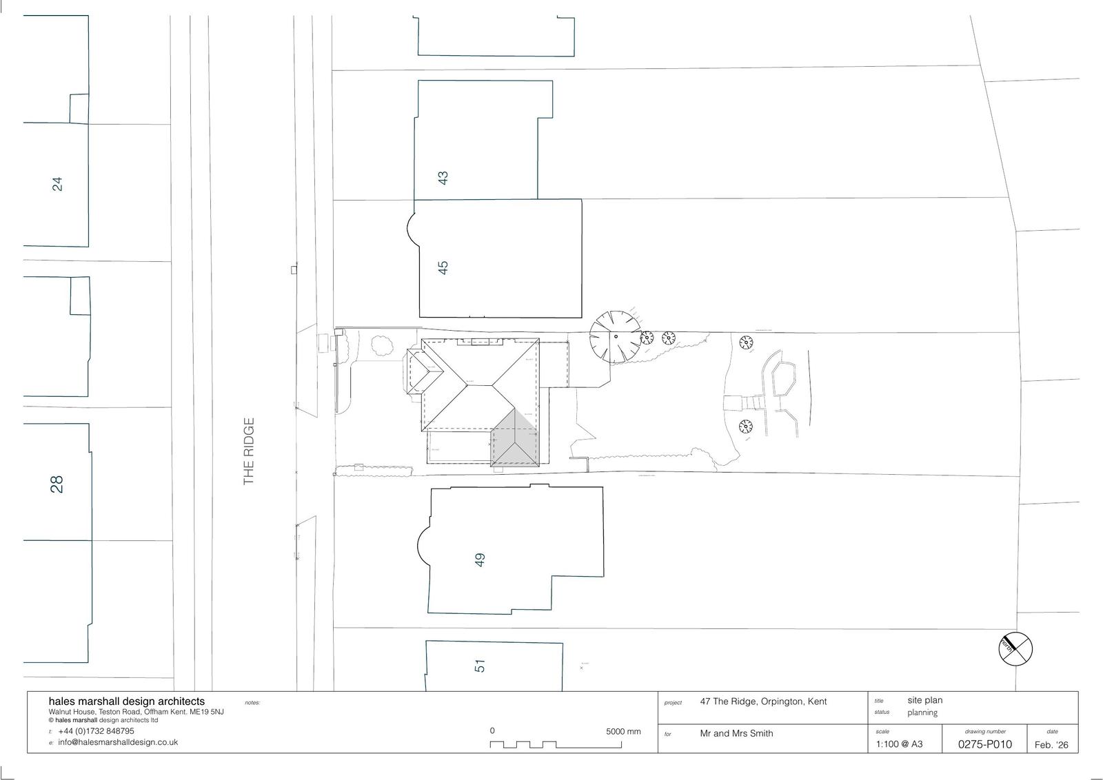
Reference 26/00766/HPA Received Date 26/2/2026 Application type Householder planning permission Site address 47 THE RIDGE, ORPINGTON, BR6 8AQ Description Conversion of garage to habitable space, roof alterations to existing two storey side extension and garage roof, elevational alterations including new first floor window to front . Status Valid Decision

Documents

Uncategorised
Archived · Original link
Uncategorised
Archived · Original link
Uncategorised
Archived · Original link
Uncategorised
Archived · Original link
Uncategorised
Archived · Original link
Uncategorised
Archived · Original link
Uncategorised
Archived · Original link
Uncategorised
Archived · Original link
Uncategorised
Archived · Original link
Uncategorised
Archived · Original link
Uncategorised
Archived · Original link
Uncategorised
Archived · Original link
Uncategorised
Archived · Original link
Uncategorised
Archived · Original link
Uncategorised
Archived · Original link
Uncategorised
Archived · Original link
Uncategorised
Archived · Original link

Have your say

Your comment matters. Councils must consider every representation that raises material planning considerations.

Write a comment