← Bromley

Status

Pending House extension
Received
Not recorded
New homes
0

Full proposal

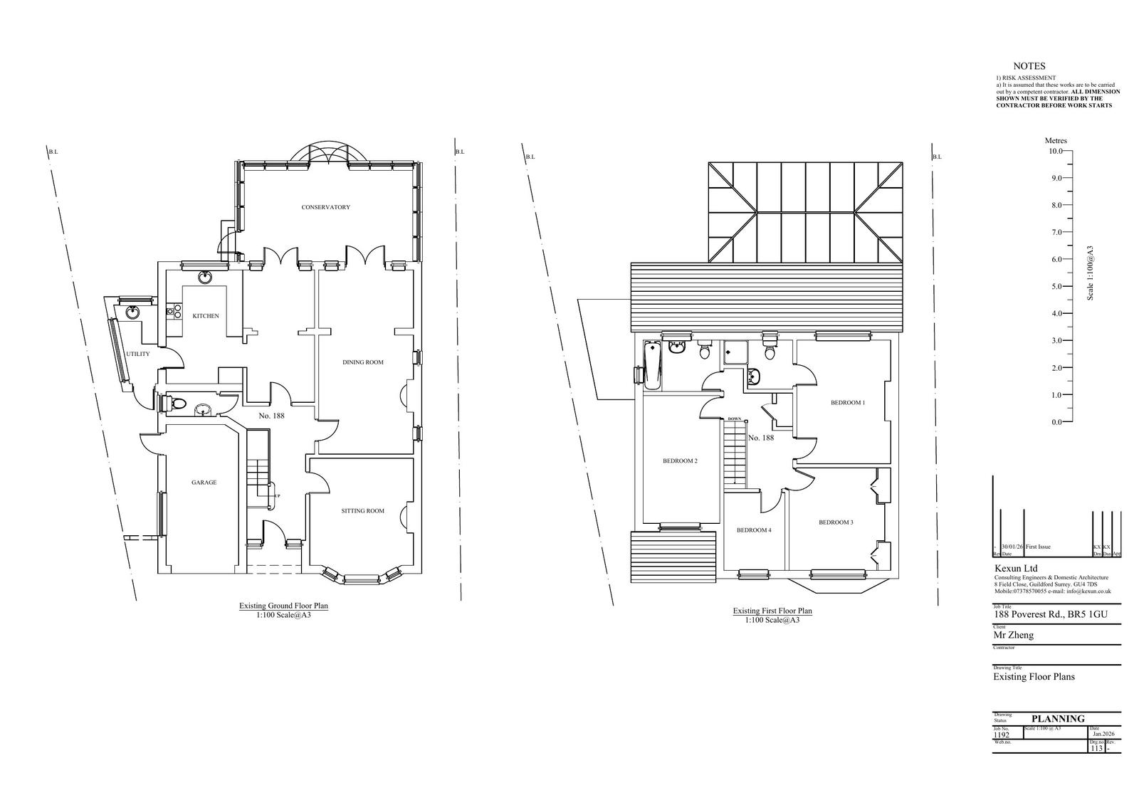
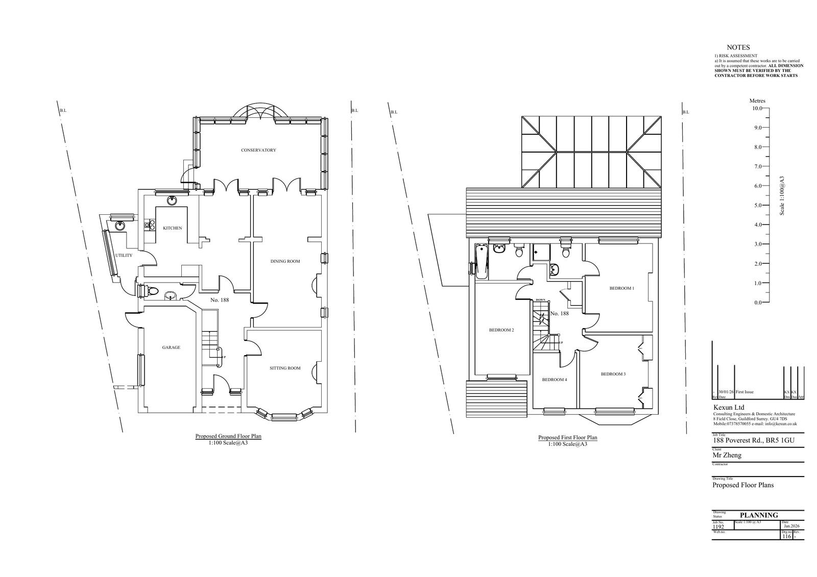
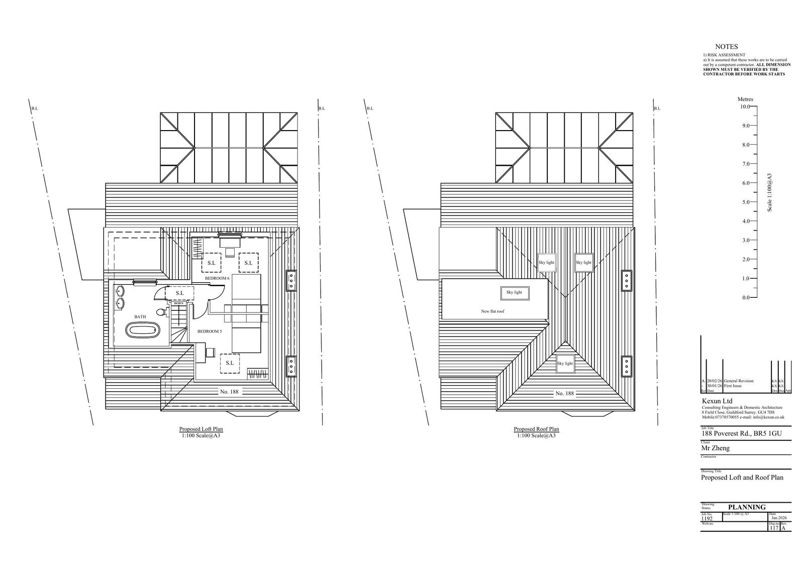
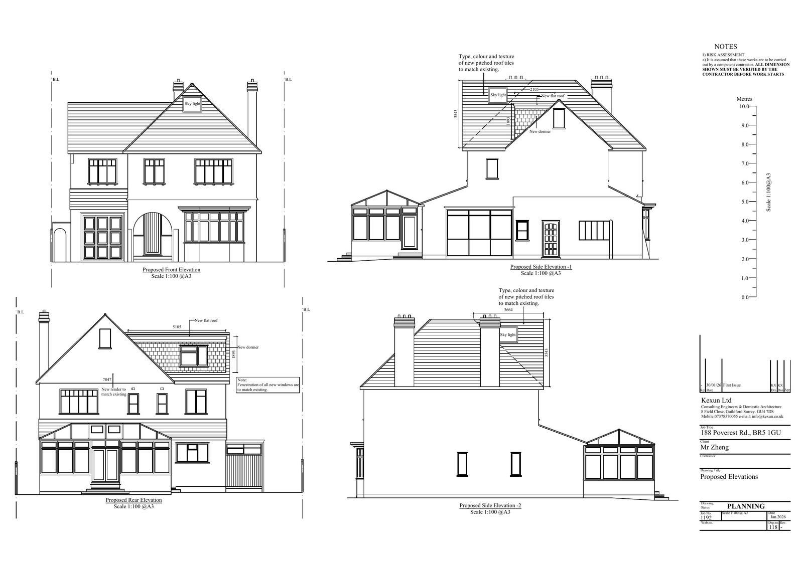
Reference 26/00767/HPA Received Date 26/2/2026 Application type Householder planning permission Site address 188 POVEREST ROAD, ORPINGTON, BR5 1GU Description Removal of rear chimney, loft conversion comprising rear hip to gable roof extension, rear roof dormer, rear window and rooflights to side and front. Status Valid Decision

Documents

Uncategorised
Archived · Original link
Uncategorised
Archived · Original link
Uncategorised
Archived · Original link
Uncategorised
Archived · Original link
Uncategorised
Archived · Original link
Uncategorised
Archived · Original link
Uncategorised
Archived · Original link
Uncategorised
Archived · Original link
Uncategorised
Archived · Original link

Have your say

Your comment matters. Councils must consider every representation that raises material planning considerations.

Write a comment