← Bromley

Status

Pending House extension
Received
Not recorded
New homes
0

Full proposal

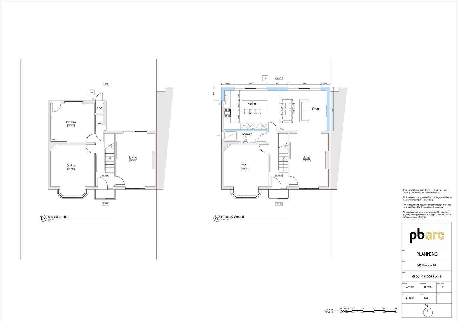
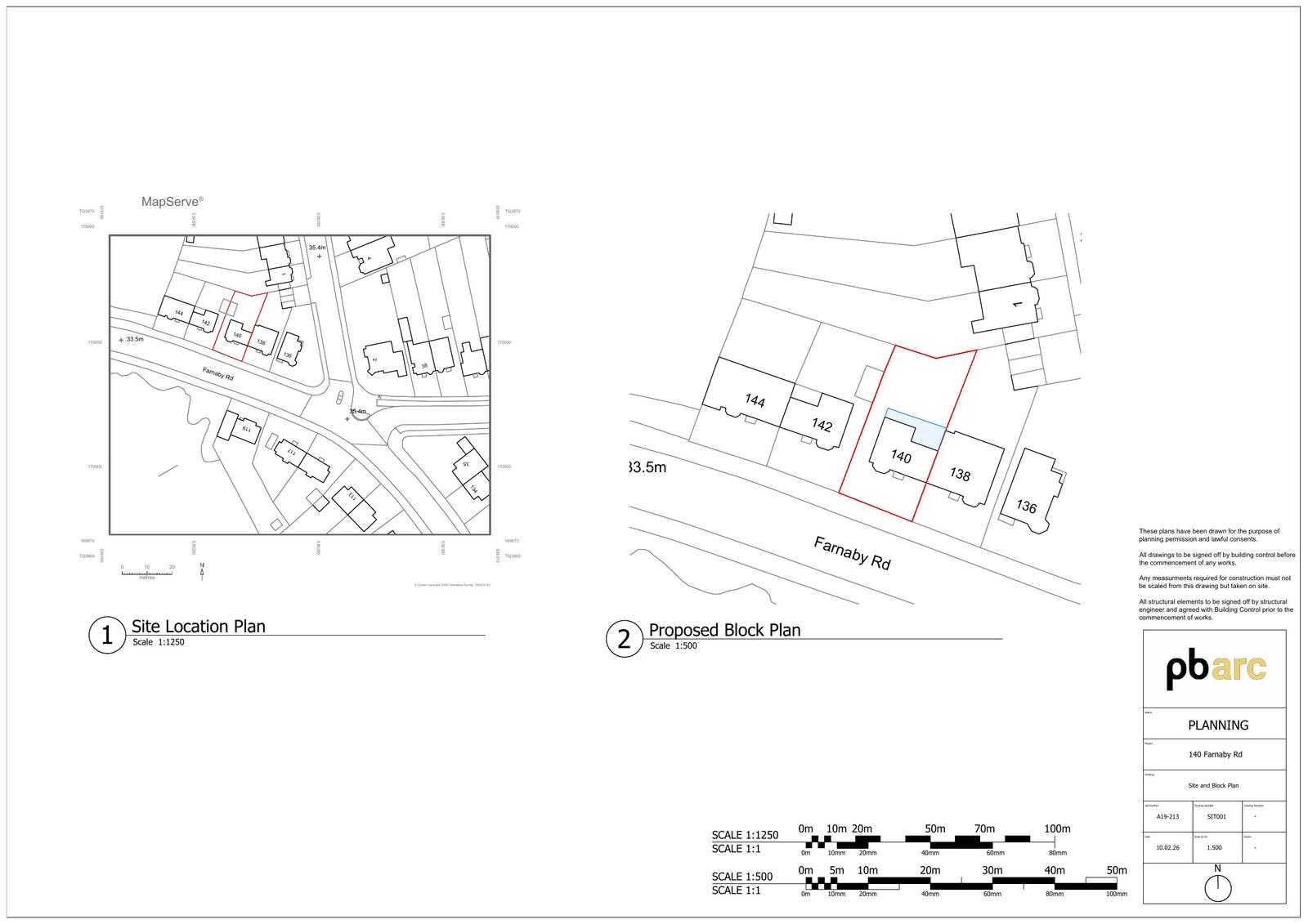
Reference 26/00798/HPA Received Date 27/2/2026 Application type Householder planning permission Site address 140 FARNABY ROAD, BROMLEY, BR1 4BW Description Demolition of garage. Single storey rear extension and addition of window on side elevation. Status Valid Decision

Documents

Uncategorised
Archived · Original link
Uncategorised
Archived · Original link
Uncategorised
Archived · Original link
Uncategorised
Archived · Original link
Uncategorised
Archived · Original link
Uncategorised
Archived · Original link

Have your say

Your comment matters. Councils must consider every representation that raises material planning considerations.

Write a comment