← Bromsgrove District Council

Status

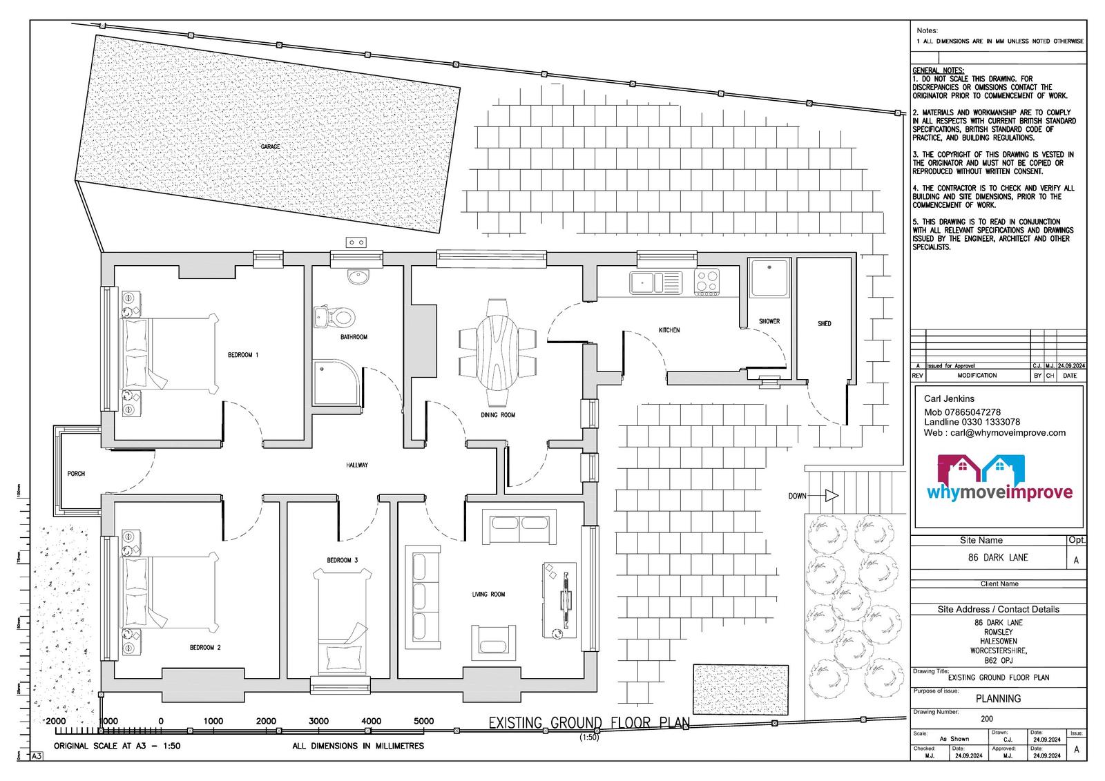
C of L Proposed Use- Approval House extension
Received
14 Jan 2025
New homes
0

Full proposal

Internal modifications to the GF and Loft conversion into 2No. Bedrooms

Documents

Plans
Archived · Original link
Application Form
Archived · Original link
Other
Archived · Original link
Decision
Archived · Original link
Other
Archived · Original link

Have your say

Your comment matters. Councils must consider every representation that raises material planning considerations.

Write a comment