← Bromsgrove District Council

Status

Prior Approval Not Required House extension
Received
19 May 2025
New homes
0

Summary

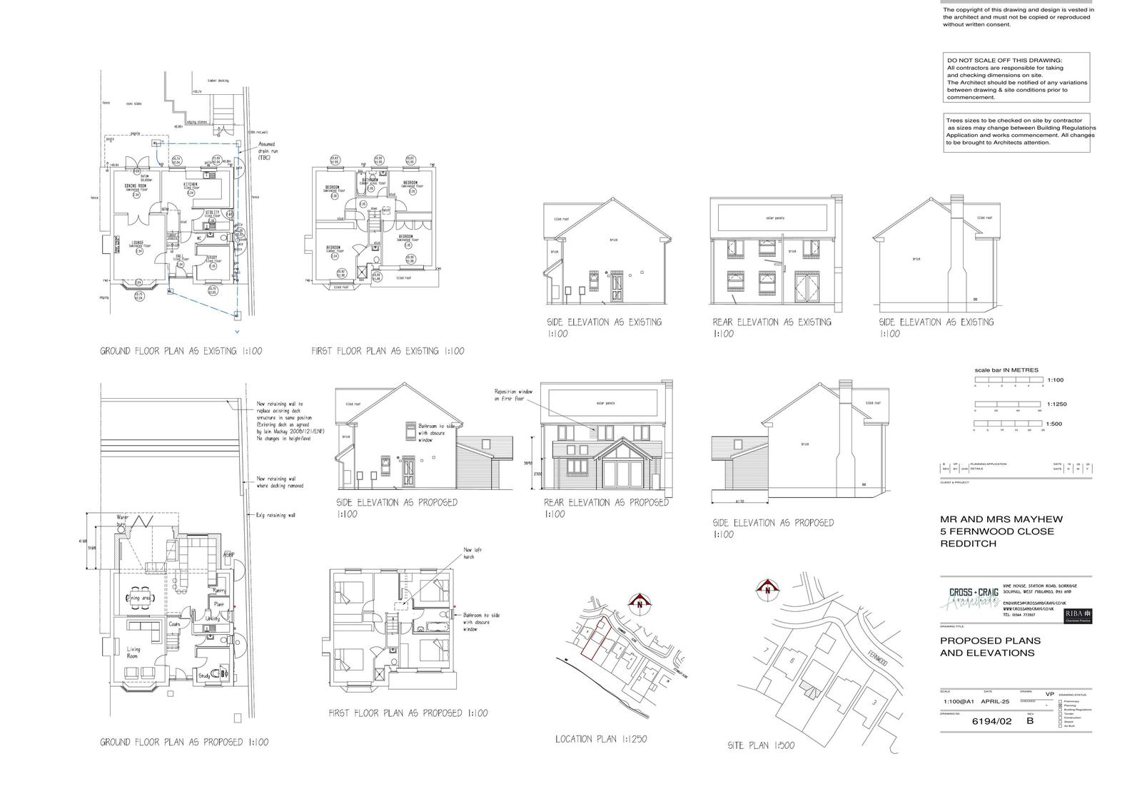
Single-storey rear extension off the original rear wall of the house.

Full proposal

SINGLE STOREY EXTENSION OFF ORIGINAL REAR WALL OF HOUSE

Documents

Application Form
Archived · Original link
Application Form
Archived · Original link
Decision
Archived · Original link

Have your say

Your comment matters. Councils must consider every representation that raises material planning considerations.

Write a comment