← Back to Bromsgrove District Council
Application
25/00638/FUL
Bromsgrove District Council · IDOX
Status
Awaiting decision
New housing
Received
30 May 2025
New dwellings
1
What you can do
Take Action
Make your voice heard. Authorities need to hear from people who support new homes.
Summary
Construction of a new dwelling with associated works.
Full Proposal
Erection of new dwelling and associated works
Detail pages
- View live detail on council site
- No archived detail page available.
Documents
0.2 SITE PLAN-EXTG
Plans
Archived copy
· Council link
024-3960 01A-LOCATION PLAN
Plans
Not downloaded
· Council link
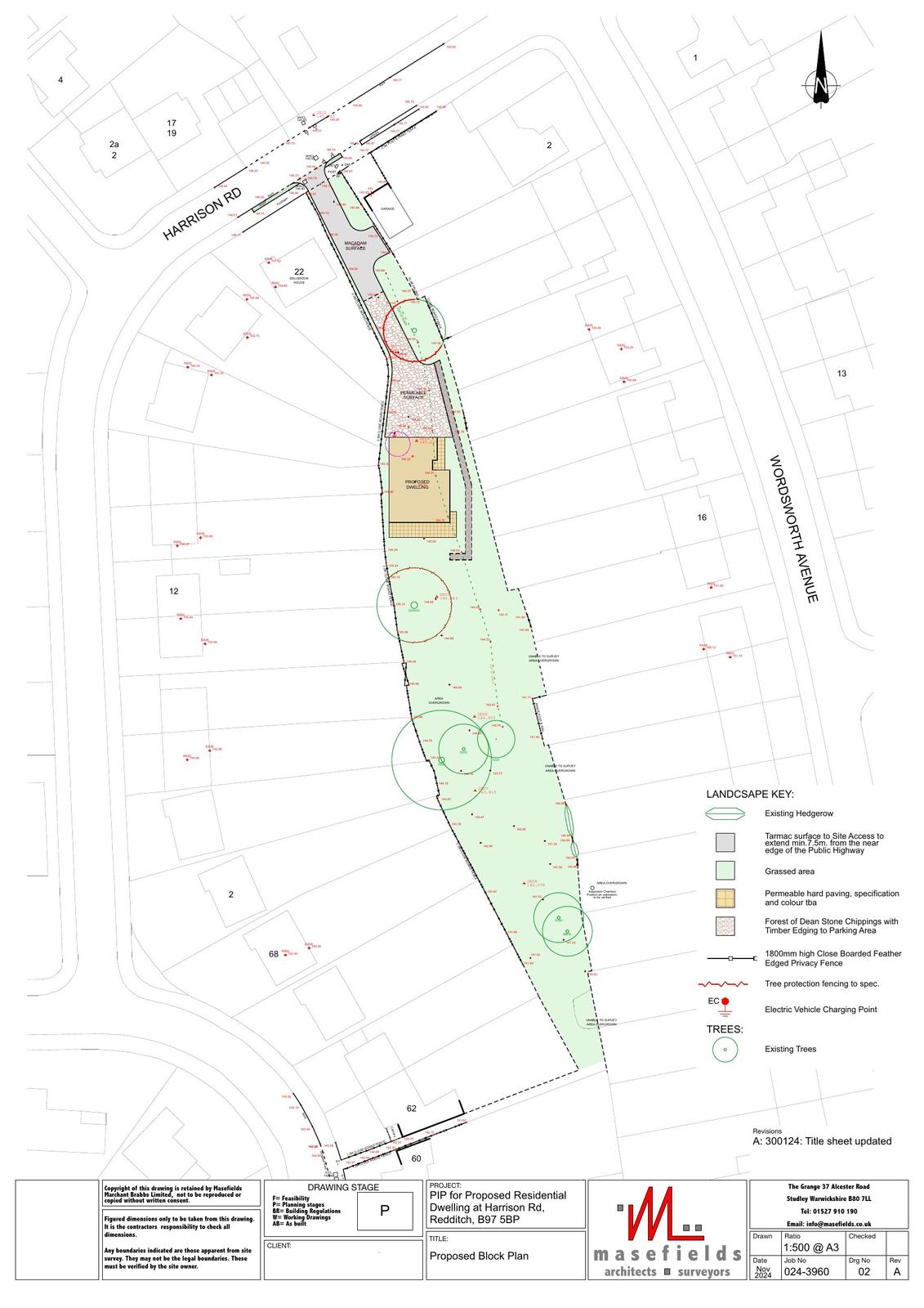
024-3960 02A-BLOCK PLAN
Plans
Not downloaded
· Council link
024-3960 03A-PROPOSED DWELLING
Plans
Not downloaded
· Council link
APPENDIX 1 - FLOOD MAP REPORT
Supporting Information
Not downloaded
· Council link
APPENDIX 2 - SURFACE WATER MAP DATA
Supporting Information
Not downloaded
· Council link
APPLICATIONFORMREDACTED
Application Form
Not downloaded
· Council link
ATTACHMENTSUMMARY
Other
Not downloaded
· Council link
ELEVATION (REAR) - PROPOSED_INCLUDED_IN_ELEVATION (FRONT) - PROPOSED
Plans
Not downloaded
· Council link
ELEVATION (SIDE) - PROPOSED_INCLUDED_IN_ELEVATION (FRONT) - PROPOSED
Plans
Not downloaded
· Council link
ENVIRONMENTAL HEALTH & LICENSING
Consultee Comments
Not downloaded
· Council link
FLOOR PLAN_INCLUDED_IN_ELEVATION (FRONT) - PROPOSED
Plans
Not downloaded
· Council link
HIGHWAYS RESPONSE
Consultee Comments
Not downloaded
· Council link
NORTH WORCESTERSHIRE WATER MANAGEMENT
Agreement to extend time
Not downloaded
· Council link
PEA AND BNG REPORT - HARRISON ROAD
Plans
Not downloaded
· Council link
PLANNING STATEMENT_INCLUDED_IN_DESIGN AND ACCESS STATEMENT
Supporting Information
Not downloaded
· Council link
PROPOSAL
Other
Not downloaded
· Council link
PROTECTED SPECIES SURVEY_INCLUDED_IN_BIODIVERSITY SURVEY AND REPORT
Plans
Not downloaded
· Council link
SITEBLOCK PLAN - EXISTING_INCLUDED_IN_SITE LEVELS PLAN - EXISTING
Plans
Not downloaded
· Council link
STATEMENT - HARRISON ROAD
Plans
Not downloaded
· Council link
STATUTORY_BIODIVERSITY_METRIC_CONDITION_ASSESSMENTS-_MAR 25
Plans
Not downloaded
· Council link
THE_STATUTORY_BIODIVERSITY_METRIC_CALCULATION_TOOL
Plans
Not downloaded
· Council link
TREE REPORT - HARRISON ROAD
Supporting Information
Not downloaded
· Council link
TREES RESPONSE
Consultee Comments
Not downloaded
· Council link