26/00157/CUPRIO
Bromsgrove District Council
Status
Pending Consideration
Change of use
Received
Last month
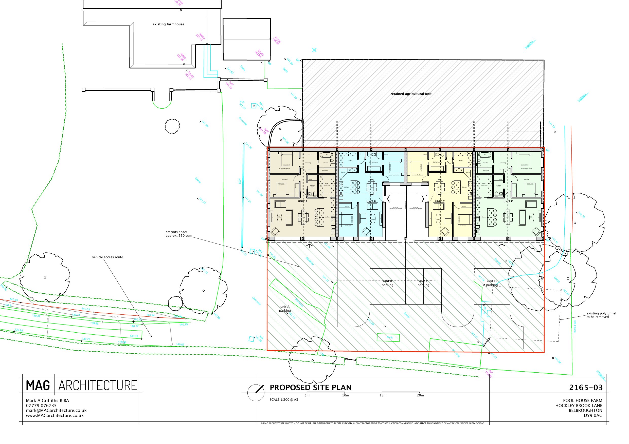
New homes
4
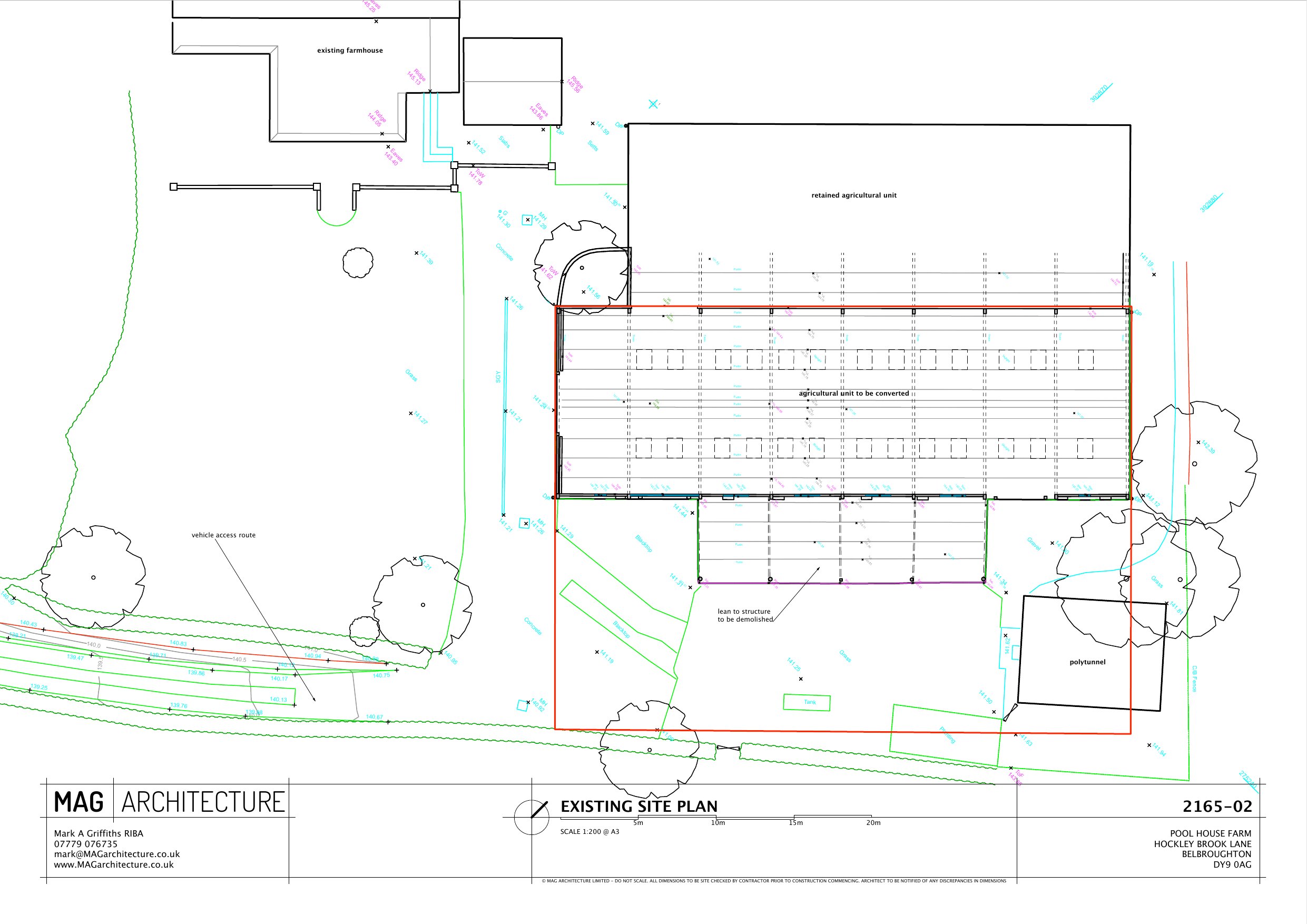
Full proposal
Existing concrete framed agricultural building to be converted into 4 no. dwellings, utilising exising access and driveway. Removal of attached timber framed structure.
Documents
Have your say
Your comment matters. Councils must consider every representation that raises material planning considerations.