← Bromsgrove District Council

Status

Pending Consideration House extension
Received
Last month
New homes
0

Full proposal

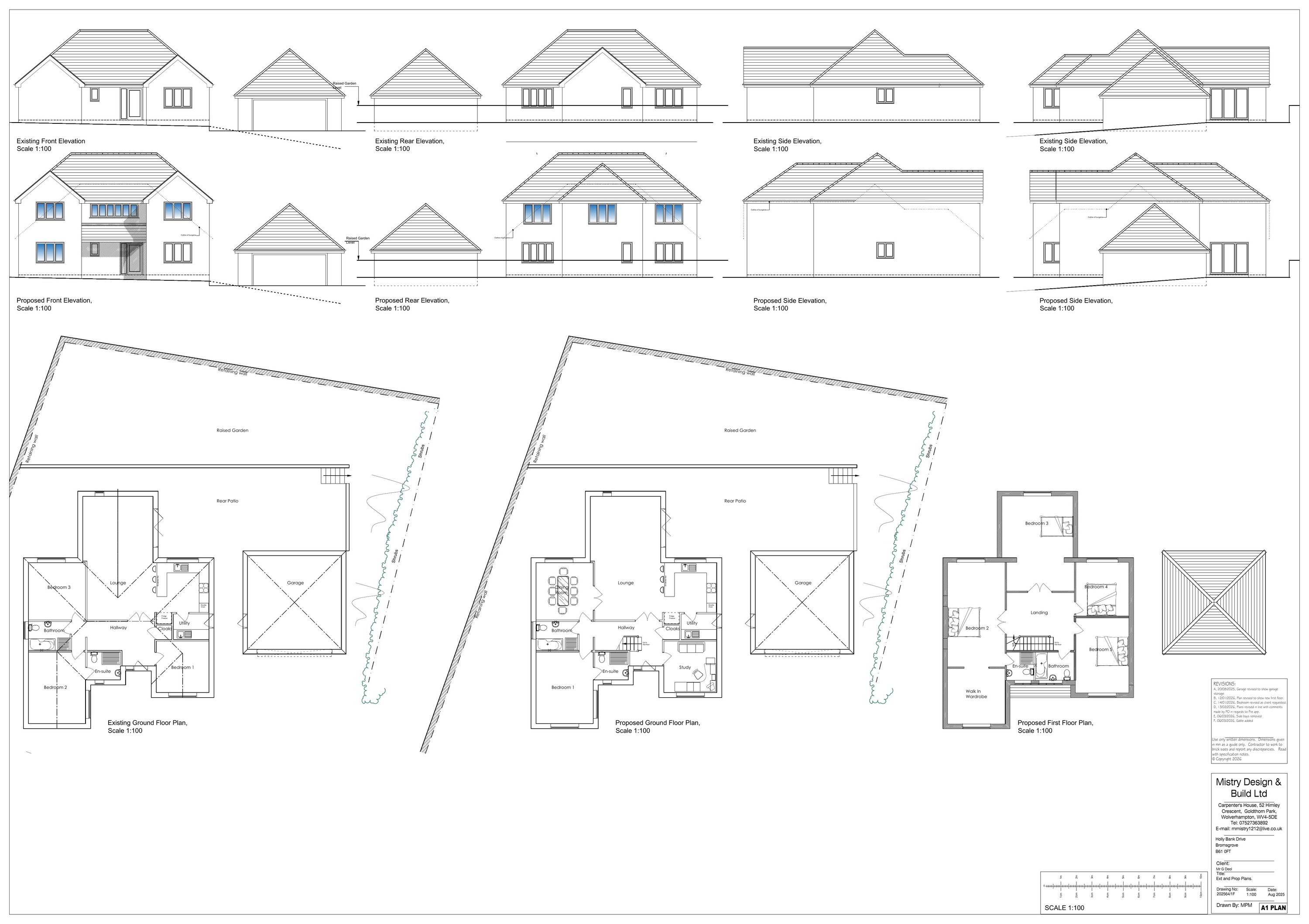
First floor extension to existing dwelling to create additional storey

Documents

Application Form
Archived · Original link
Application Form
Archived · Original link
Plans
Archived · Original link
Supporting Information
Archived · Original link

Have your say

Your comment matters. Councils must consider every representation that raises material planning considerations.

Write a comment