← Bromsgrove District Council

Status

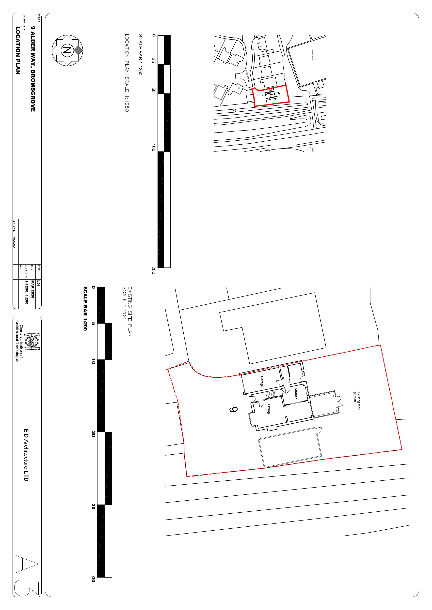
Pending Consideration House extension
Received
Last month
New homes
0

Full proposal

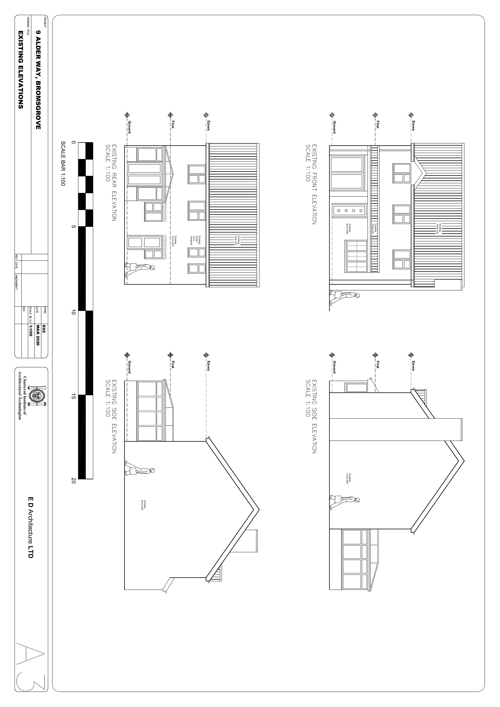
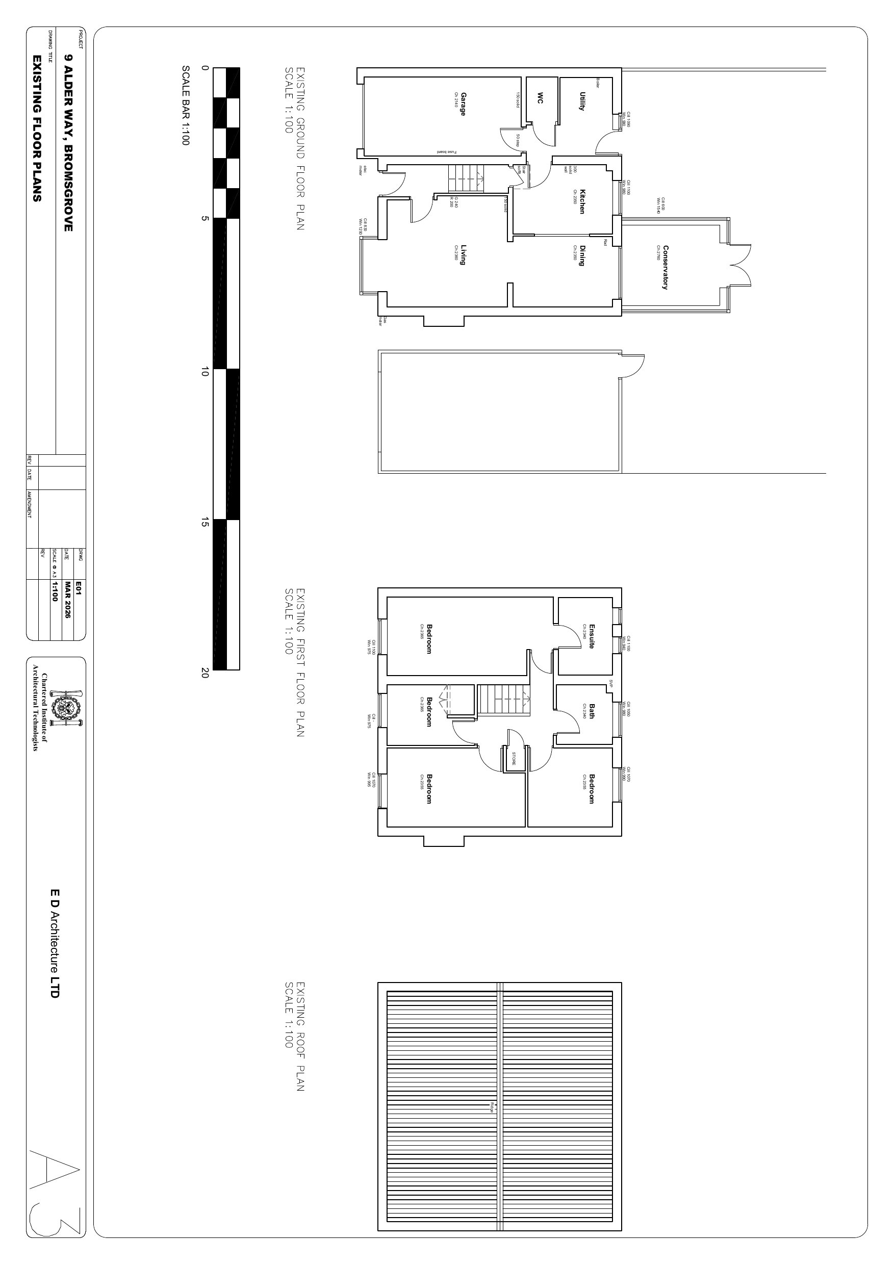
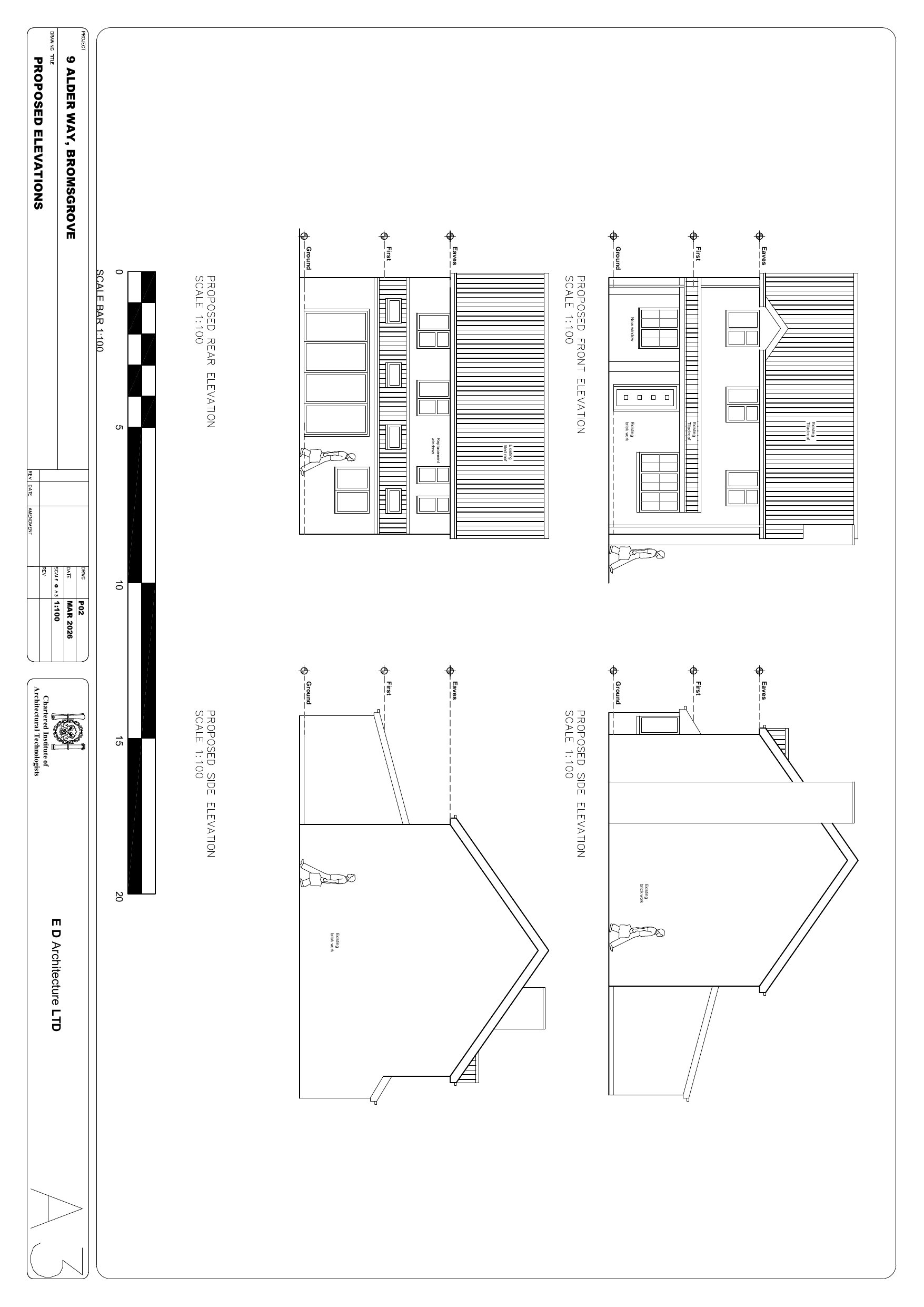
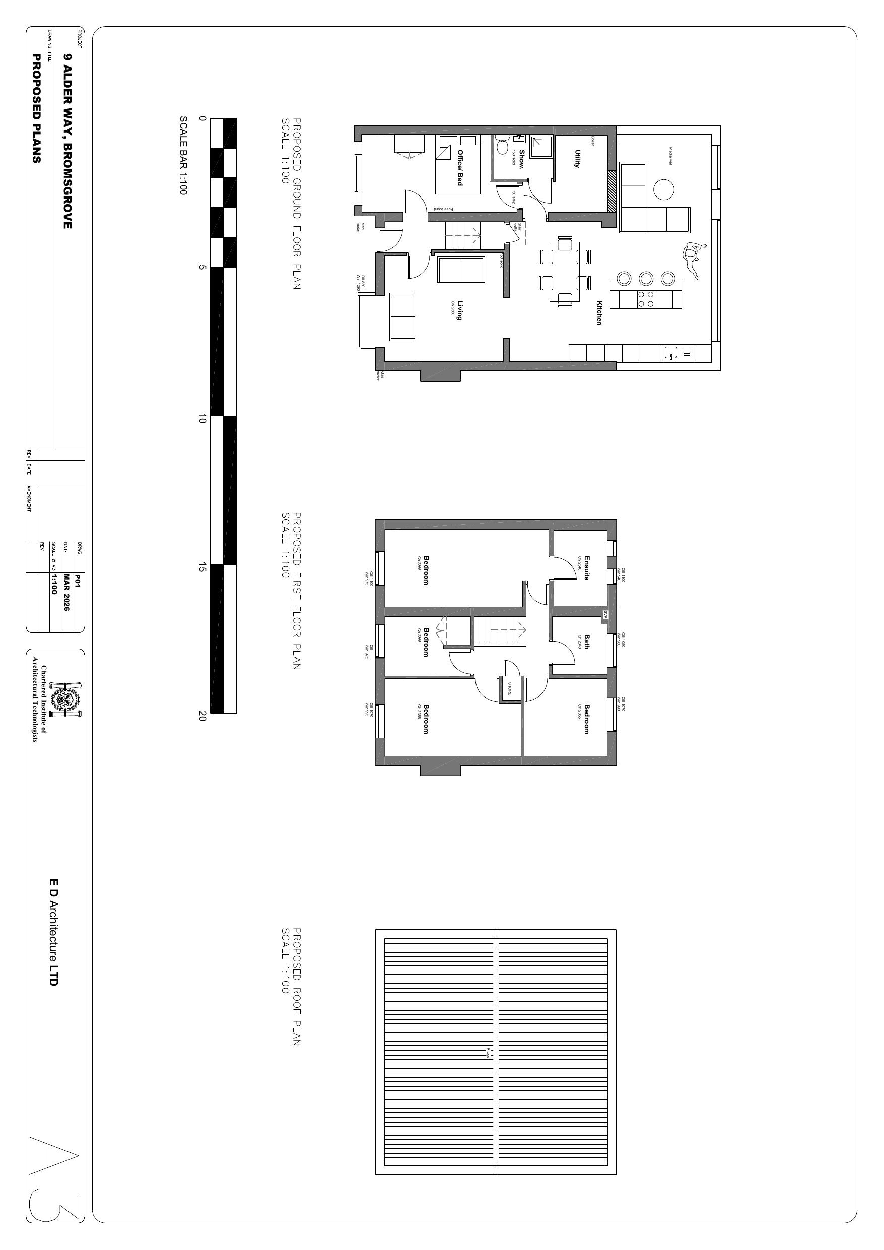
PROPOSED REAR KITCHEN EXTENSION GARAGE CONVERSION

Have your say

Your comment matters. Councils must consider every representation that raises material planning considerations.

Write a comment