← Broxbourne Borough Council

Status

Pending House extension
Received
01 Jan 2026
New homes
0

Full proposal

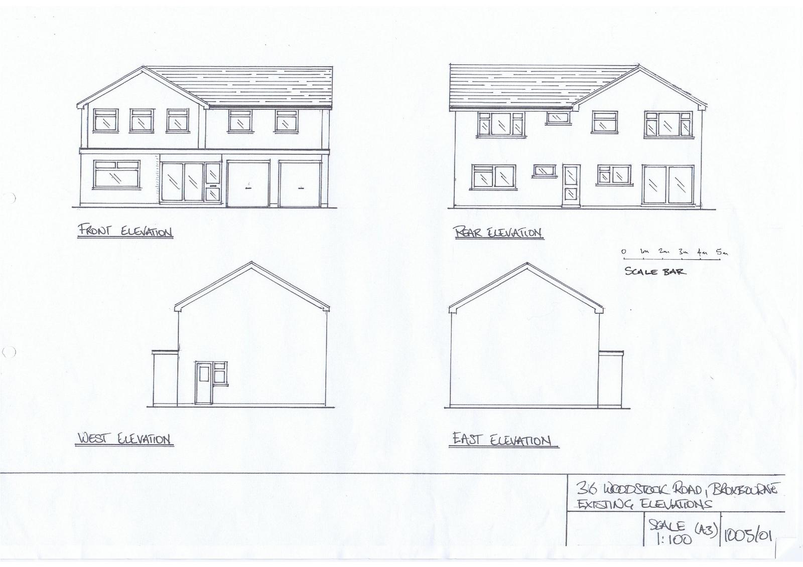
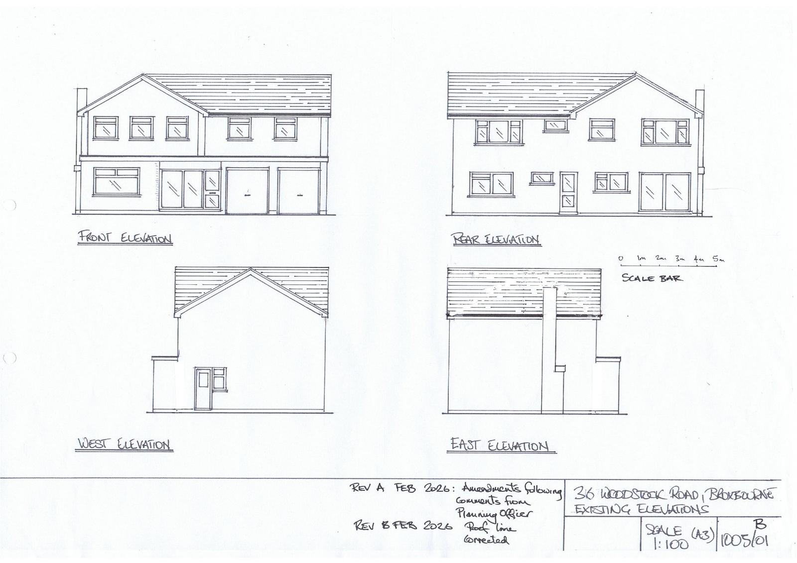
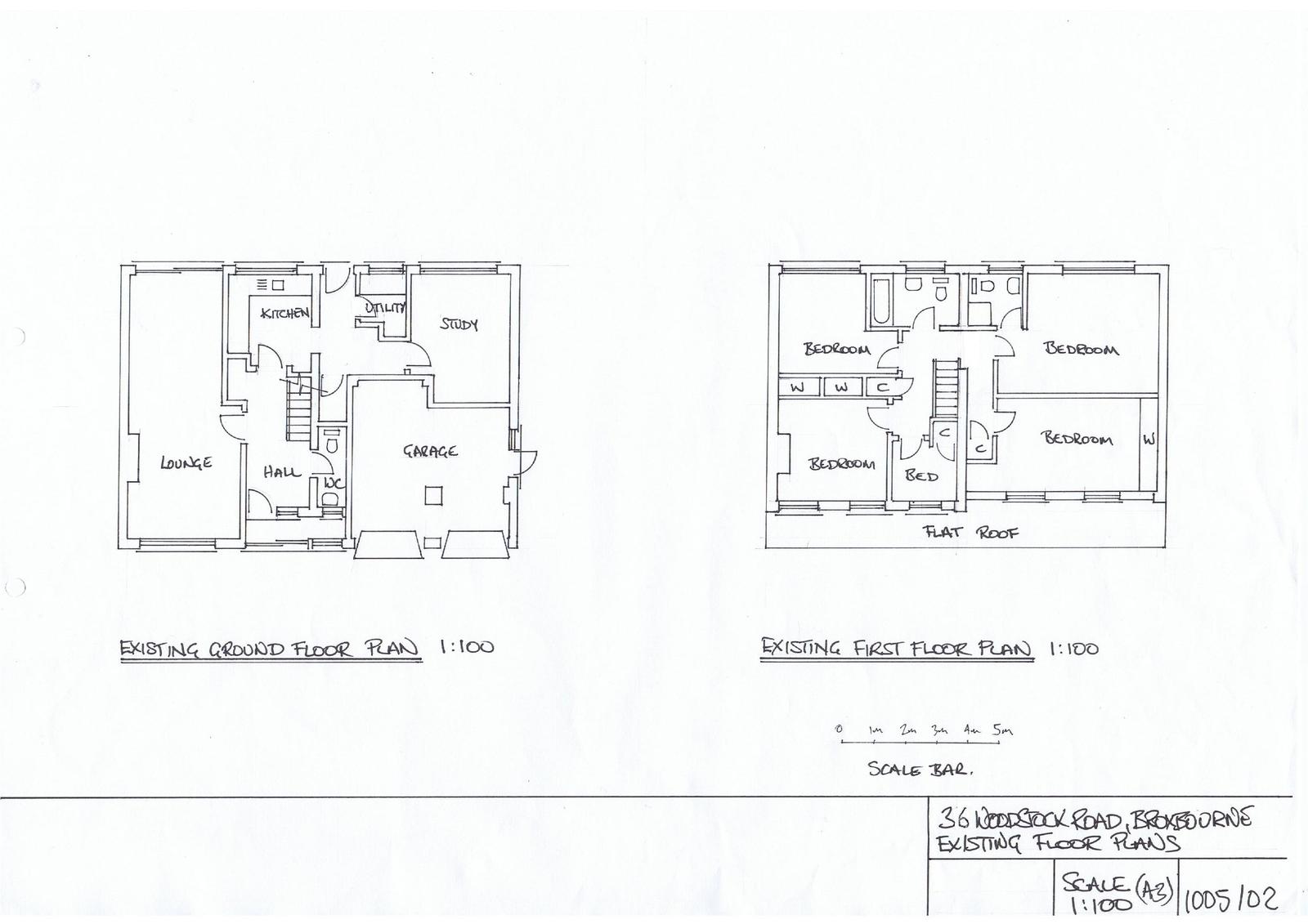
New entrance porch with pitch roof to replace existing flat roof and two storey rear extension

Documents

Application Form
Archived · Original link
Proposed Plans
Archived · Original link
Case Officer Report
Archived · Original link
Decision Notice
Archived · Original link
Design and Access Statement
Archived · Original link
Amended Existing Plans
Archived · Original link
Amended Proposed Plans
Archived · Original link
Existing Plans
Archived · Original link
Proposed Plans
Archived · Original link
Statutory Response
Archived · Original link
Existing Plans
Archived · Original link
Proposed Plans
Archived · Original link
Amended Proposed Plans
Archived · Original link
Existing and Proposed Plans
Archived · Original link
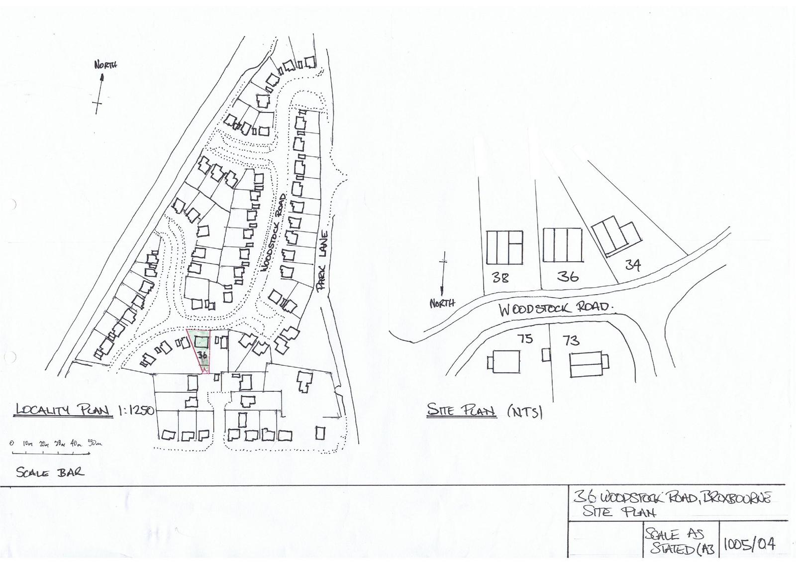
Site Location Plan
Archived · Original link

Have your say

Your comment matters. Councils must consider every representation that raises material planning considerations.

Write a comment