← Broxbourne Borough Council

Status

Pending Change of use
Received
02 Feb 2026
New homes
0

Full proposal

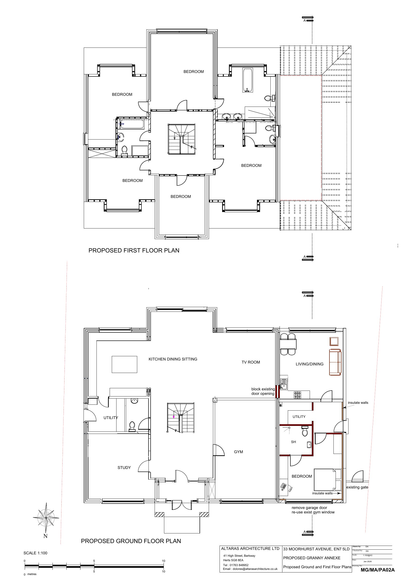
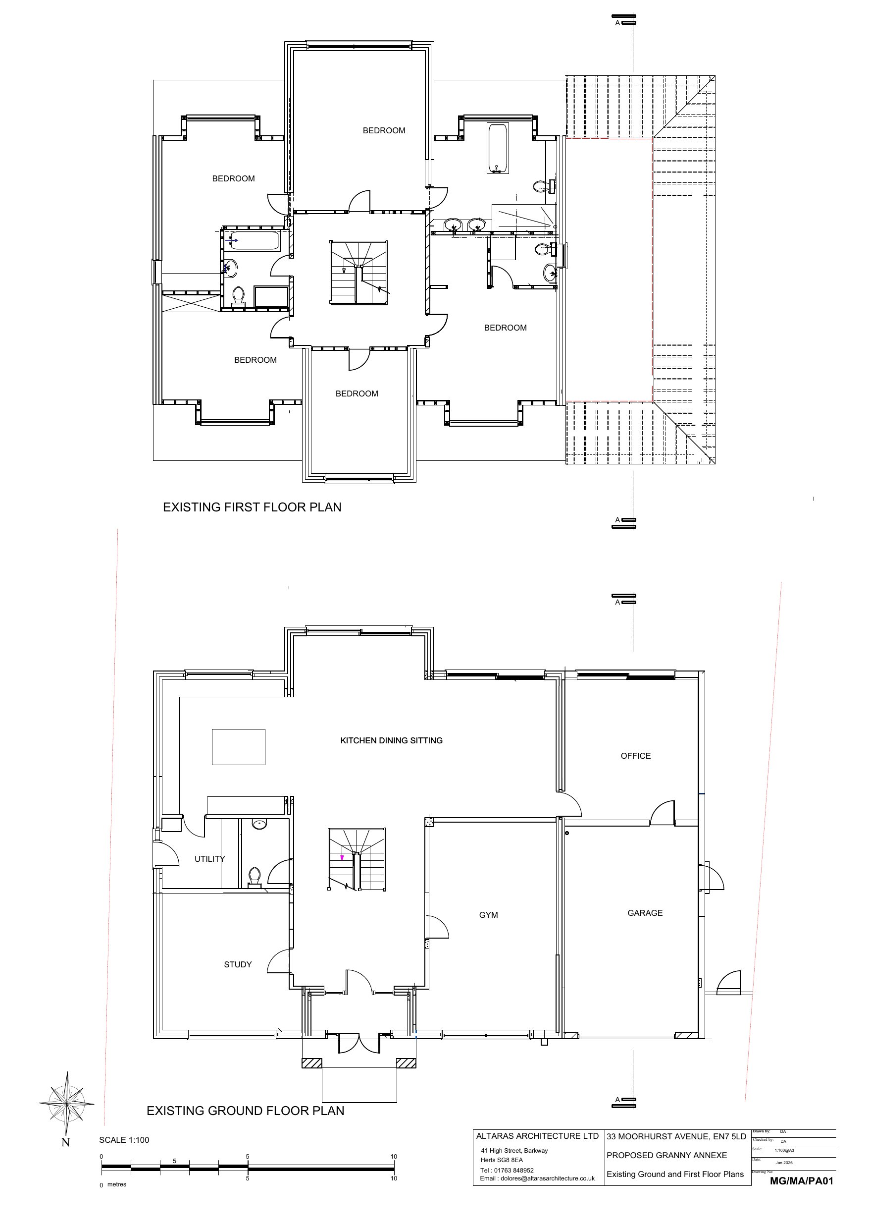
Conversion of existing garage and office into granny annexe

Documents

Application Form
Archived · Original link
Site Location Plan
Archived · Original link
Existing and Proposed Plans
Archived · Original link
Existing Plans
Archived · Original link
Proposed Plans
Archived · Original link
Existing and Proposed Plans
Archived · Original link
Existing Plans
Archived · Original link
Proposed Plans
Archived · Original link
Site Location Plan
Archived · Original link

Have your say

Your comment matters. Councils must consider every representation that raises material planning considerations.

Write a comment