← Broxbourne Borough Council

Status

Pending Change of use
Received
03 Feb 2026
New homes
0

Full proposal

Temporary change of use (five years) of Kobe House from C3(a) Dwellinghouse to C2 Residential Institution with supported living for five adult patients with special needs and one live-in carer, plus specialist care and medical visits.

Documents

Consultee Response - Objection
Archived · Original link
Consultee Response - Objection
Archived · Original link
Consultee Response - Objection
Archived · Original link
Planning Statement
Archived · Original link
Application Form
Archived · Original link
Planning Statement
Archived · Original link
Design and Access Statement
Archived · Original link
Planning Statement
Archived · Original link
Consultee Response - Support
Archived · Original link
Consultee Response - Support
Archived · Original link
Consultee Response - Objection
Archived · Original link
Planning Statement
Archived · Original link
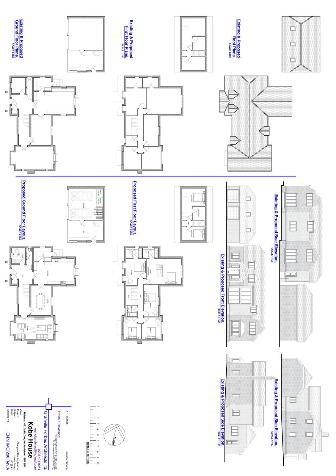
Existing and Proposed Plans
Archived · Original link
Planning Statement
Archived · Original link
Site Location Plan
Archived · Original link
Existing and Proposed Plans
Archived · Original link
Existing and Proposed Plans
Archived · Original link
Planning Statement
Archived · Original link
Consultee Response - Objection
Archived · Original link
Consultee Response - Objection
Archived · Original link
Consultee Response - Objection
Archived · Original link
Consultee Response - Objection
Archived · Original link

Have your say

Your comment matters. Councils must consider every representation that raises material planning considerations.

Write a comment