← Broxbourne Borough Council

Status

Pending House extension
Received
Last month
New homes
0

Full proposal

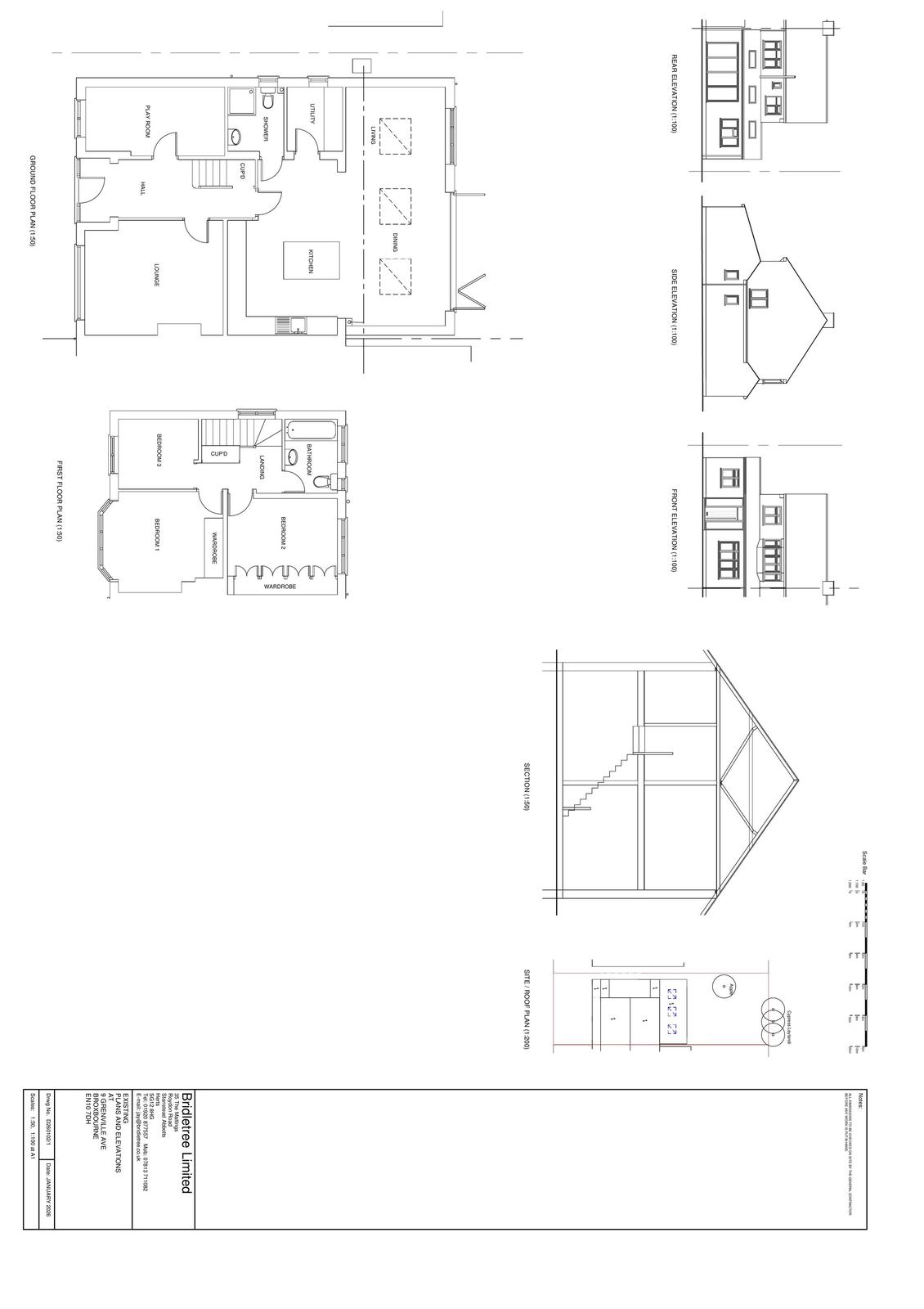
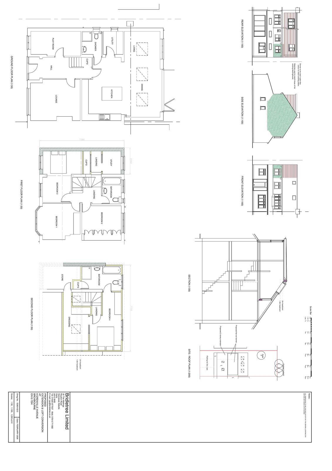
First floor side extension loft conversion incorporating a flat roof rear dormer and 2no. rooflights to existing front roof

Documents

Application Form
Archived · Original link
Existing Plans
Archived · Original link
Proposed Plans
Archived · Original link
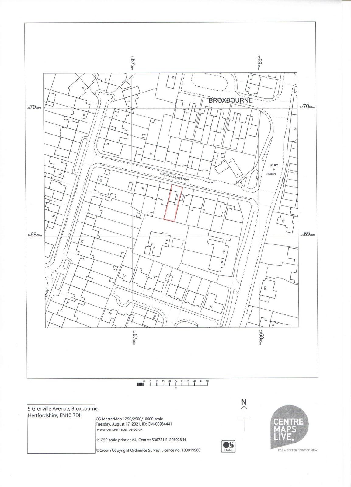
Site Location Plan
Archived · Original link
Site Location Plan
Archived · Original link

Have your say

Your comment matters. Councils must consider every representation that raises material planning considerations.

Write a comment