07/26/0128/HF
Broxbourne Borough Council
Status
Pending
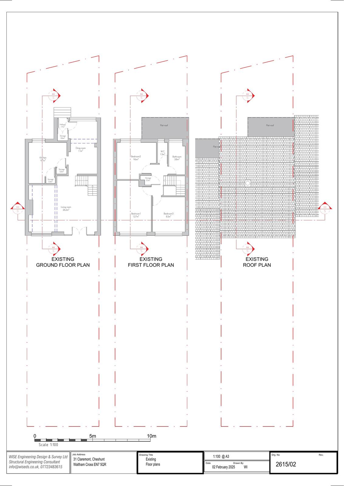
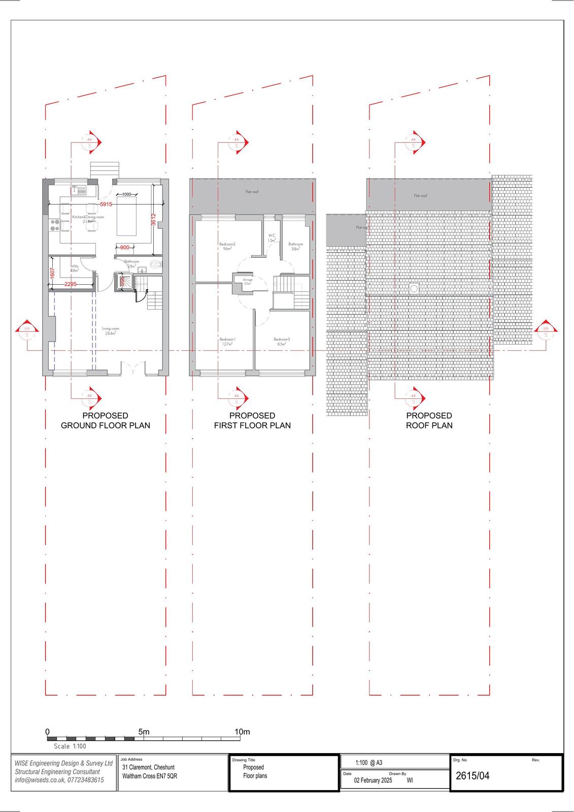
House extension
Received
Last month
New homes
0
Full proposal
Erection of a single storey front extension
Documents
Have your say
Your comment matters. Councils must consider every representation that raises material planning considerations.