← Broxbourne Borough Council

Status

Pending Change of use
Received
Last month
New homes
0

Full proposal

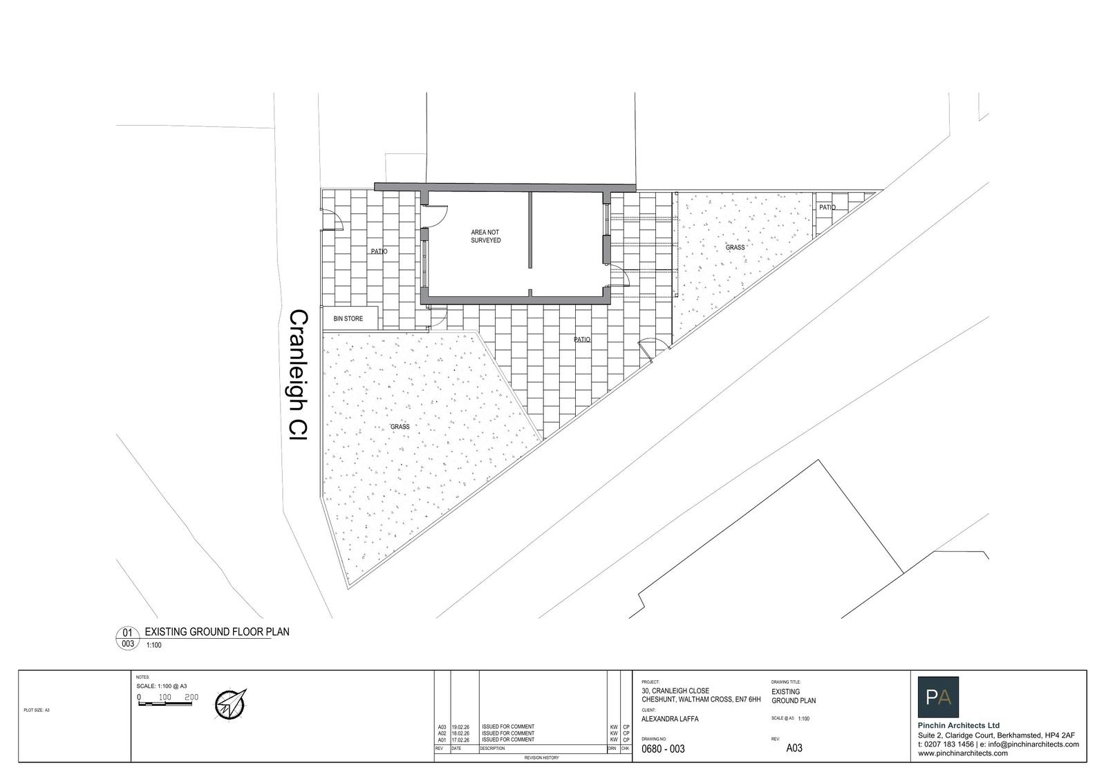
Retrospective planning application for change of use of land from amenity land to residential garden and the erection of a boundary fence.

Documents

Application Form
Archived · Original link
Existing and Proposed Plans
Archived · Original link
Existing and Proposed Plans
Archived · Original link
Existing Plans
Archived · Original link
Existing Plans
Archived · Original link
Planning Statement
Archived · Original link
Existing Plans
Archived · Original link
Existing Plans
Archived · Original link

Have your say

Your comment matters. Councils must consider every representation that raises material planning considerations.

Write a comment