← Broxbourne Borough Council

Status

Pending House extension
Received
Last month
New homes
0

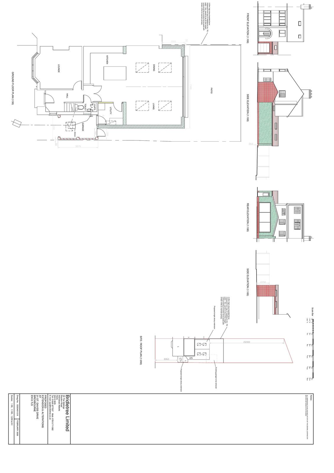
Full proposal

Removal of existing garage, single storey side and rear extension with pitched roof and flat roof to be replaced with a pitched roof to the existing rear extension. New fencing to boundary with 19 St Davids Drive.

Documents

Application Form
Archived · Original link
Consultee Response - Objection
Archived · Original link
Site Location Plan
Archived · Original link
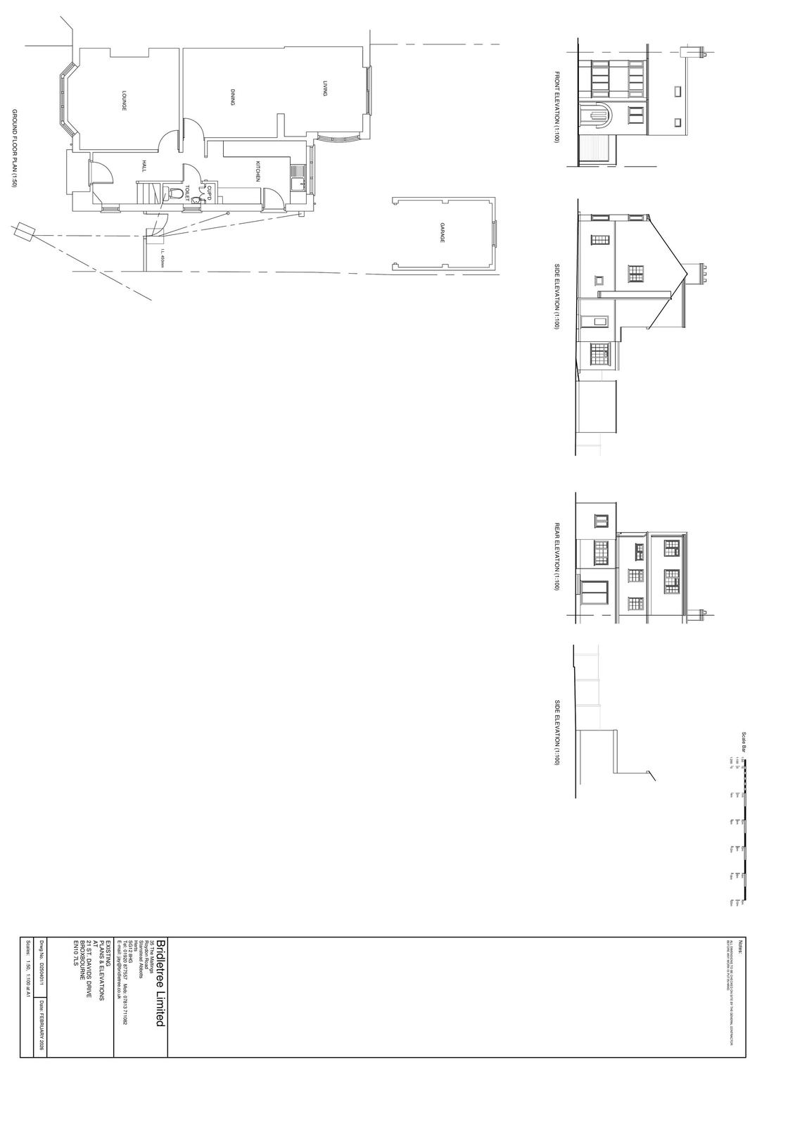
Existing Plans
Archived · Original link
Proposed Plans
Archived · Original link

Have your say

Your comment matters. Councils must consider every representation that raises material planning considerations.

Write a comment