← Broxbourne Borough Council

Status

Pending House extension
Received
29 days ago
New homes
0

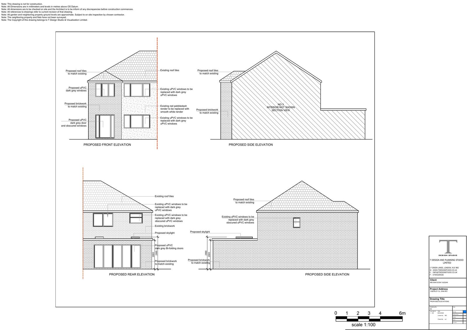
Full proposal

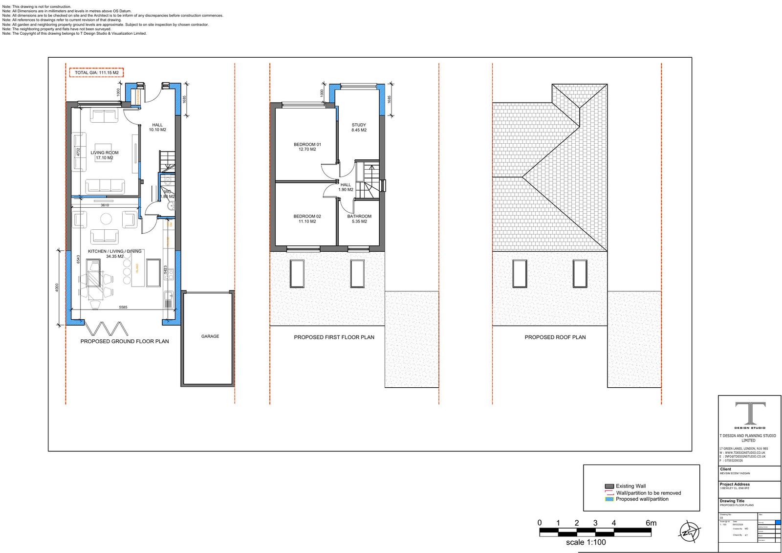
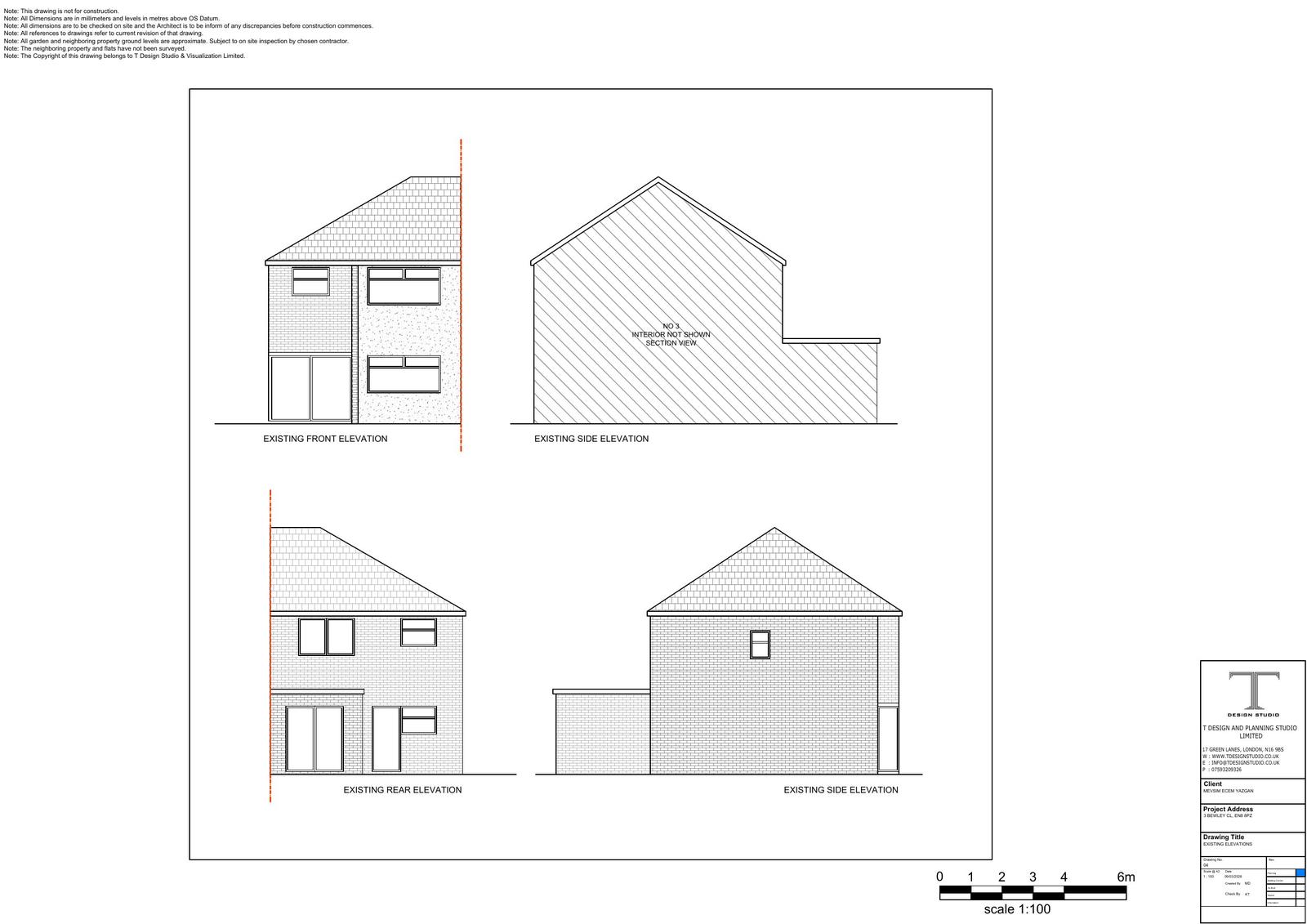
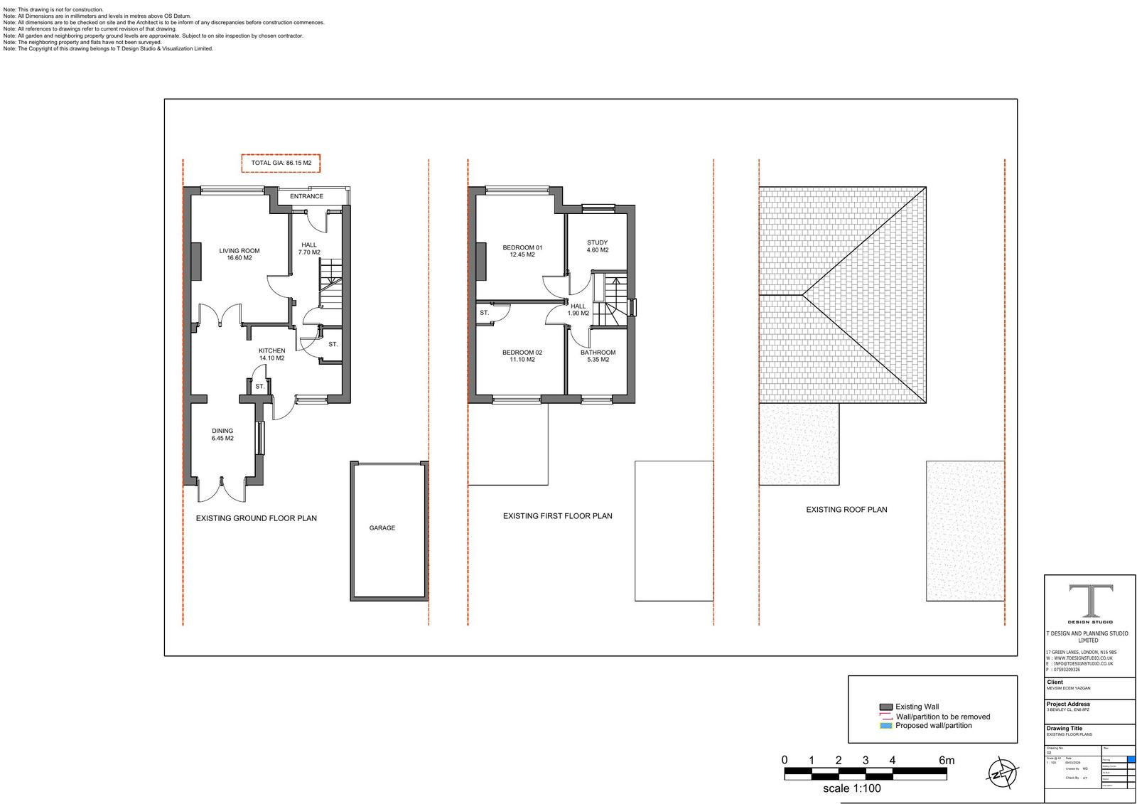
Reconfiguration of ground and first floor internal layouts. Installation of two skylights. Replacement of existing pebbledash render with smooth white/cream render to front elevation. Removal of existing partial 3m extension and erection of 4m rear extension. Proposed infill to existing entrance area and two storey partial 1m extension to the front

Documents

Design and Access Statement
Archived · Original link
Proposed Plans
Archived · Original link
Existing Plans
Archived · Original link
Existing Plans
Archived · Original link
Proposed Plans
Archived · Original link
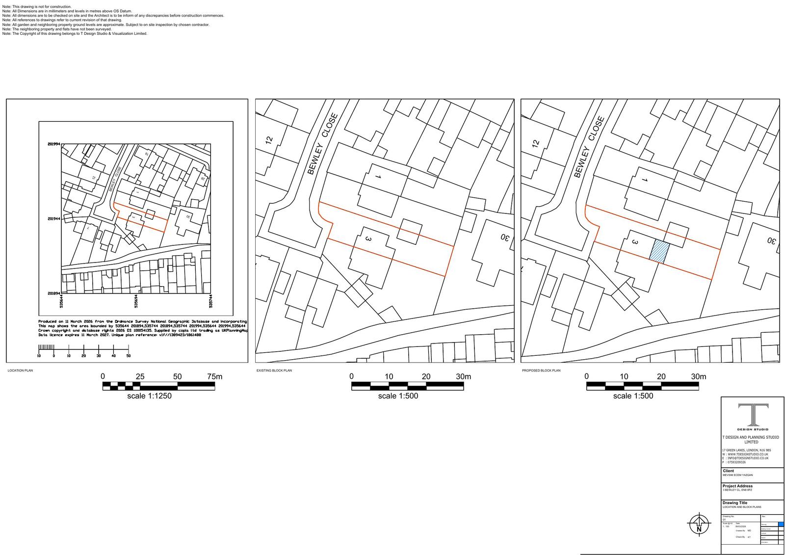
Site Location Plan
Archived · Original link

Have your say

Your comment matters. Councils must consider every representation that raises material planning considerations.

Write a comment