← Buckinghamshire Council

Status

Registered Commercial
Received
Not recorded
New homes
0

Full proposal

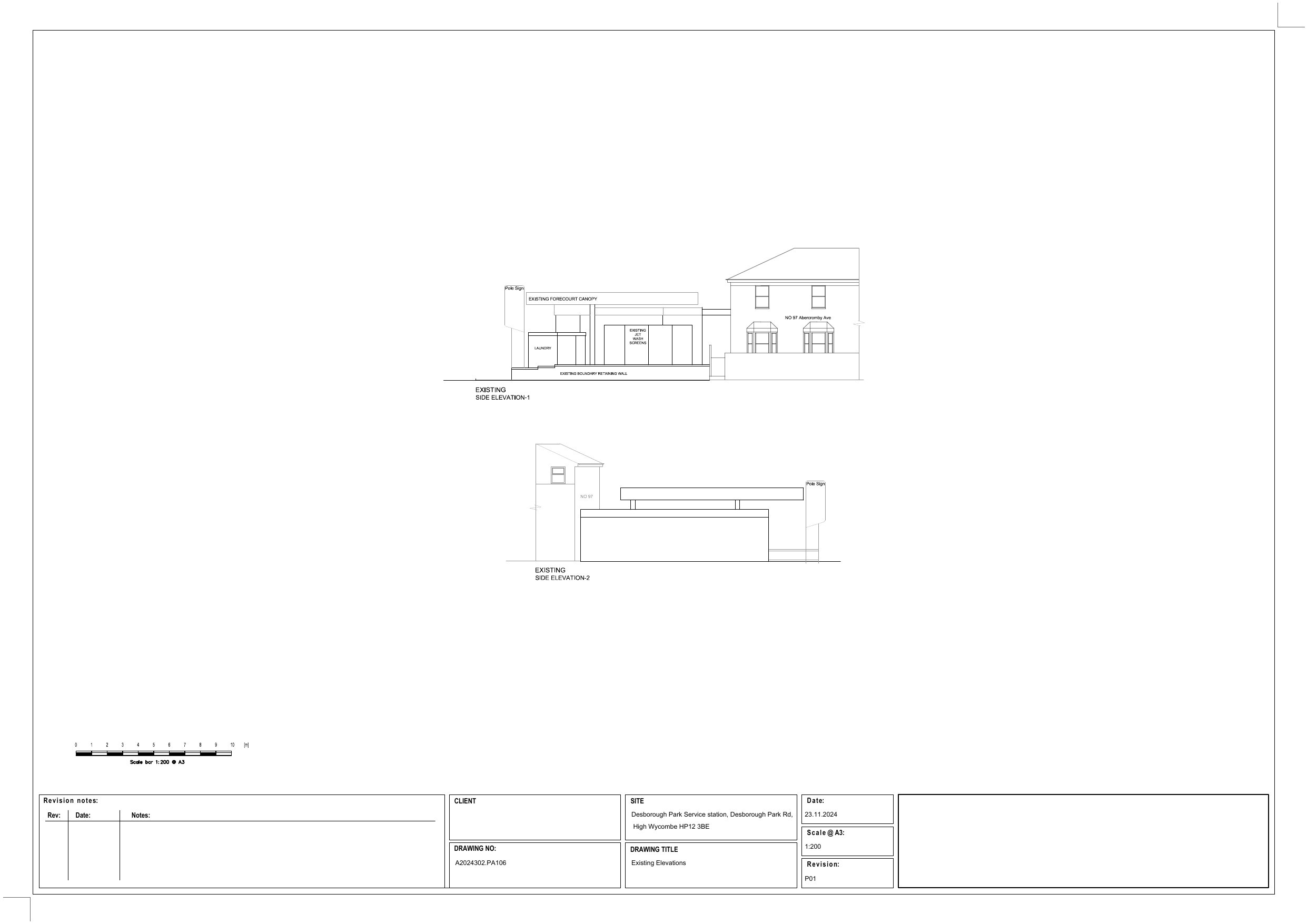
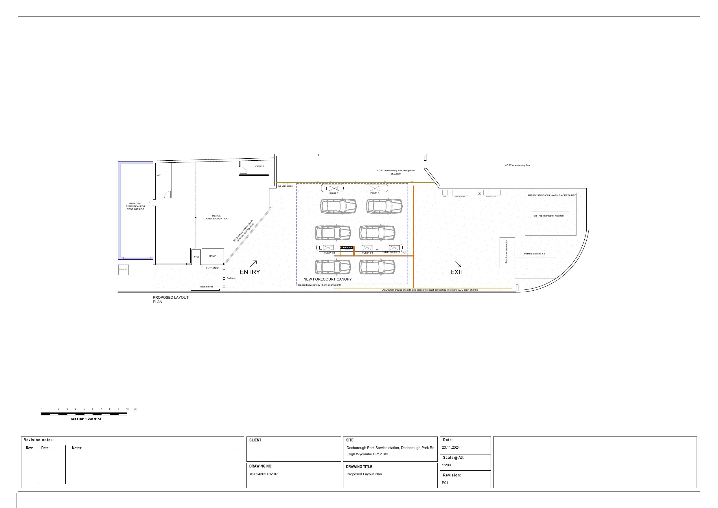
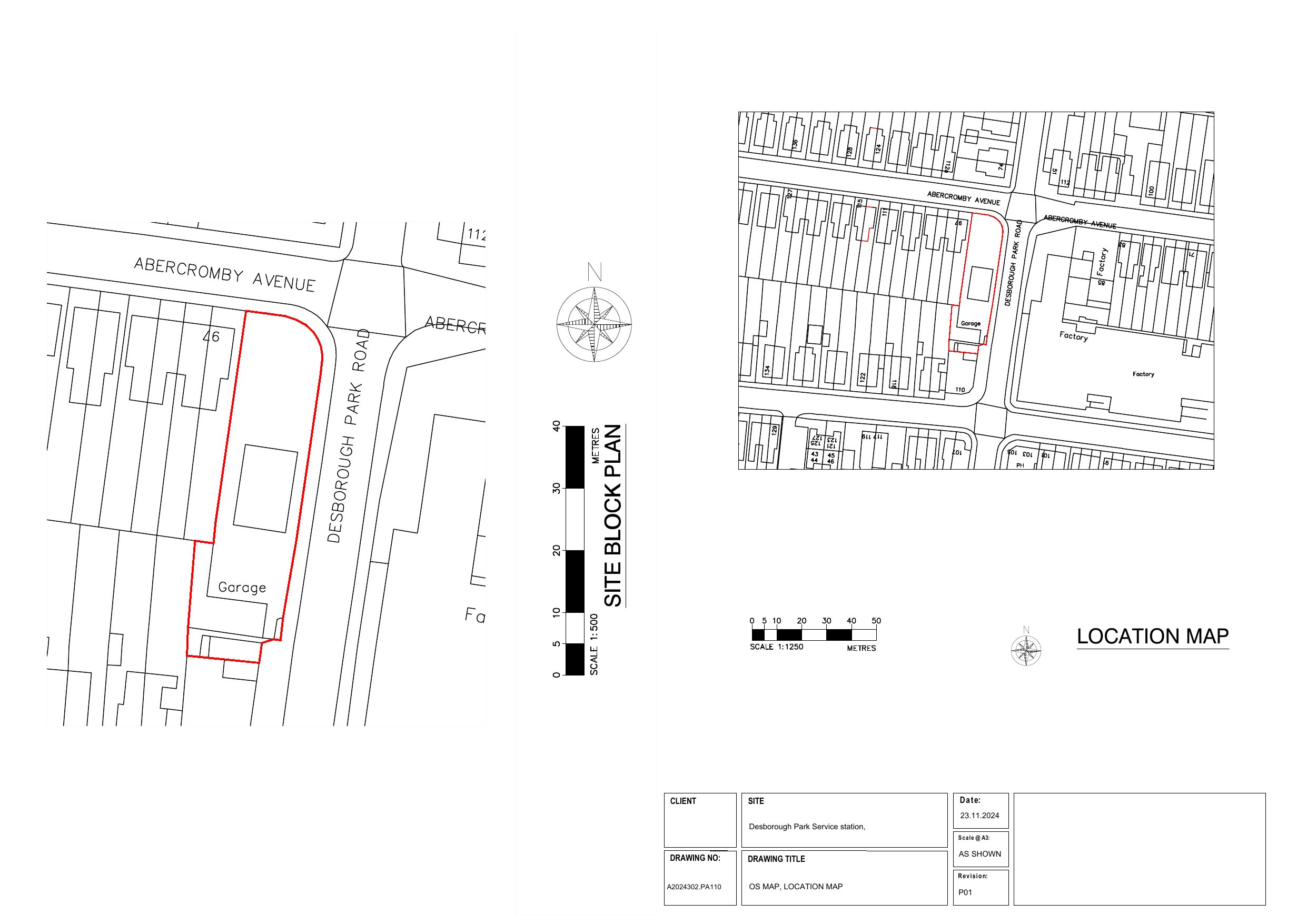
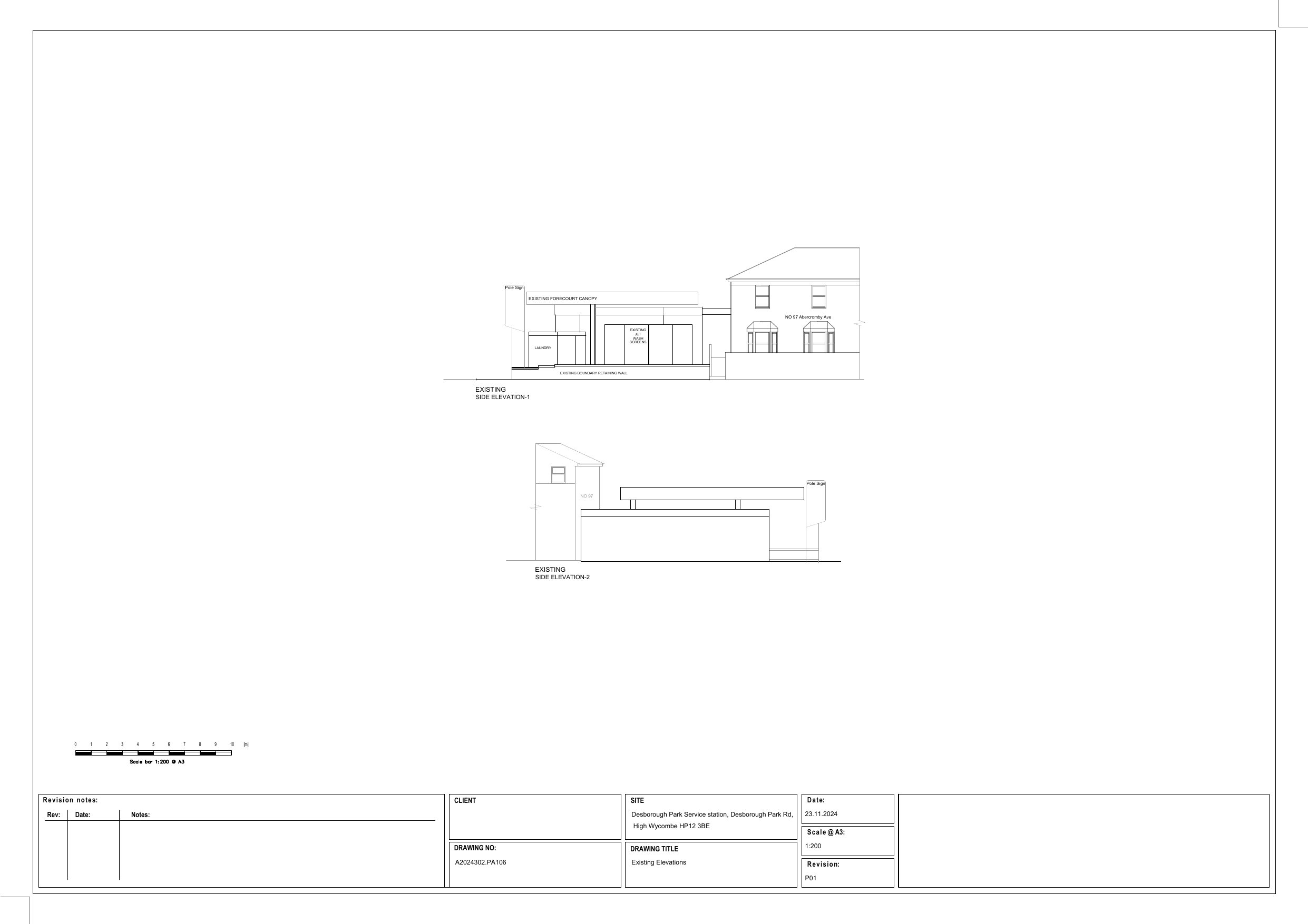
Construction of single storey side extension and alterations to existing shopfront comprising extension of shop canopy and installation of access ramp, extension and raising of forecourt canopy to facilitate installation of 3 x additional fuel pumps, retaining walls and alterations to hardstanding (part retrospective)

Documents

Application Form and Certificate
Archived · Original link
CONSULTEE COMMENT SUBMITTED ONLINE
Consultee Comment
Not yet archived · Original link
Design and Access Statement
Archived · Original link
ECOLOGY AND TREES CHECKLIST
Additional Information
Not yet archived · Original link
ENVIRONMENTAL PROTECTION OFFICER RESPONSE
Consultation Letter
Not yet archived · Original link
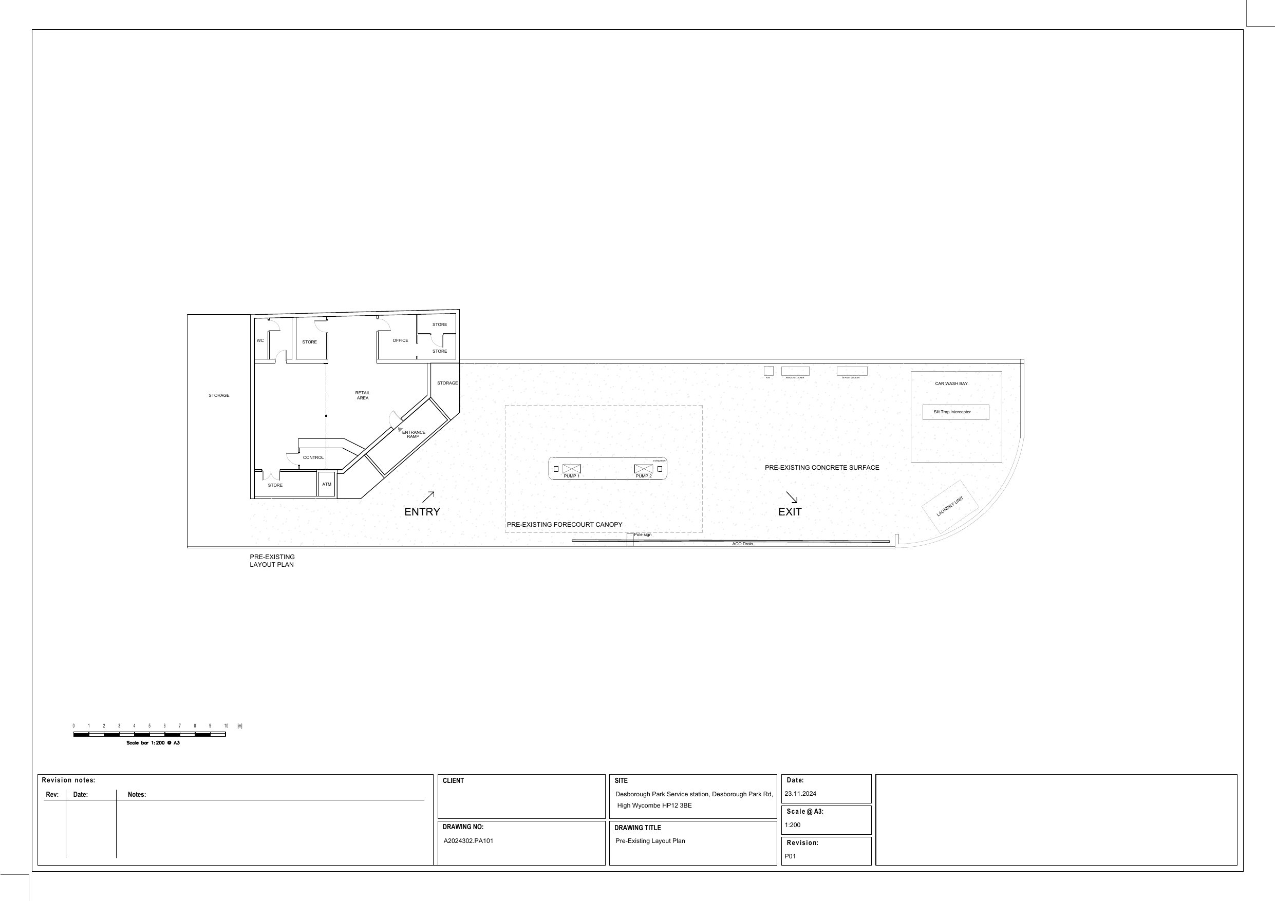
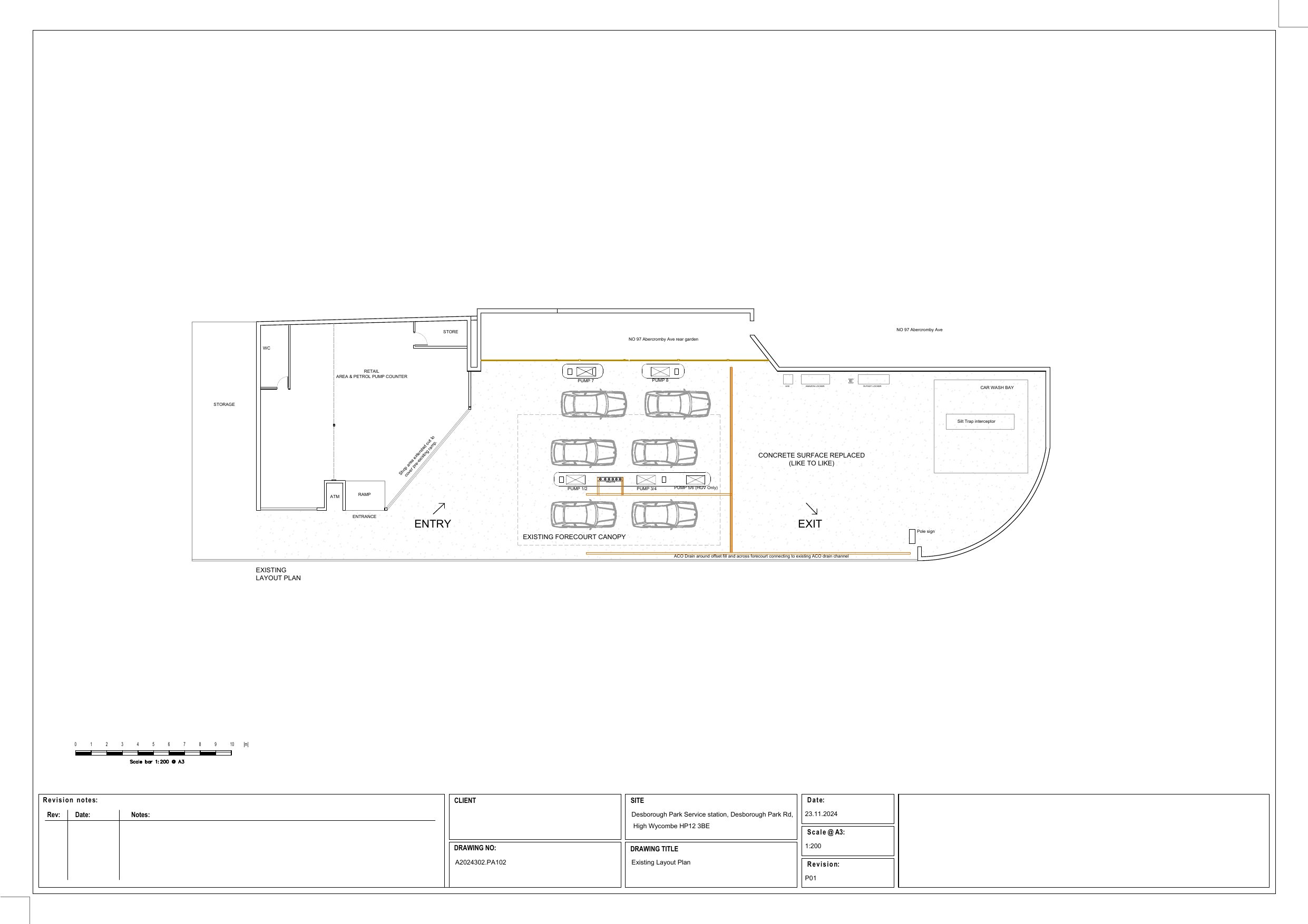
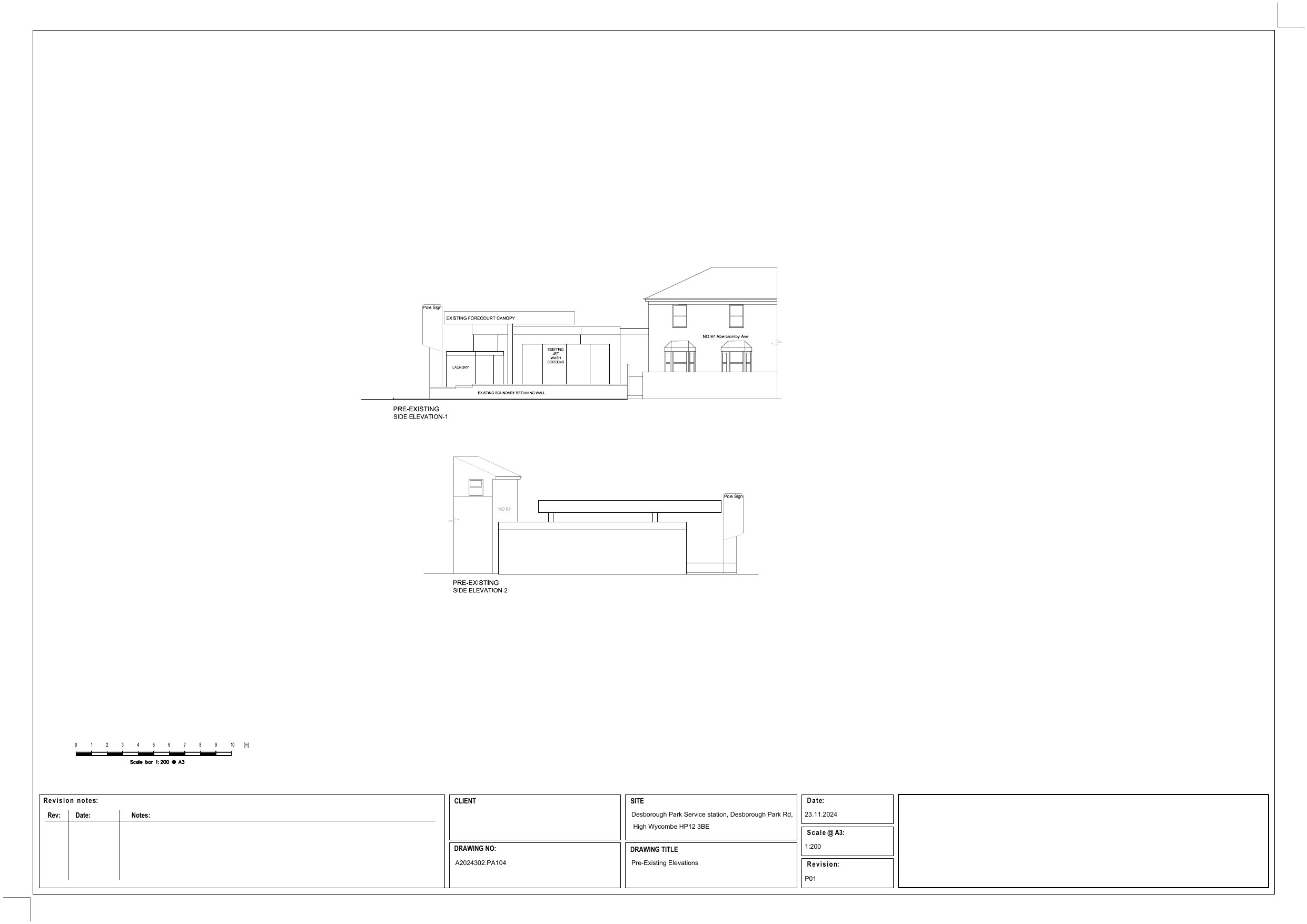
PRE-EXISTING LAYOUT PLAN
Plan
Not yet archived · Original link
Additional Information
Archived · Original link
Consultee Comment
Archived · Original link
Consultation Letter
Archived · Original link
SUMMARY OF AMENDMENTS CHECKLIST
Additional Information
Not yet archived · Original link
SUMMARY OF AMENDMENTS CHECKLIST
Additional Information
Not yet archived · Original link
Additional Information
Archived · Original link
Additional Information
Archived · Original link
Additional Information
Archived · Original link

Have your say

Your comment matters. Councils must consider every representation that raises material planning considerations.

Write a comment