← Buckinghamshire Council

Status

Registered New housing
Received
Not recorded
New homes
1

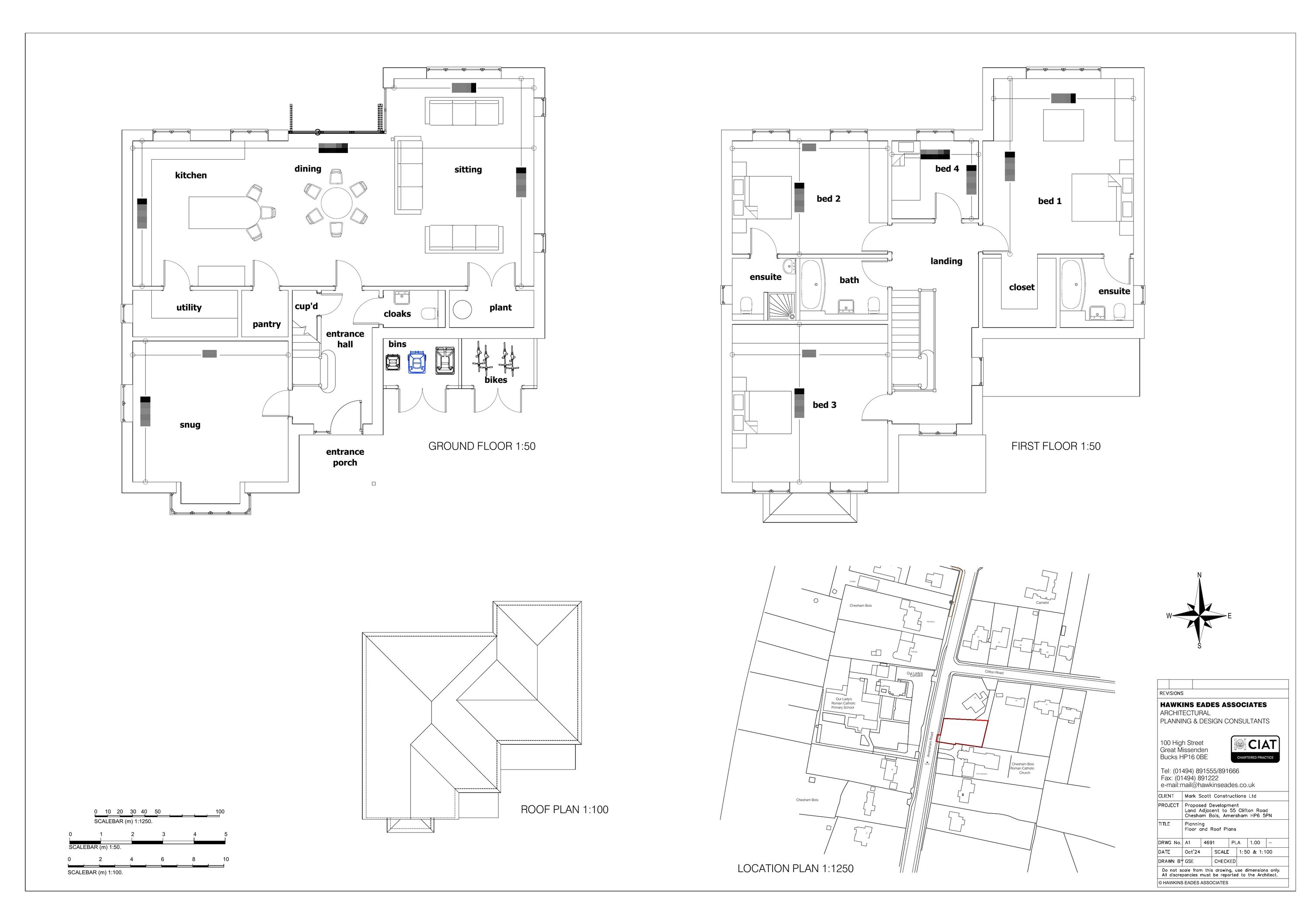
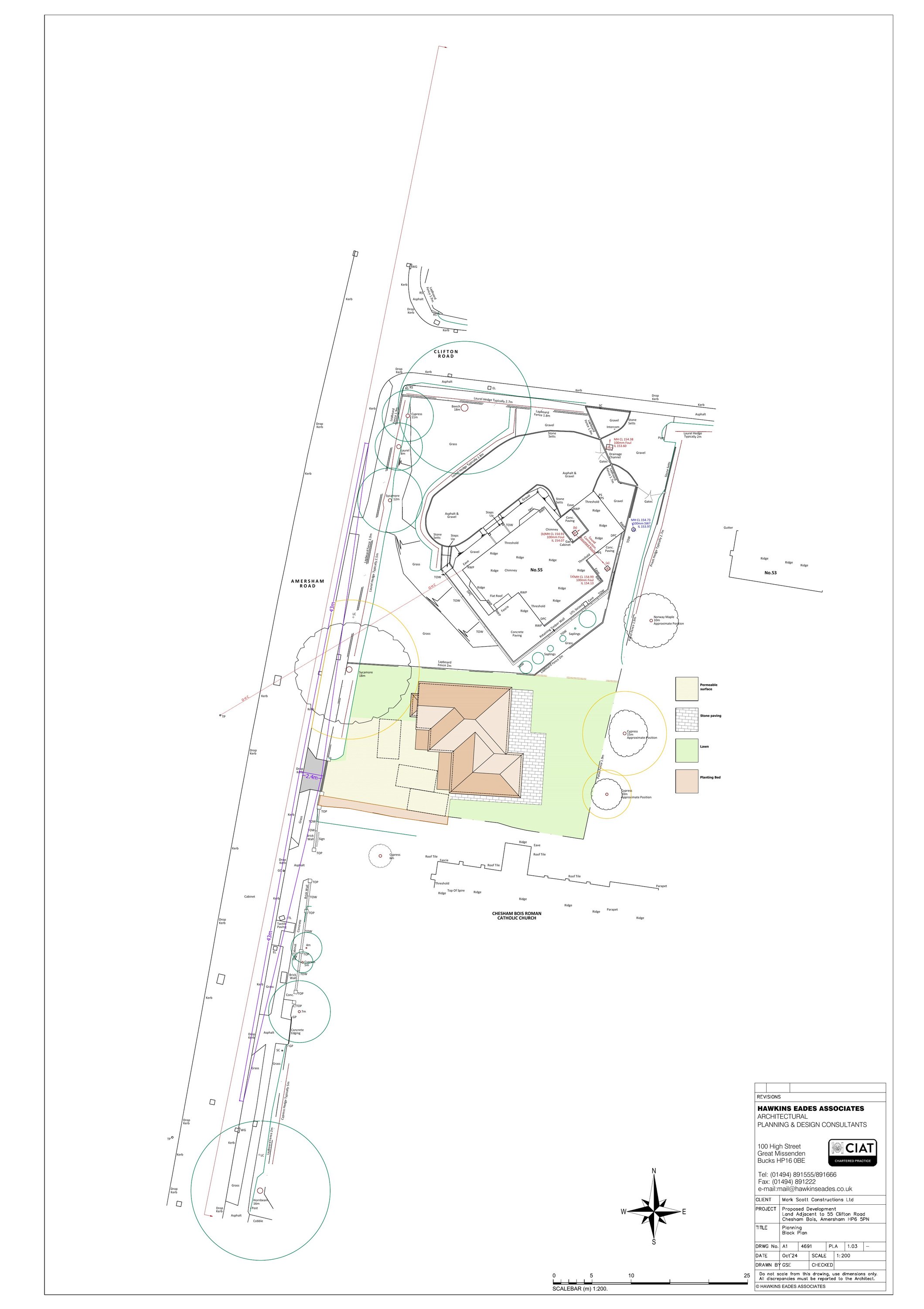
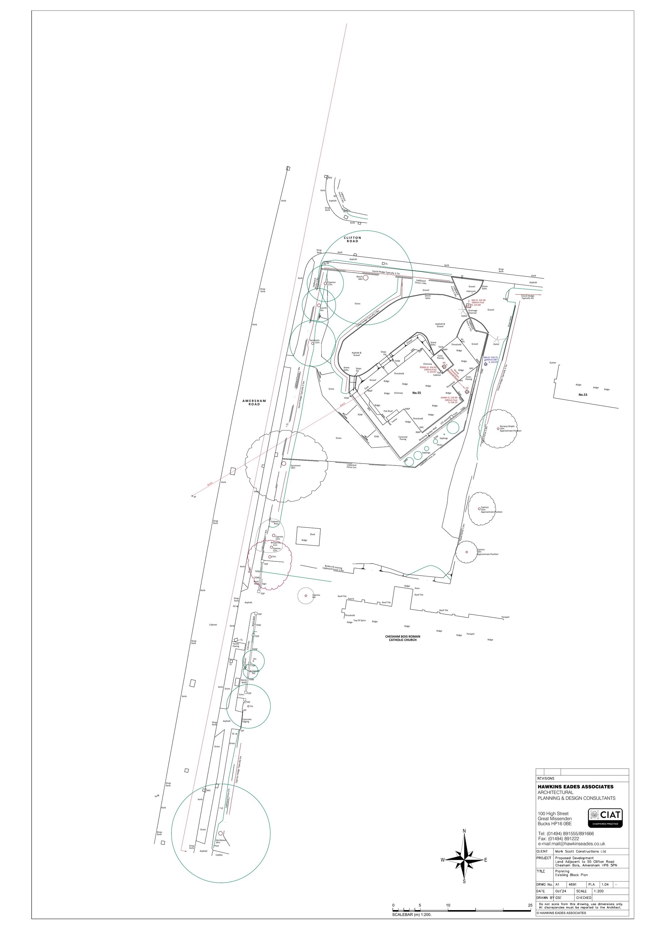
Full proposal

Construction of a single detached dwelling with new access to Amersham Road, together with associated hard and soft landscaping.

Documents

24-044 - BNG METRIC LAND TO THE REAR OF 55 CLIFTON ROAD
Additional Information
Not yet archived · Original link
Application Form and Certificate
Archived · Original link
Additional Information
Archived · Original link
Consultation Letter
Archived · Original link
Planning Committee
Archived · Original link
Planning Committee
Archived · Original link
Consultation Letter
Archived · Original link
Additional Information
Archived · Original link
Consultation Letter
Archived · Original link
Consultation Letter
Archived · Original link
Additional Information
Archived · Original link
Additional Information
Archived · Original link
Consultation Letter
Archived · Original link
Additional Information
Archived · Original link

Have your say

Your comment matters. Councils must consider every representation that raises material planning considerations.

Write a comment