← Buckinghamshire Council

Status

Registered Change of use
Received
Not recorded
New homes
1

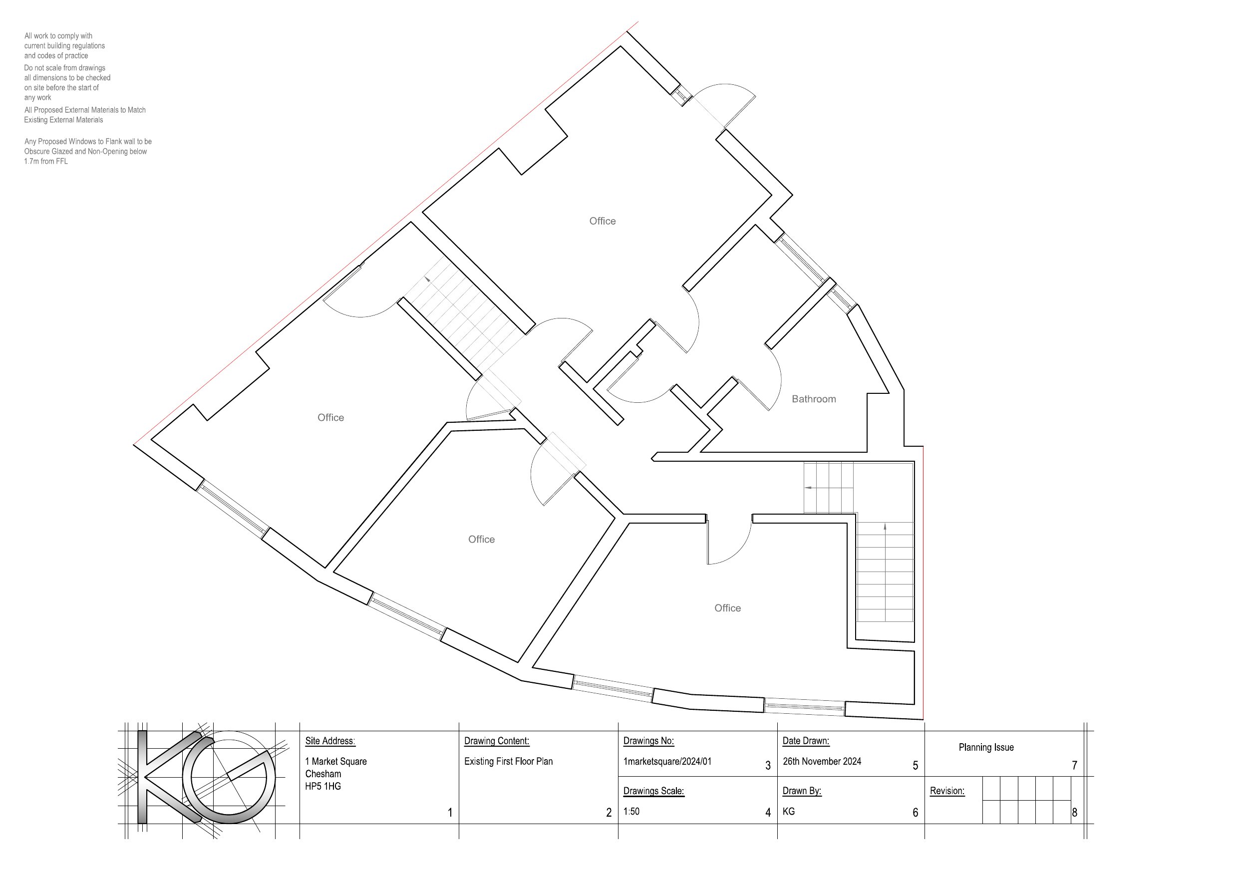
Full proposal

Change of use from office/storage and internal alterations to provide 1x 4 bedroom residential unit (Class C3) on first/second floors.

Documents

APPLICATIONFORMREDACTED
Application Form and Certificate
Not yet archived · Original link
Additional Information
Archived · Original link
Design and Access Statement
Archived · Original link
Consultation Letter
Archived · Original link
Additional Information
Archived · Original link
Consultation Letter
Archived · Original link
Plan - Location Plan
Archived · Original link
Consultation Letter
Archived · Original link

Have your say

Your comment matters. Councils must consider every representation that raises material planning considerations.

Write a comment