← Buckinghamshire Council

Status

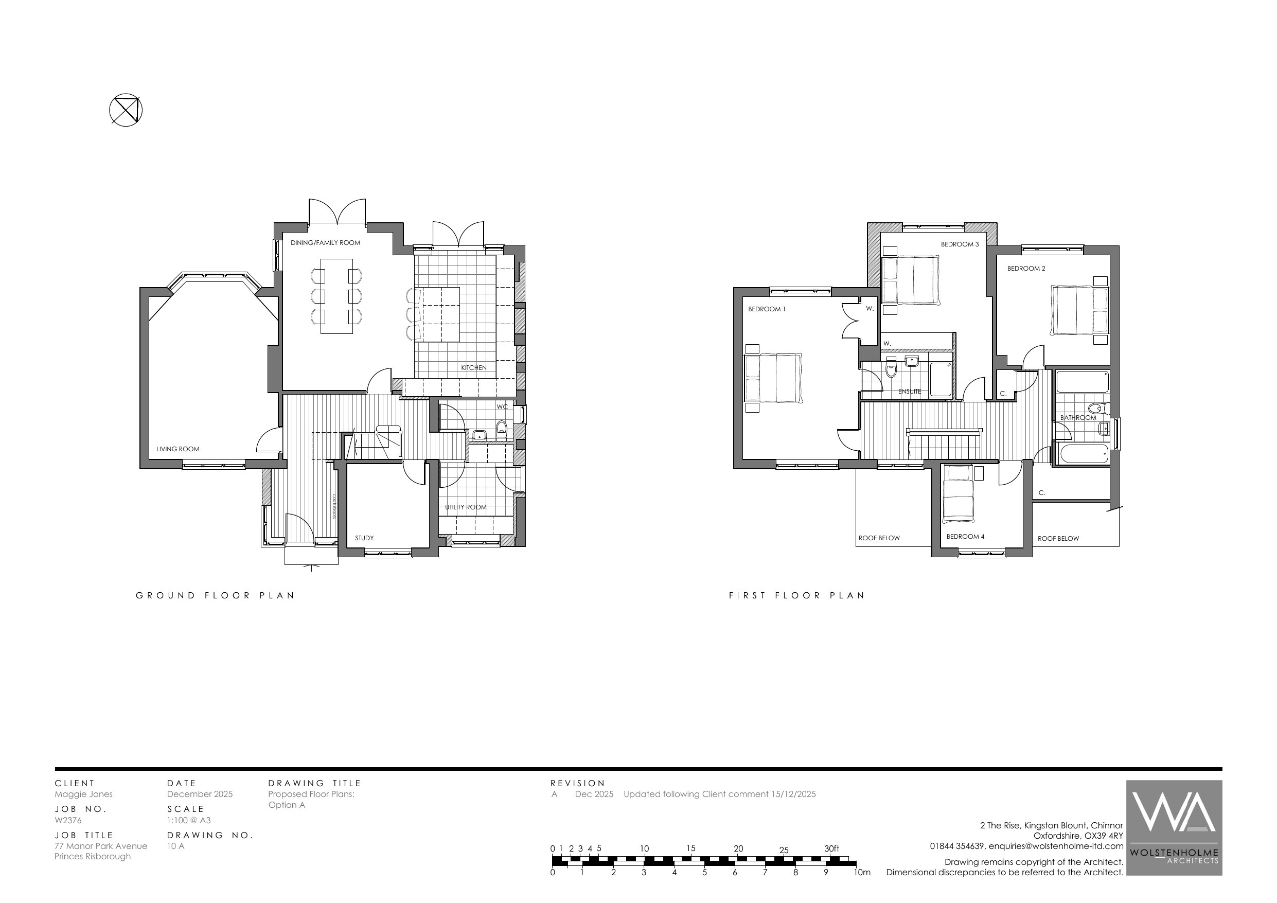
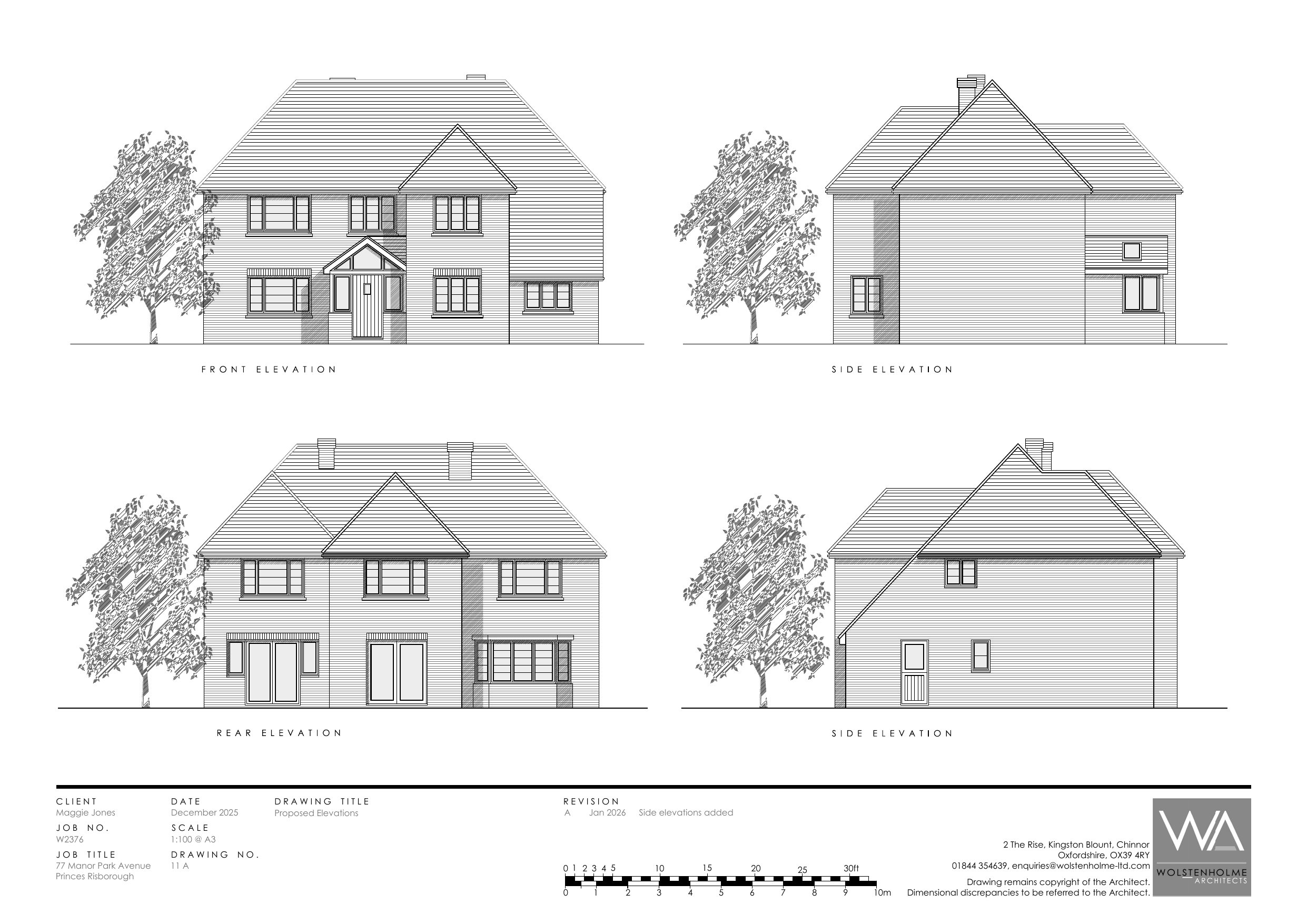
Registered House extension
Received
Not recorded
New homes
0

Full proposal

Rear first floor extension, garage conversion and front porch with fenestration alterations to the rear and side.

Have your say

Your comment matters. Councils must consider every representation that raises material planning considerations.

Write a comment