← Buckinghamshire Council

Status

Registered House extension
Received
Not recorded
New homes
0

Full proposal

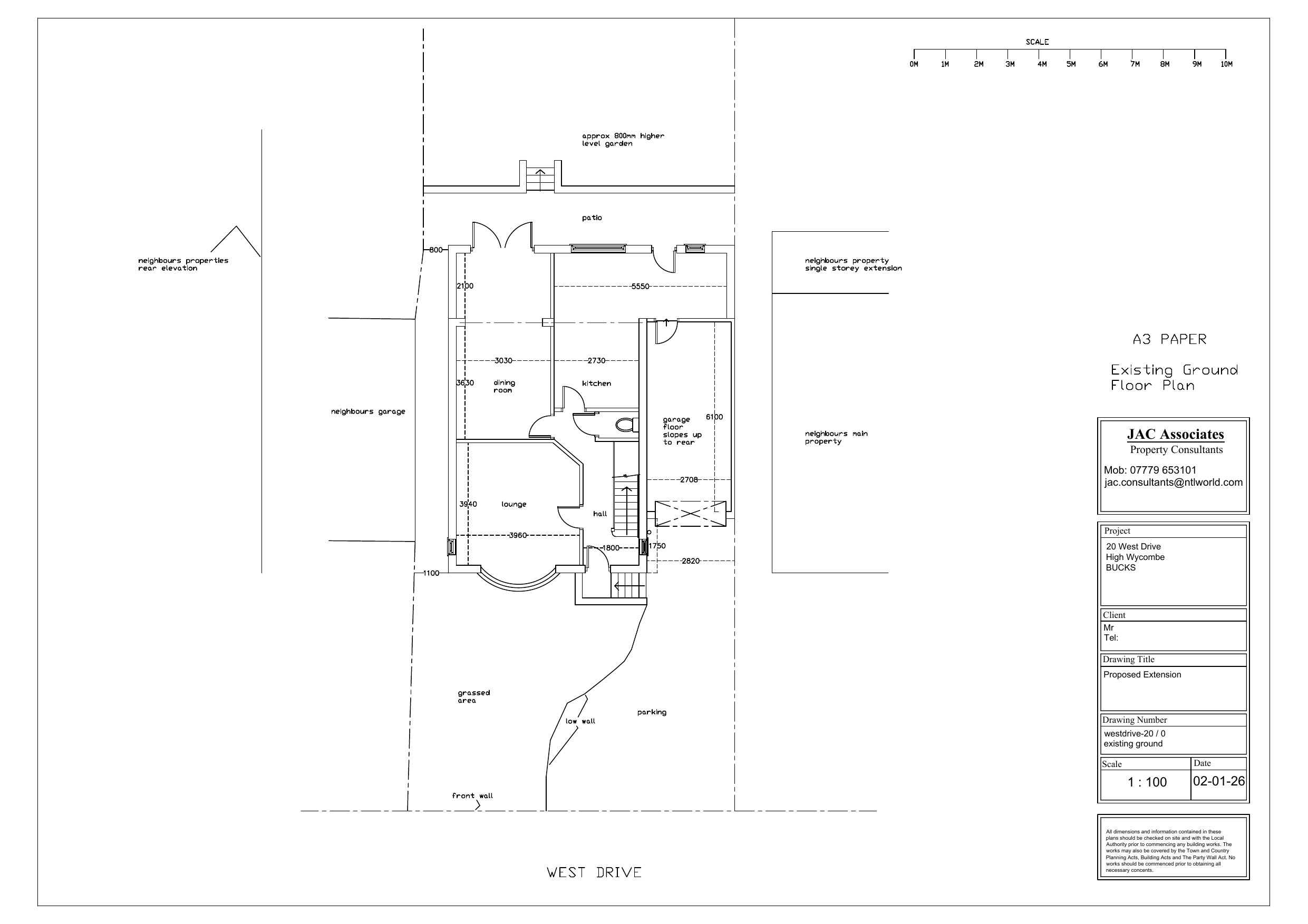
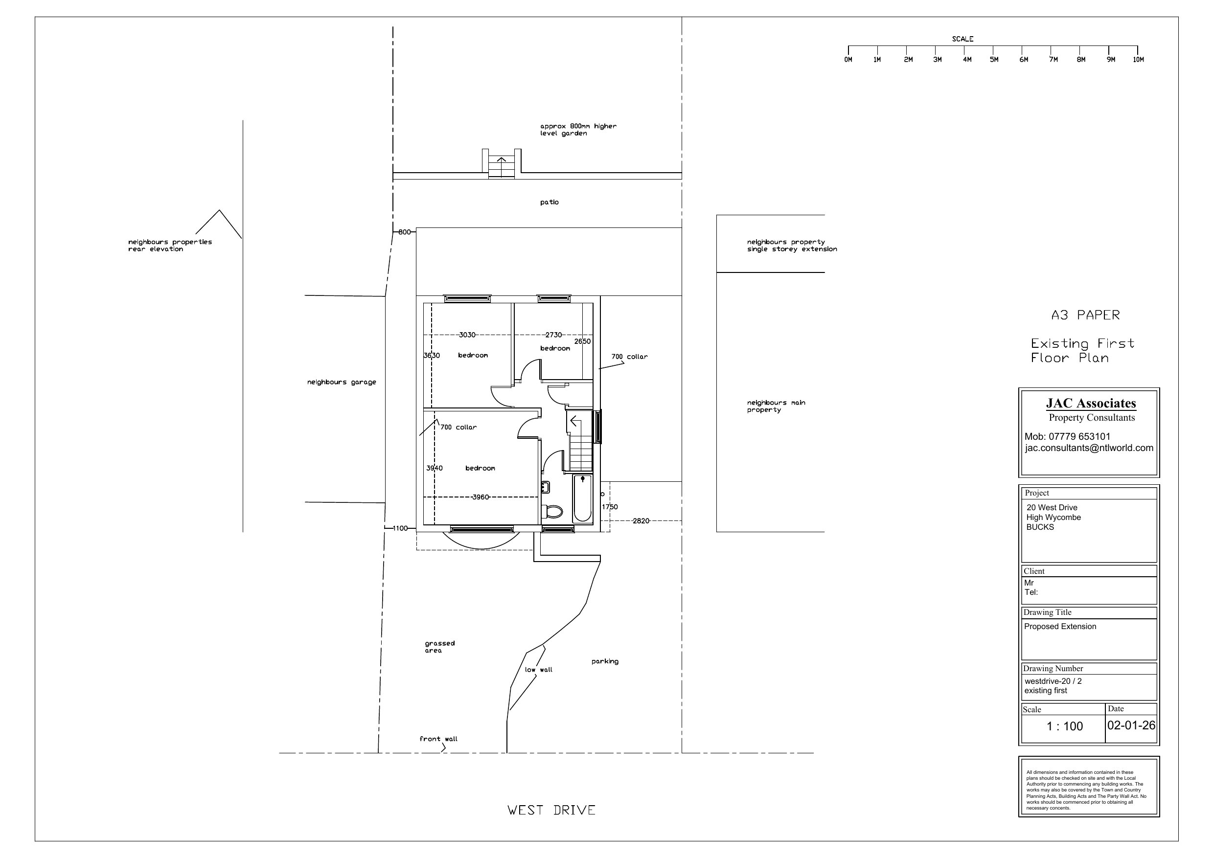
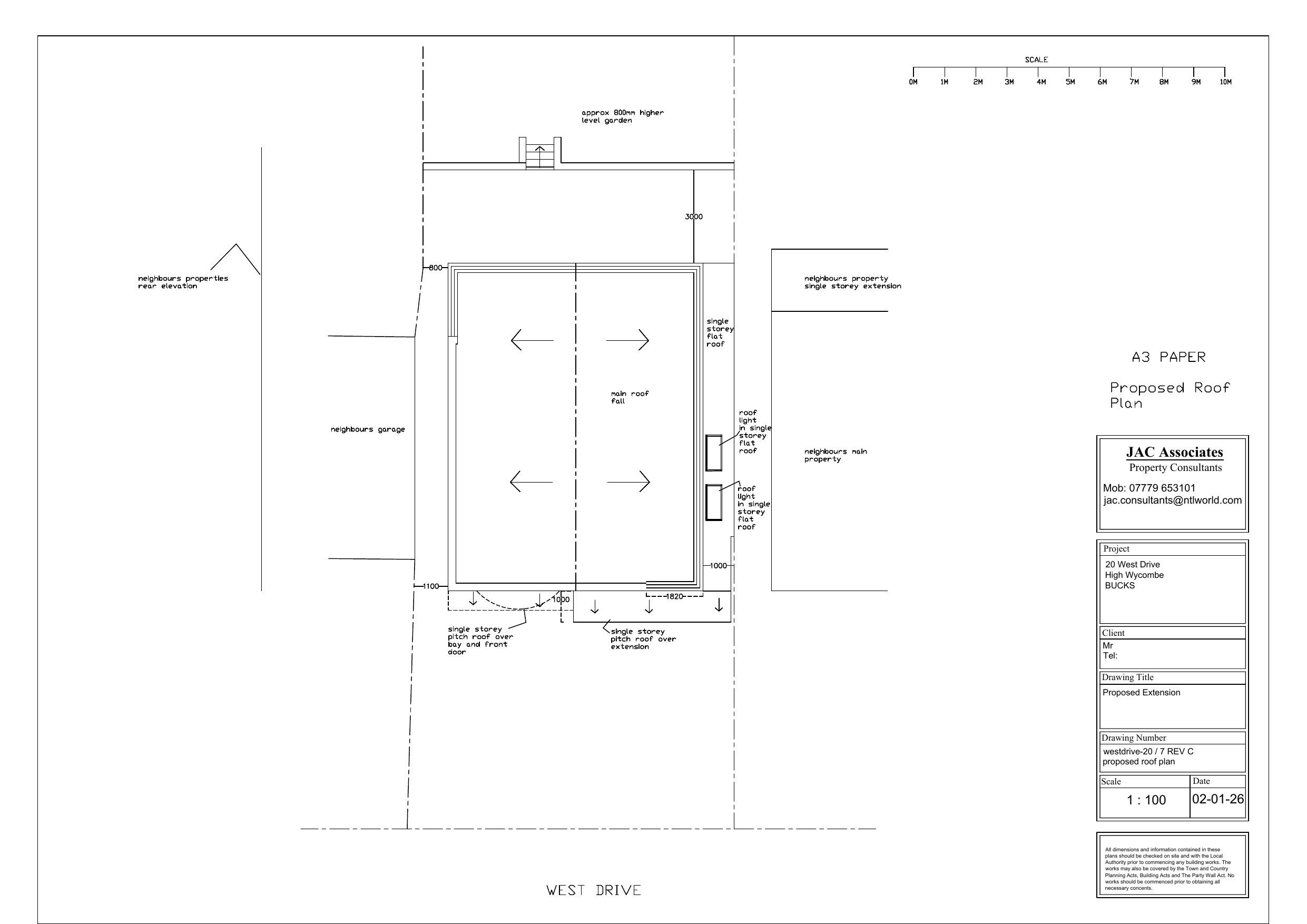
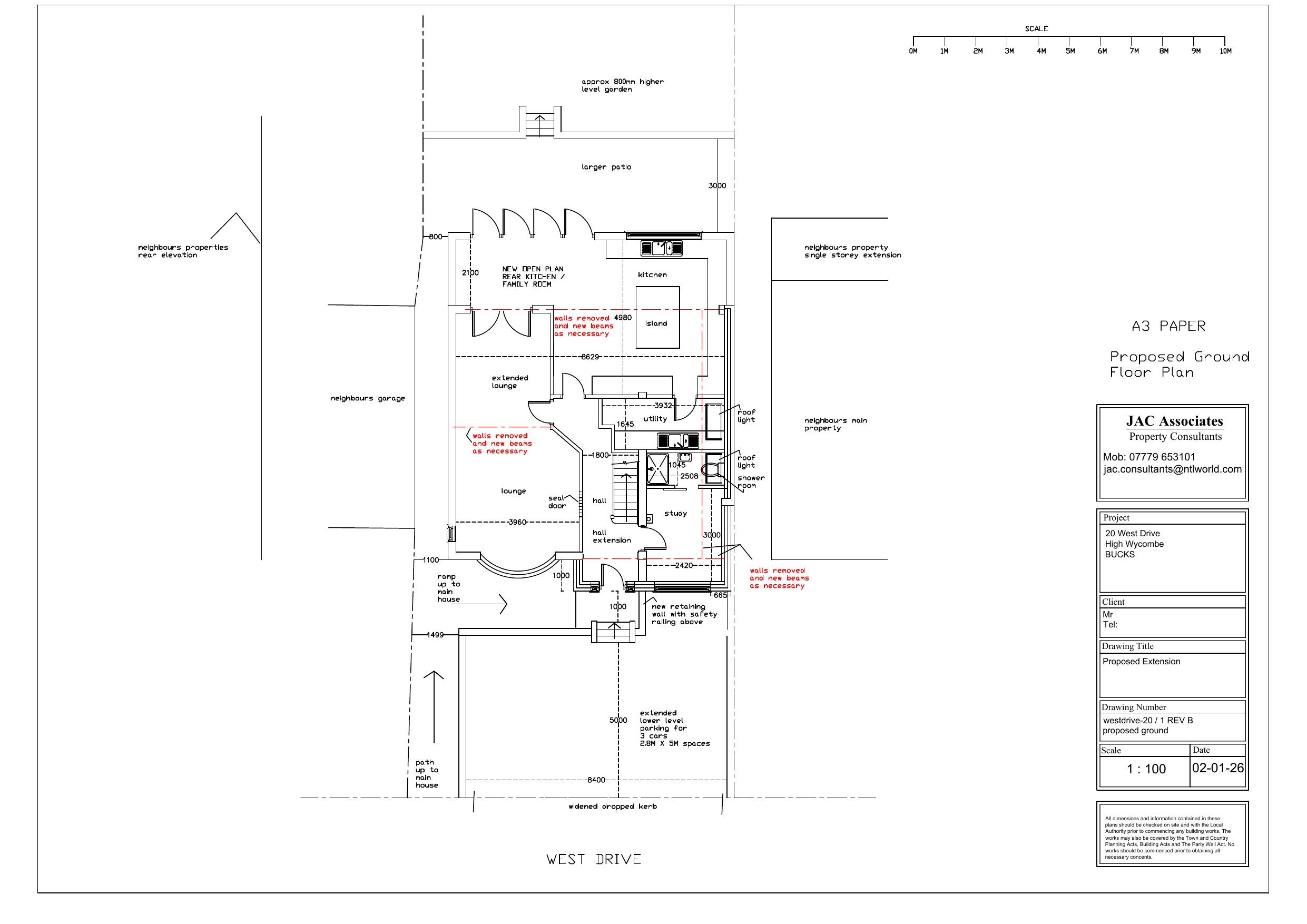
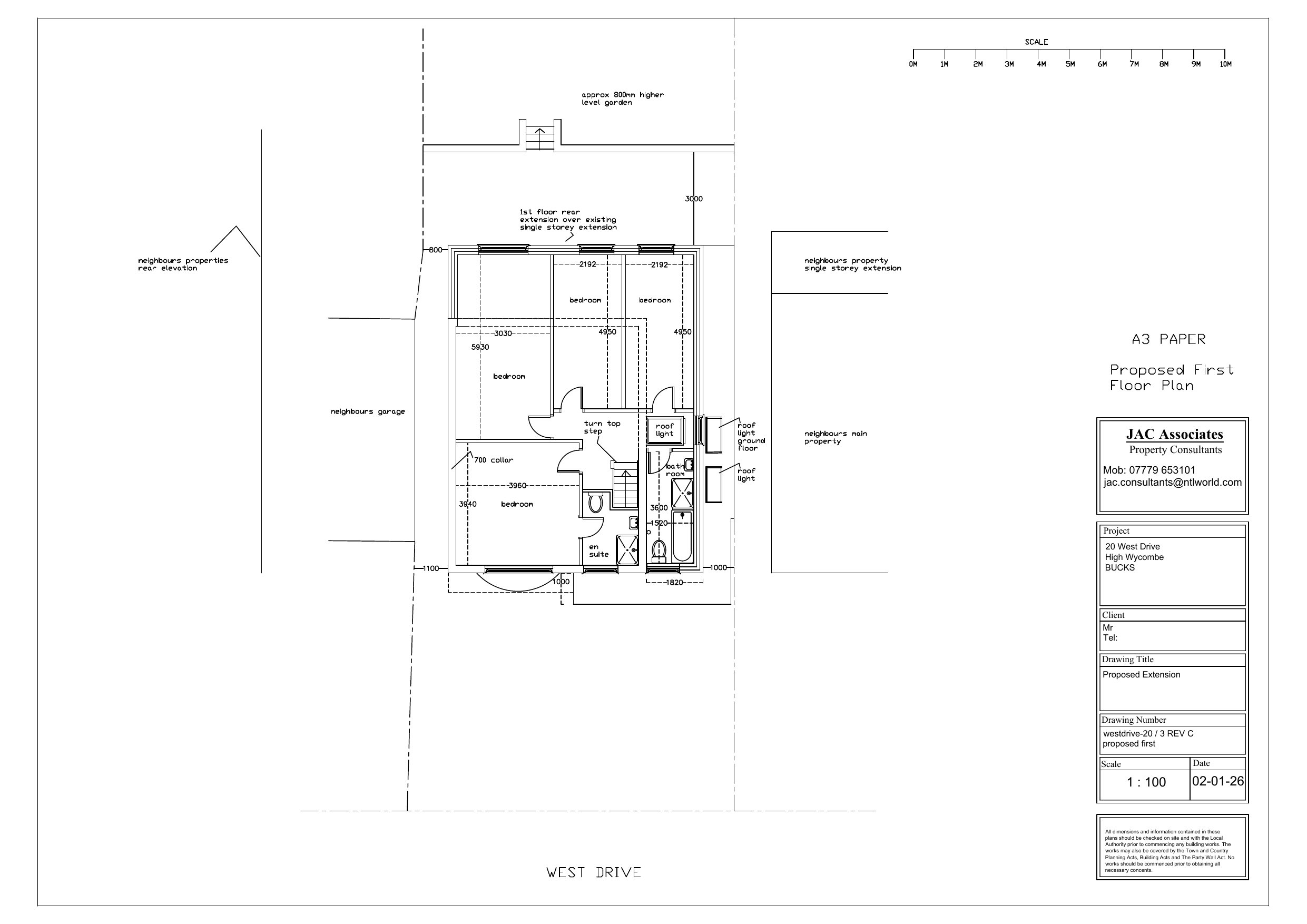
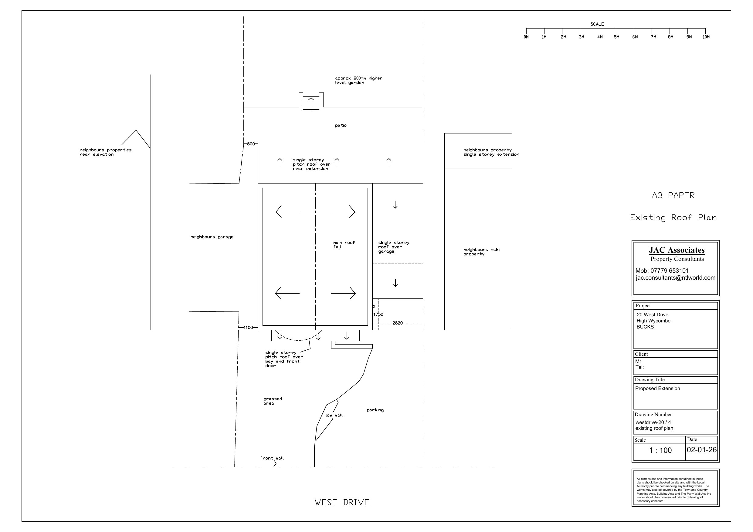
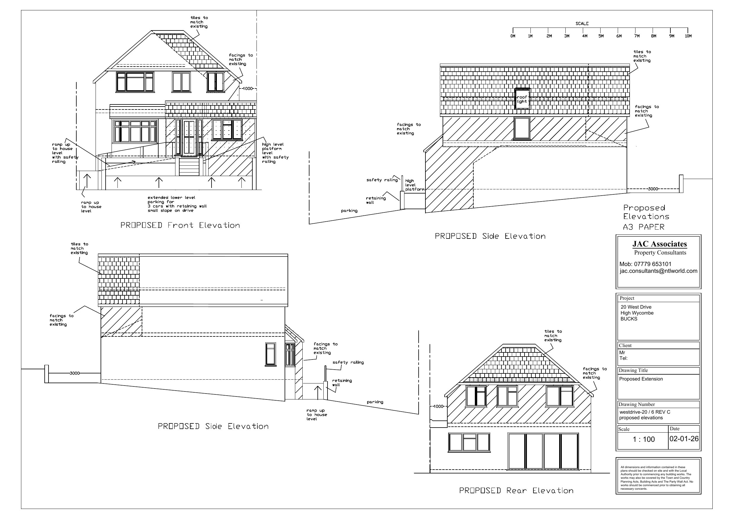
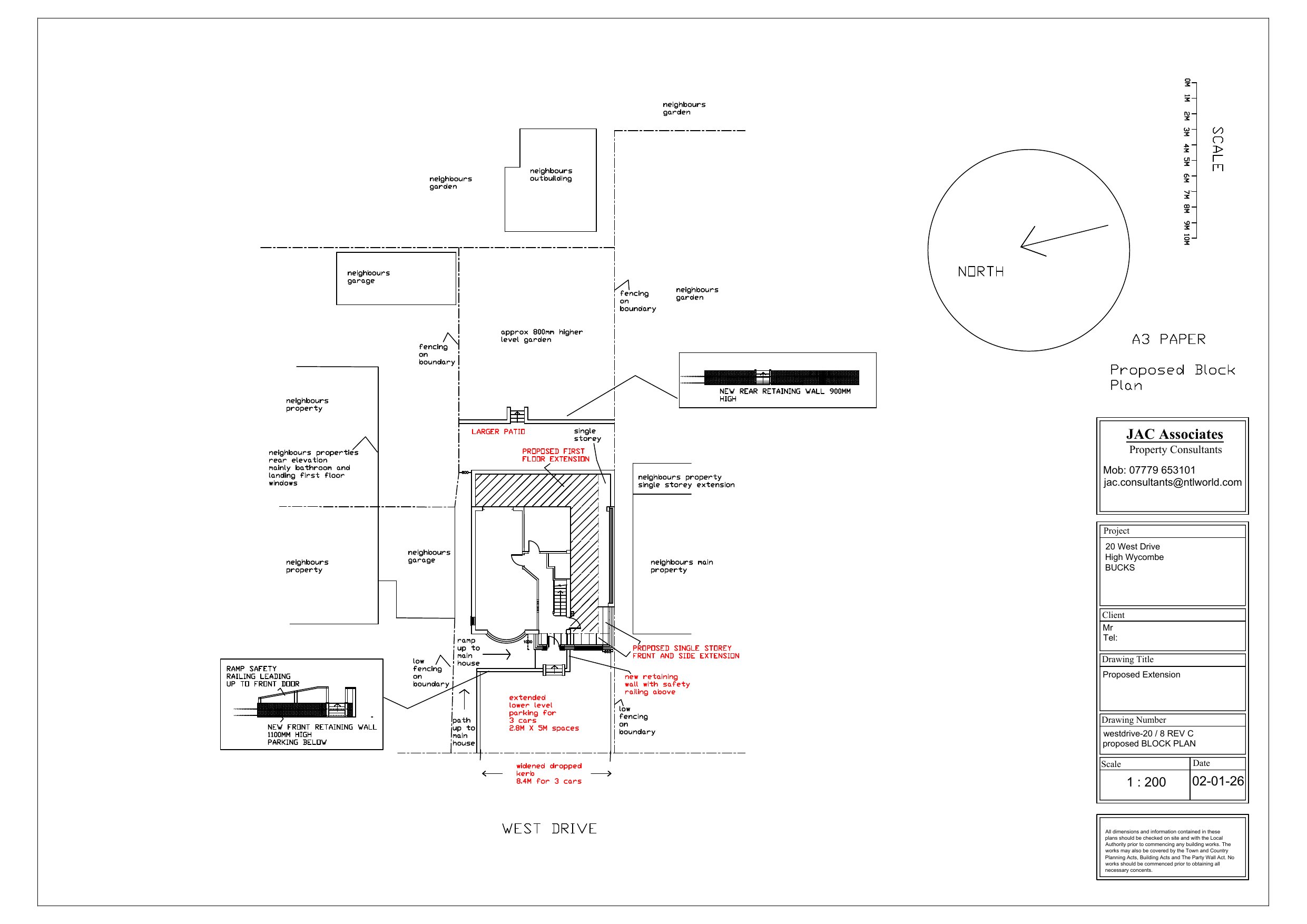
Single storey front, first floor rear and part two storey, part first floor side extension. Garage conversion to habitable space. Larger rear patio and retaining wall. Widening of dropped kerb / parking and retaining walls

Have your say

Your comment matters. Councils must consider every representation that raises material planning considerations.

Write a comment