← Buckinghamshire Council

Status

Registered New housing
Received
Not recorded
New homes
1

Full proposal

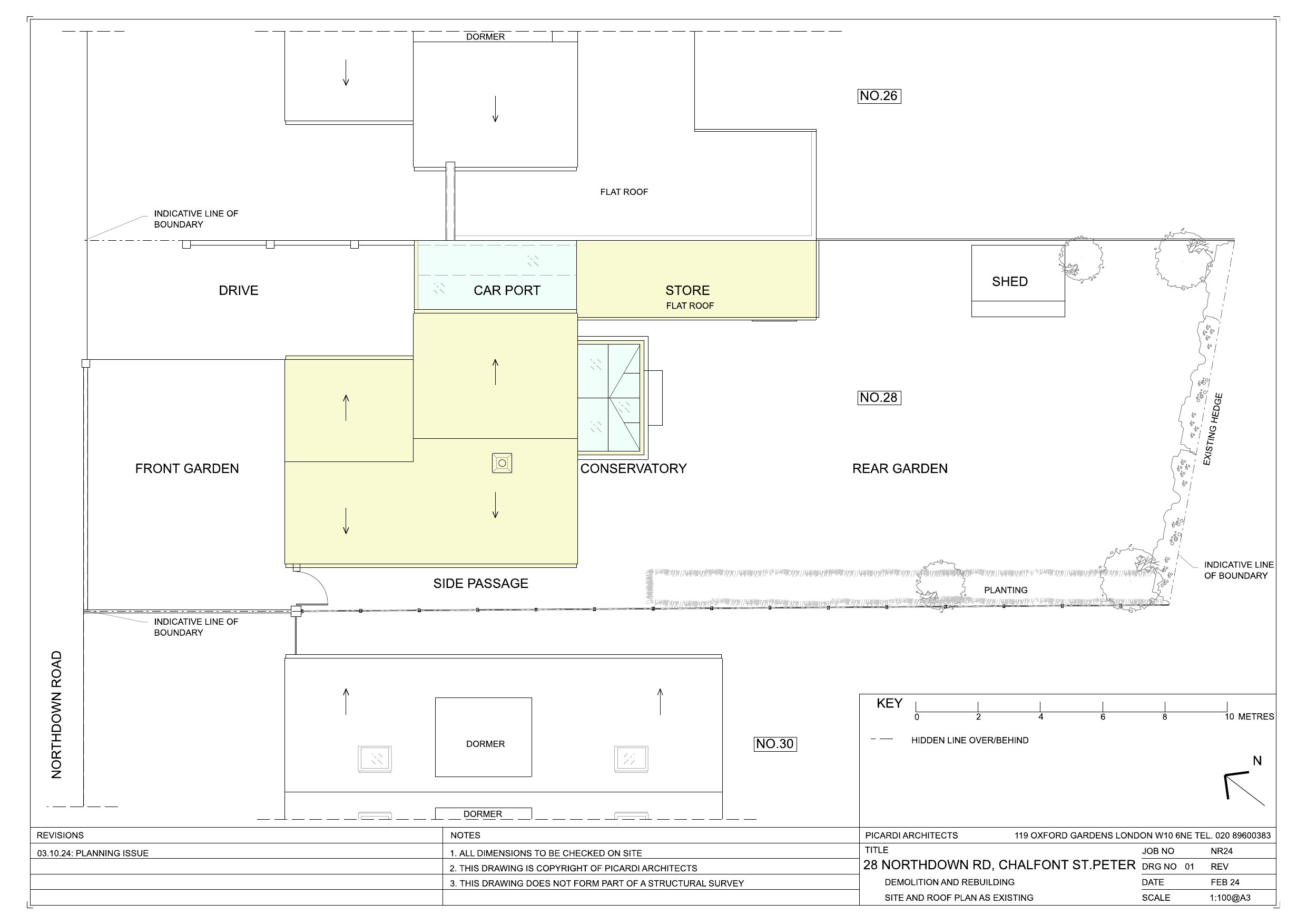
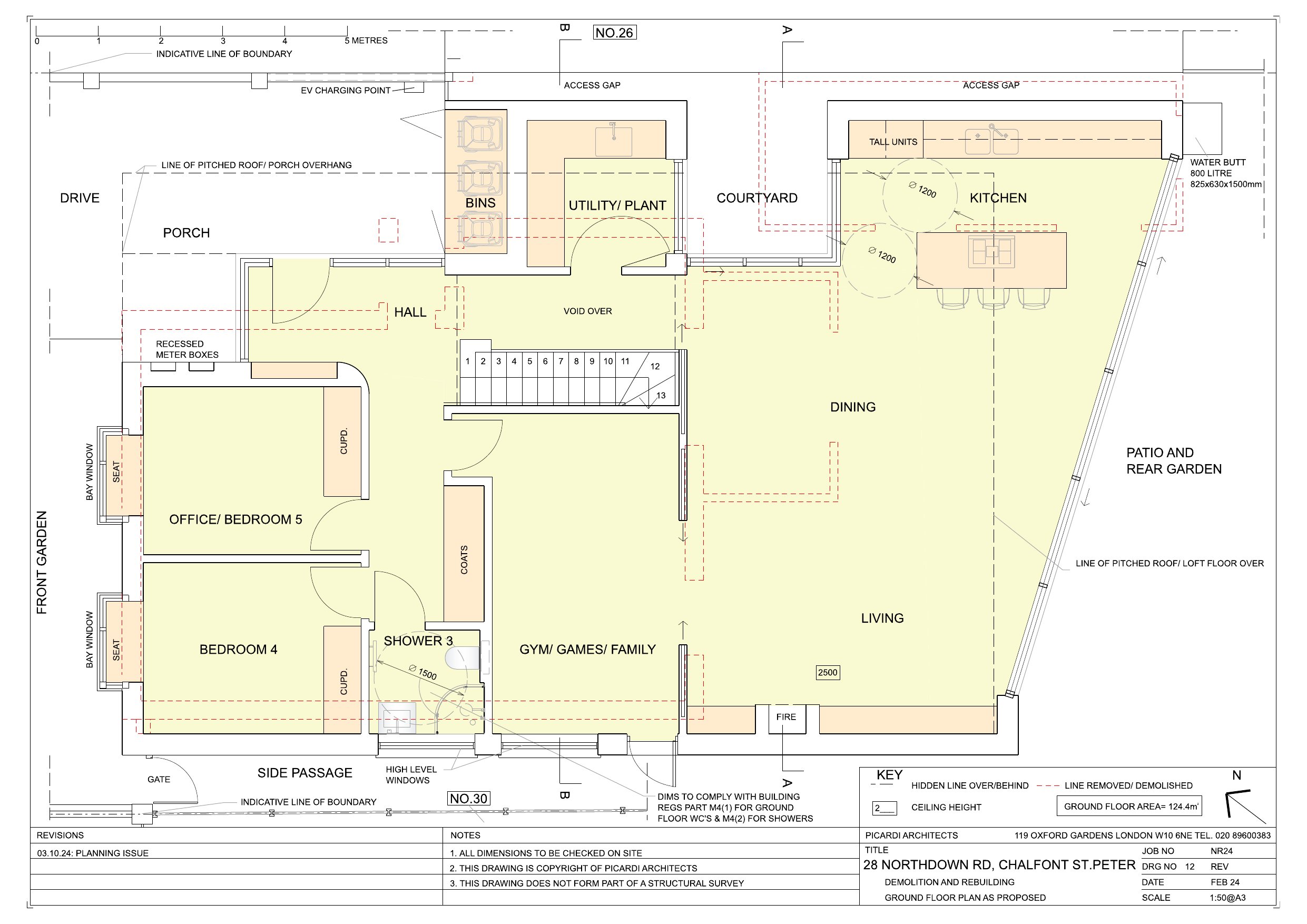
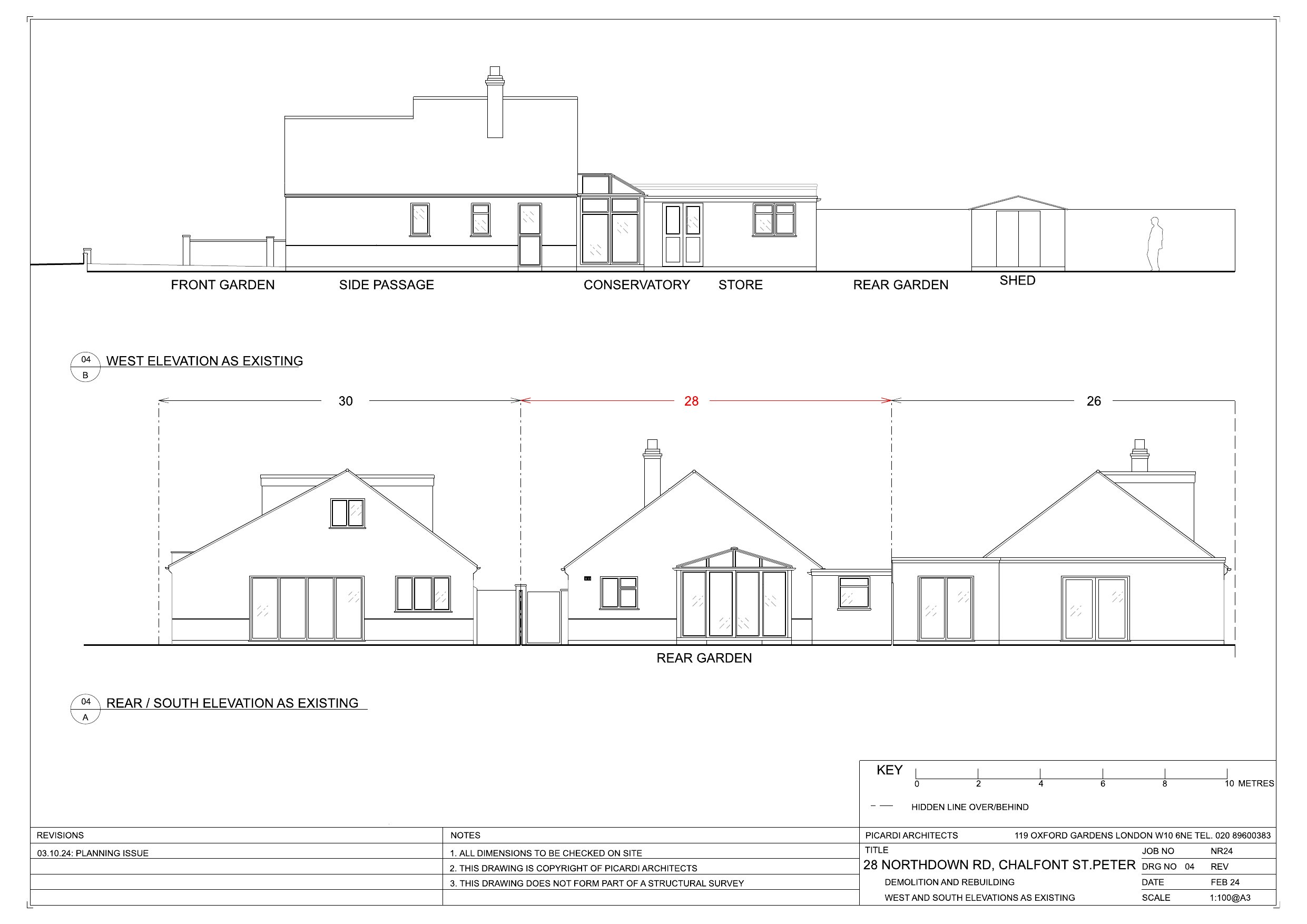
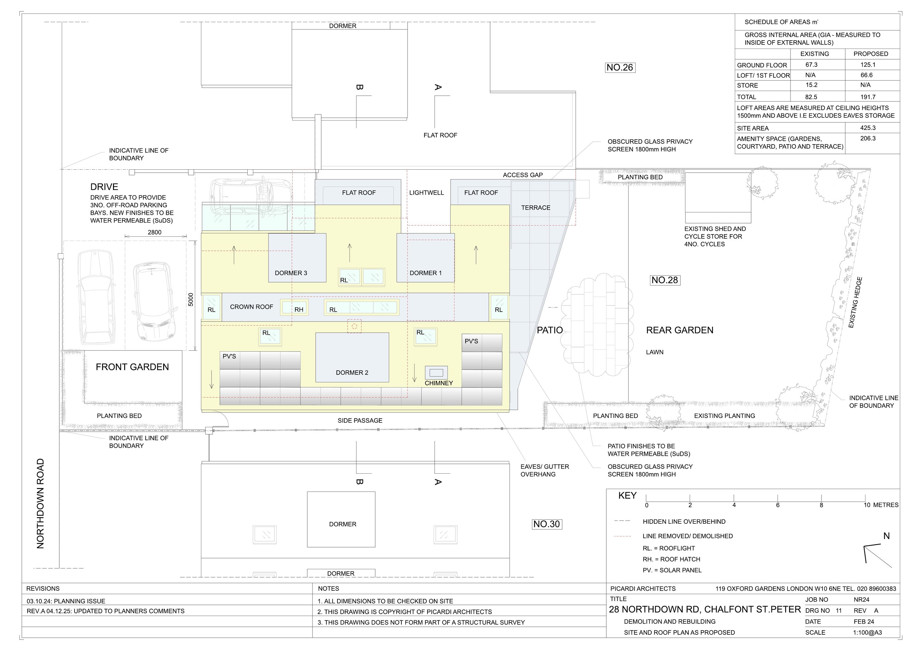
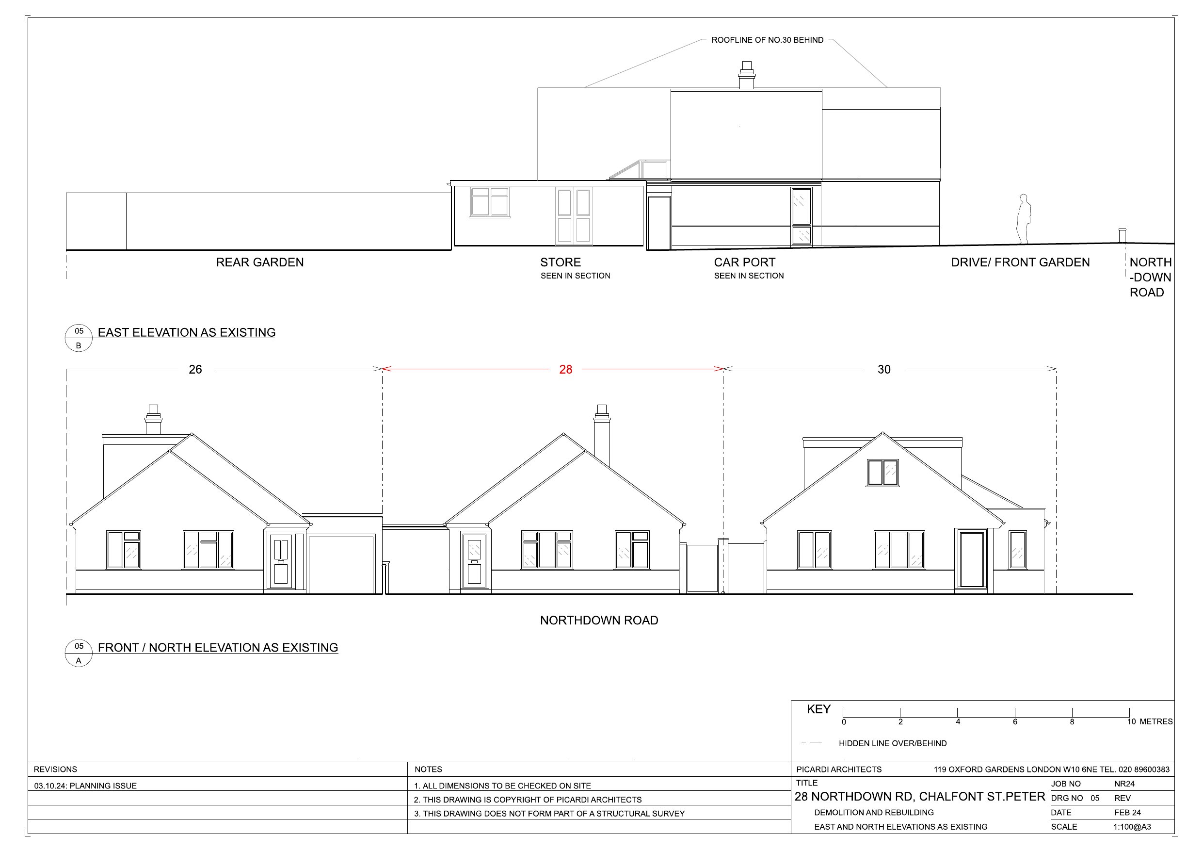
Demolition of the existing dwelling and erection of a new dwelling

Have your say

Your comment matters. Councils must consider every representation that raises material planning considerations.

Write a comment