← Buckinghamshire Council

Status

Awaiting decision House extension
Received
Not recorded
New homes
0

Full proposal

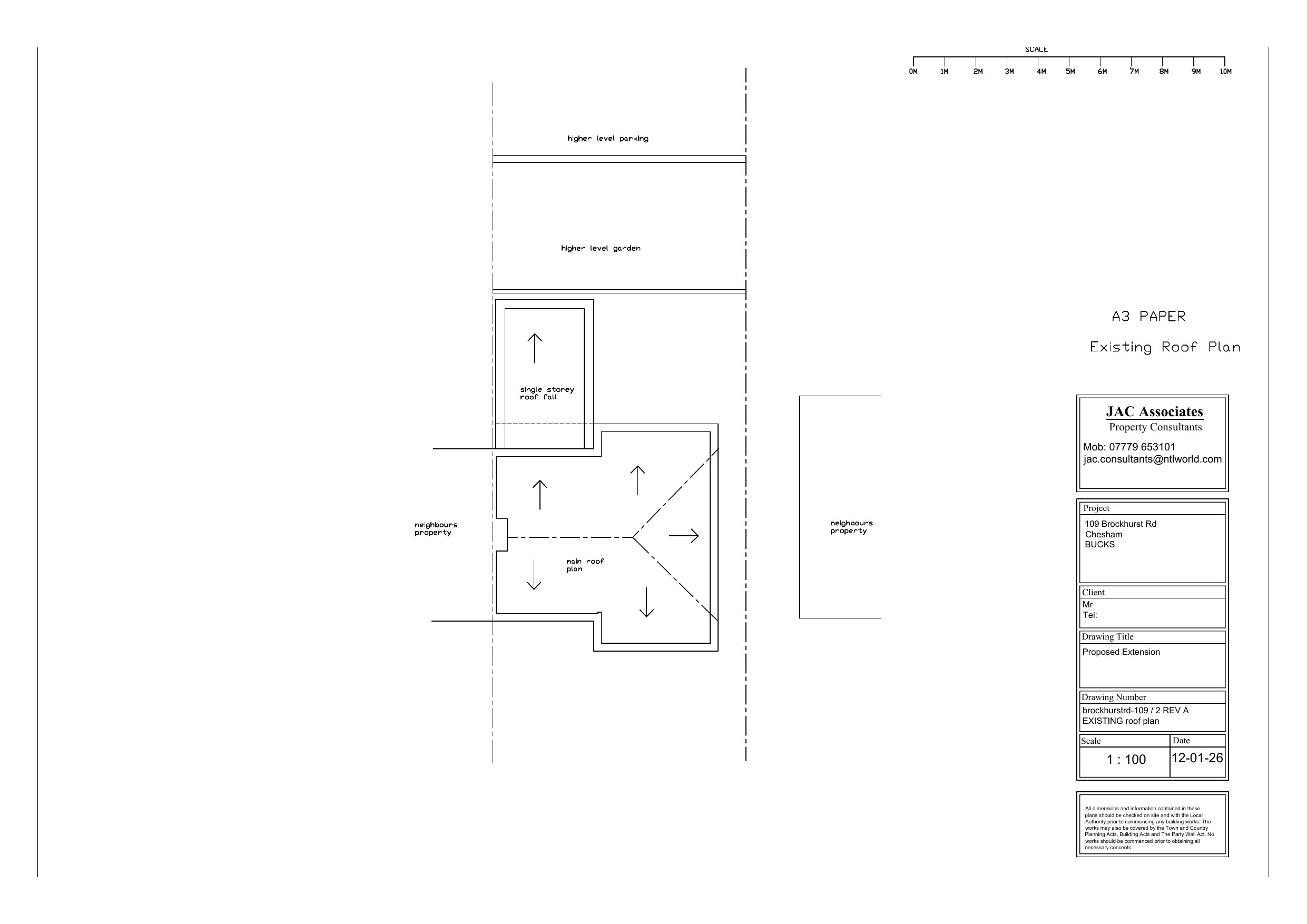
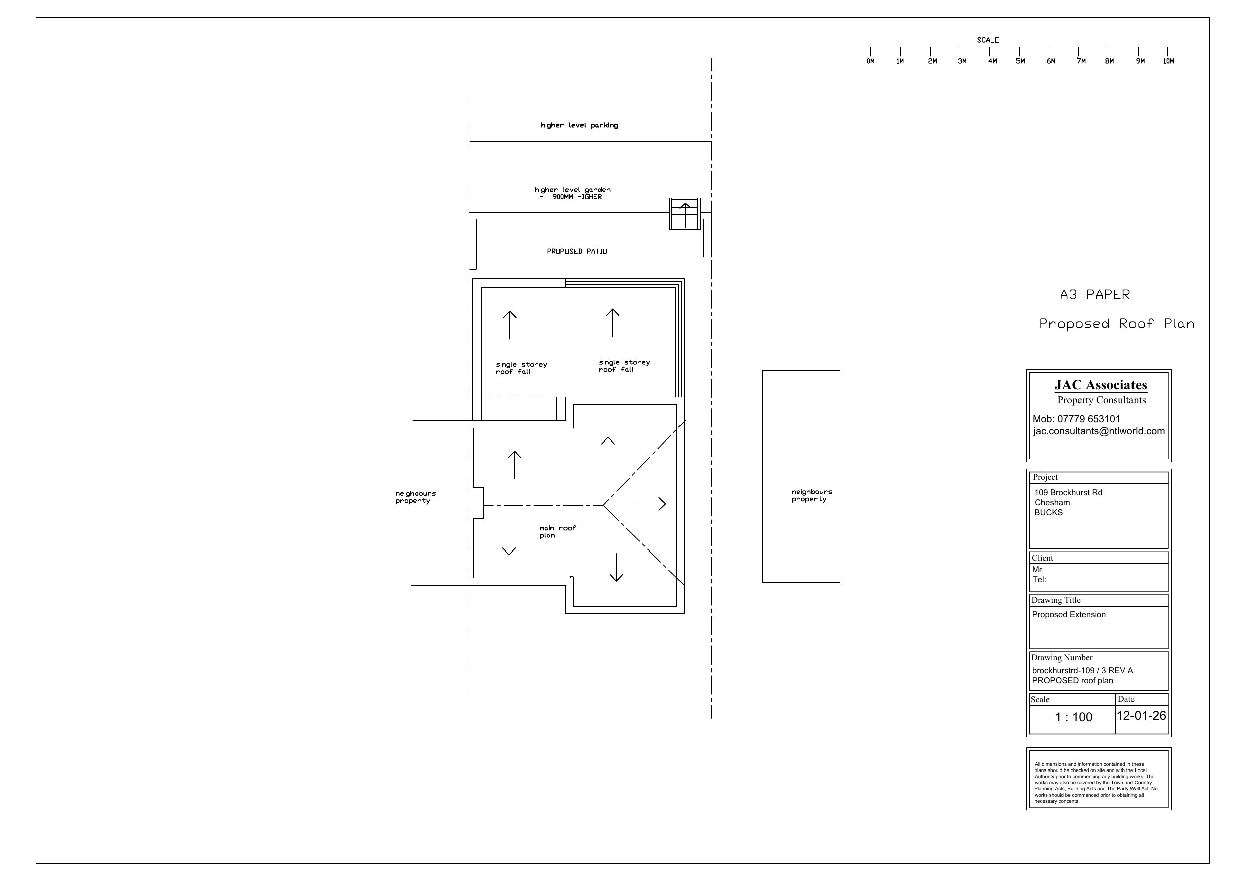
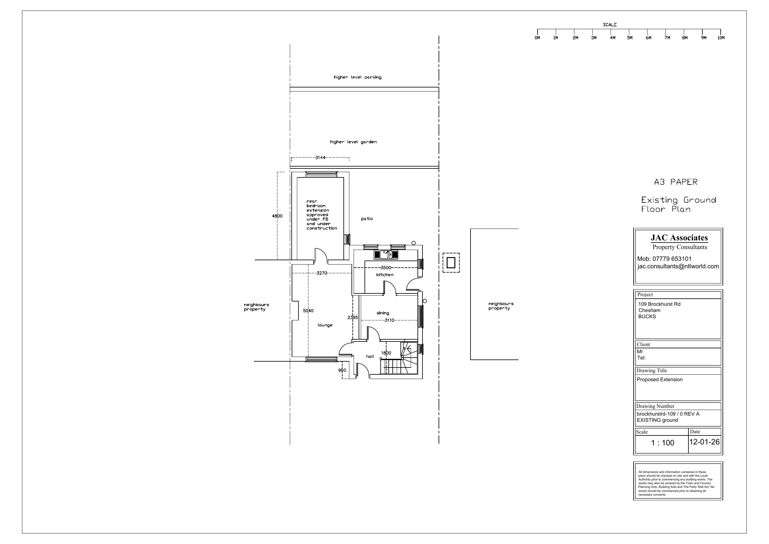
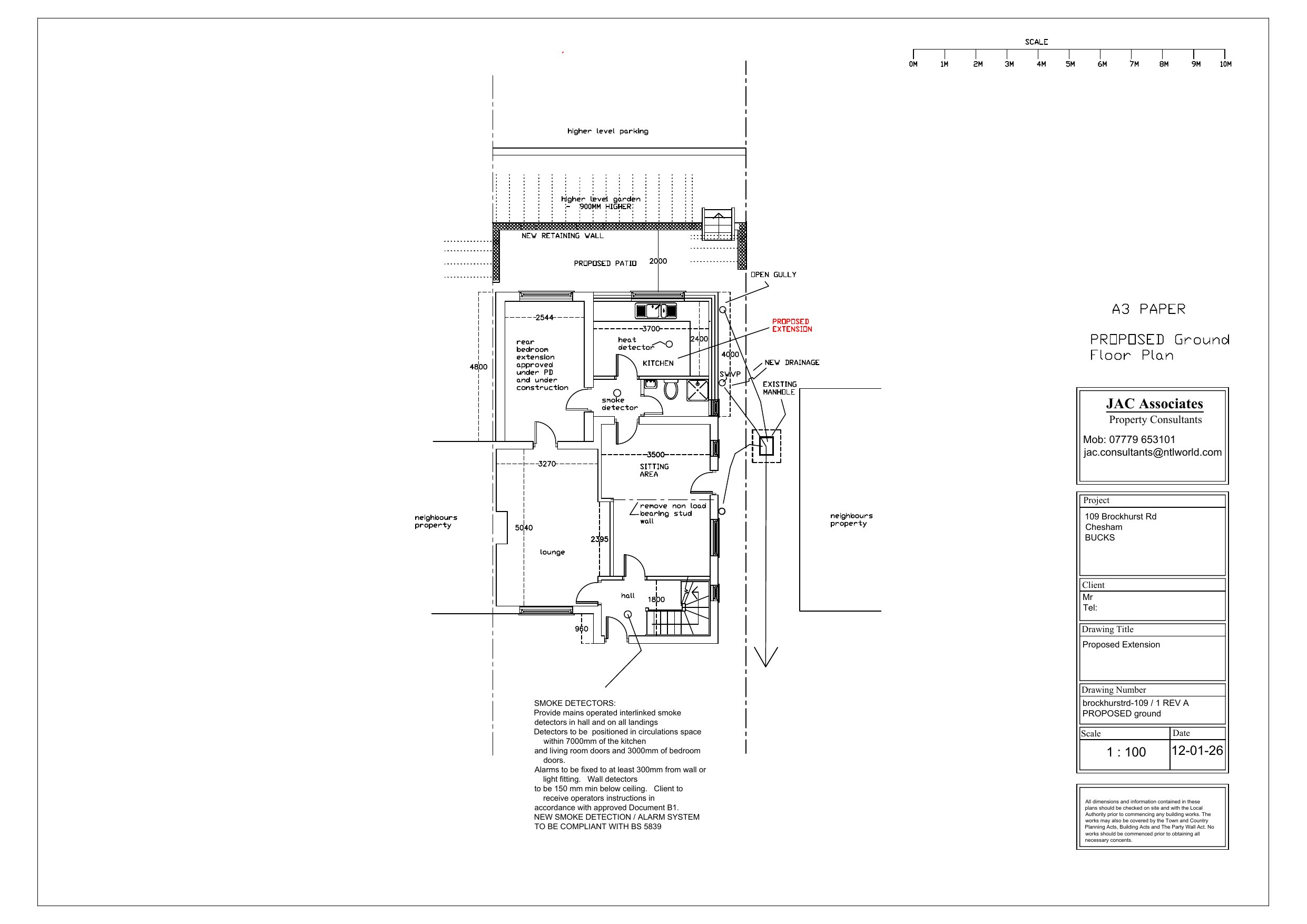
Construction of single storey rear extension and rear retaining wall

Documents

Plan
Archived · Original link
Plan - Location Plan
Archived · Original link
Plan - Block Plan
Archived · Original link
Plan
Archived · Original link

Have your say

Your comment matters. Councils must consider every representation that raises material planning considerations.

Write a comment