← Buckinghamshire Council

Status

Registered New housing
Received
Not recorded
New homes
1

Full proposal

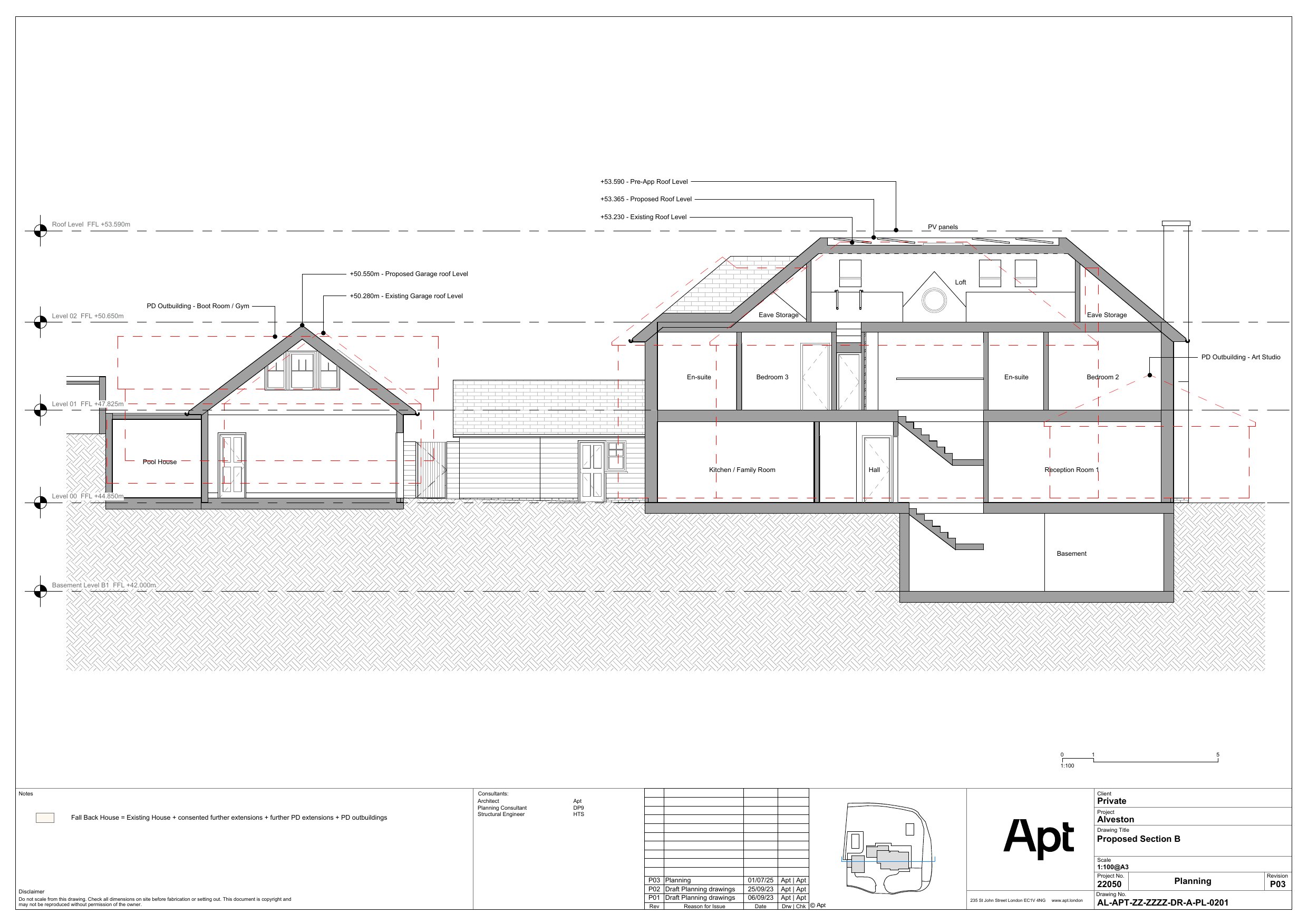
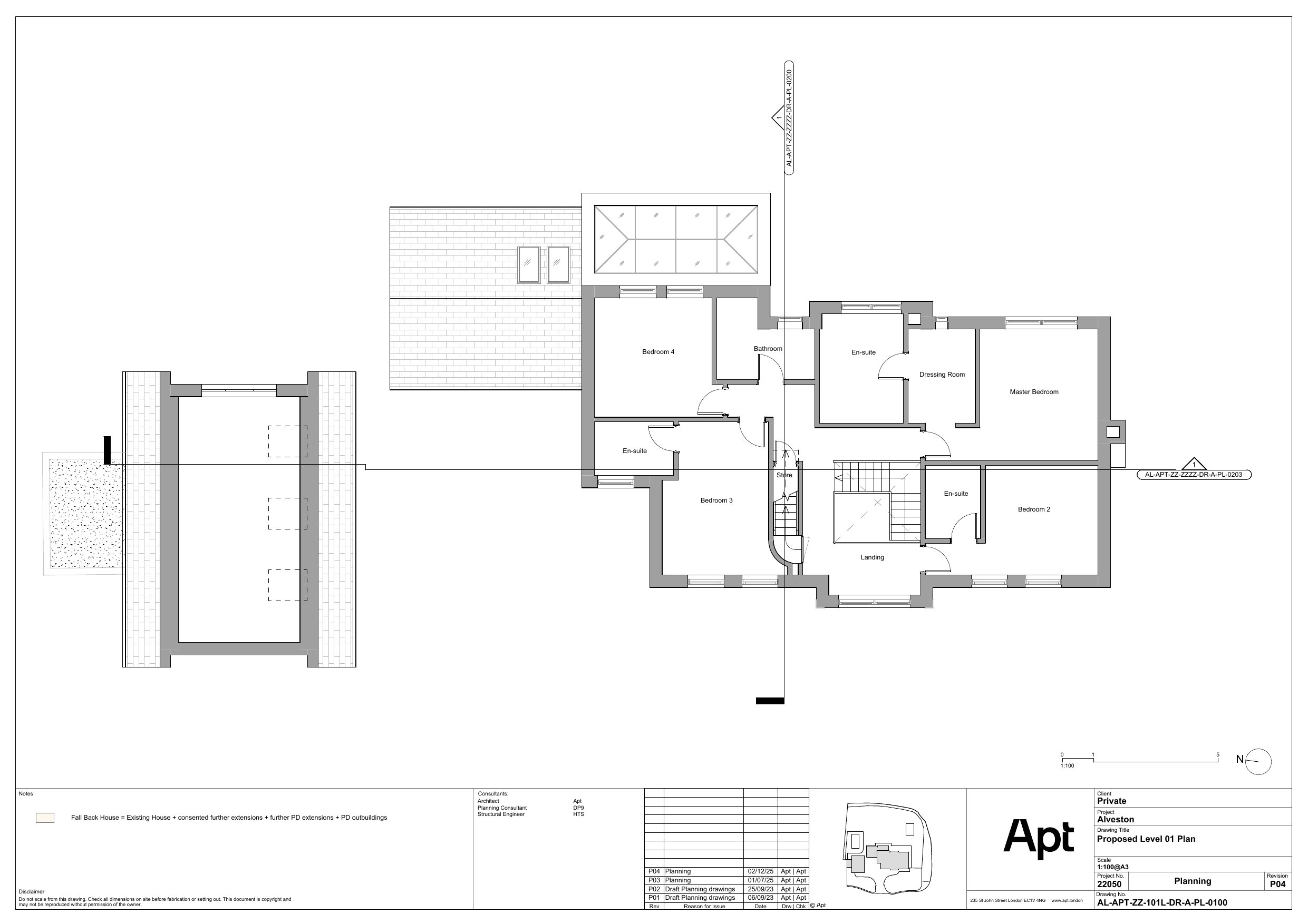
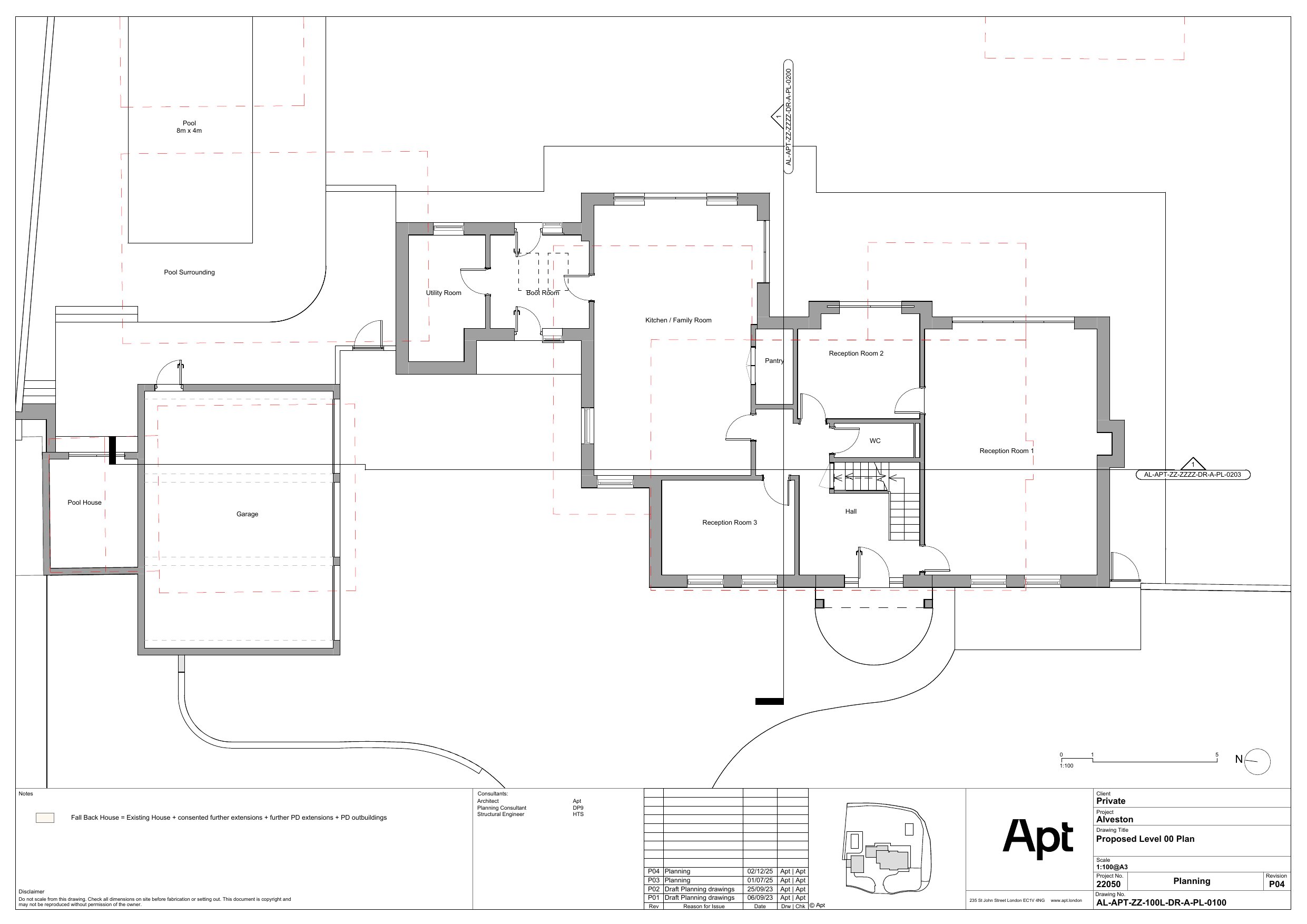
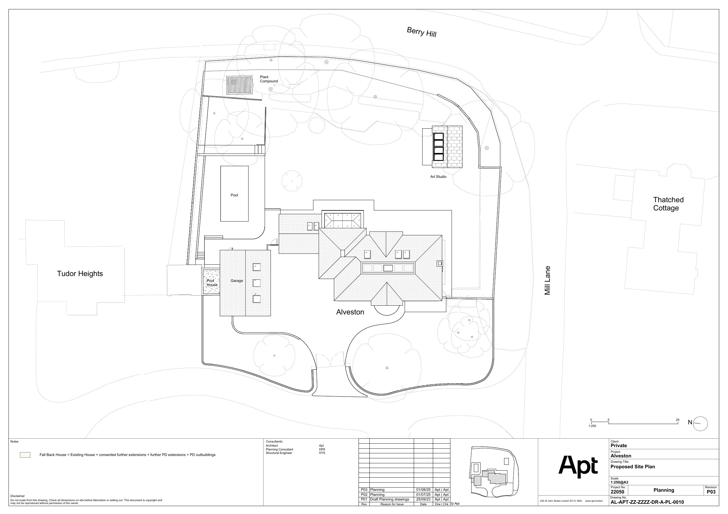
Erection of a replacement two storey dwelling with basement and detached single storey garden studio and the erection of a replacement detached triple garage, involving the demolition of the existing house detached garage/garden buildings

Documents

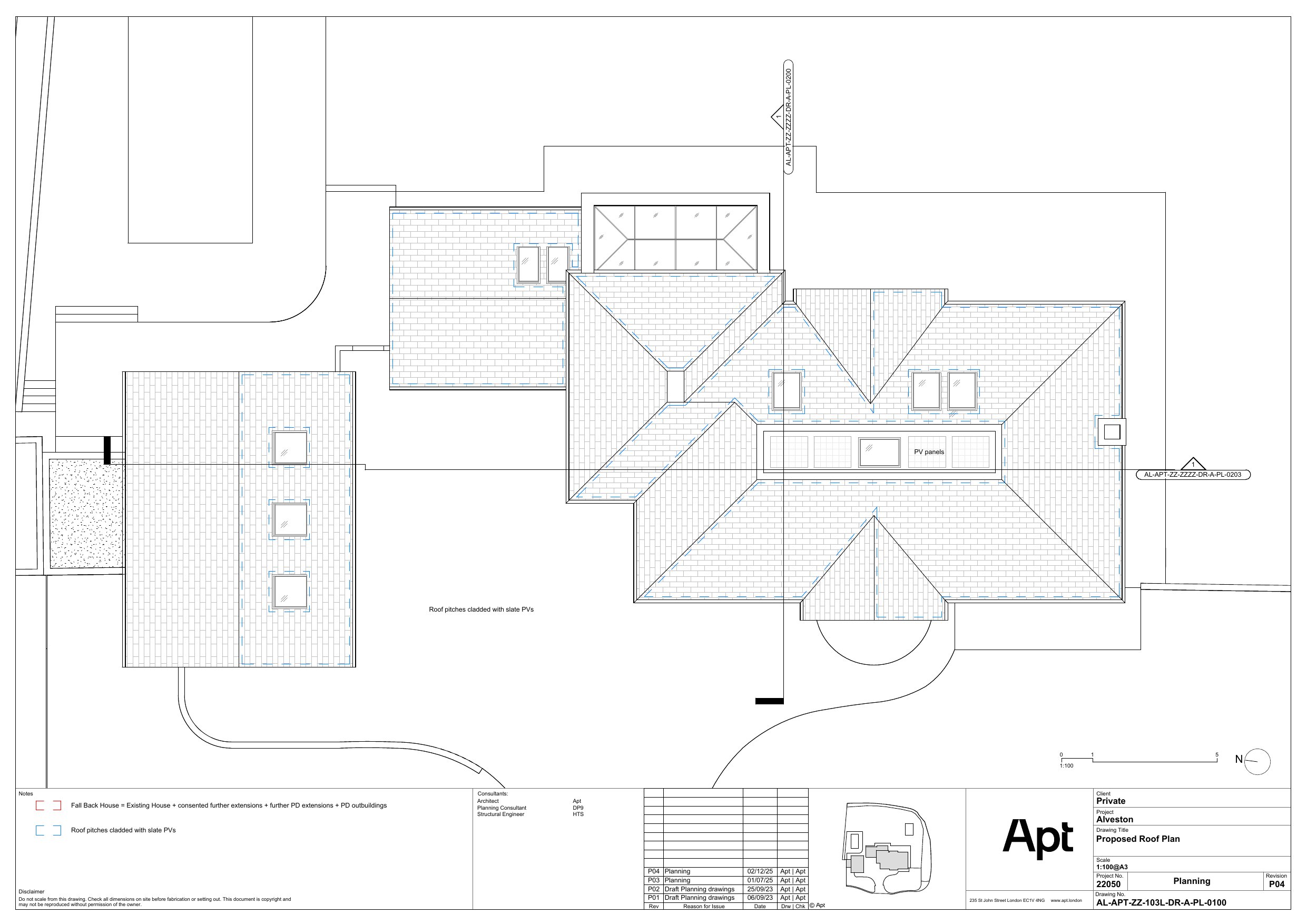
Plan - Elevation
Archived · Original link
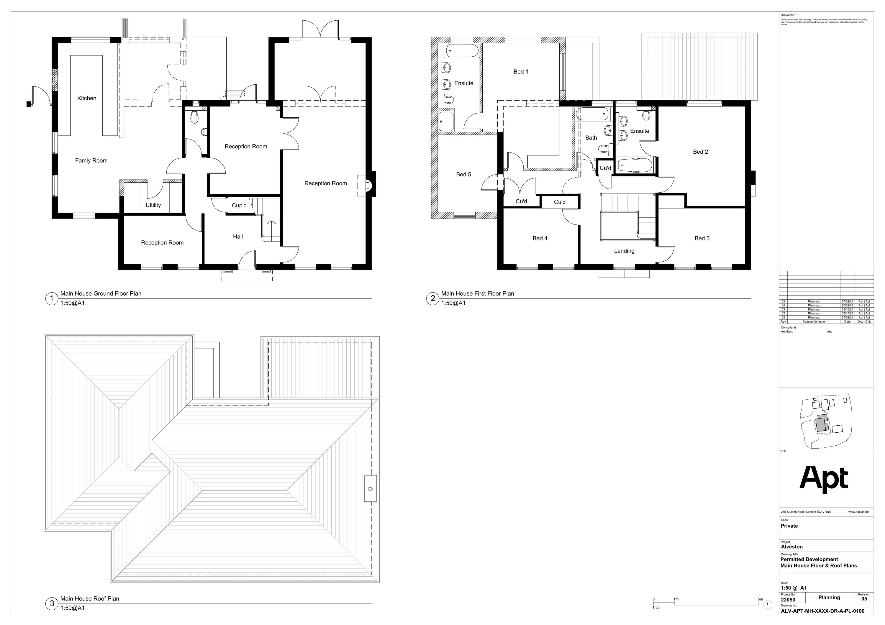
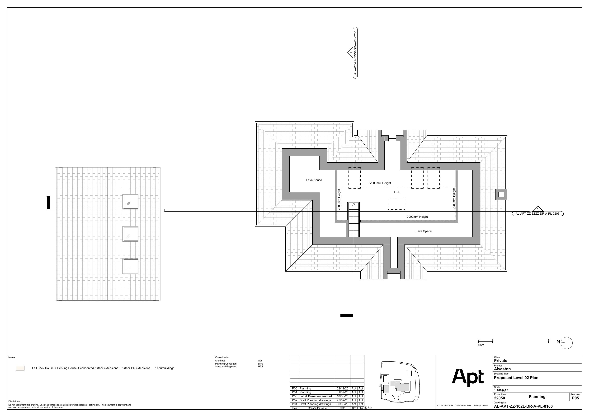
Plan - Floor Plan
Archived · Original link
Plan - Floor Plan
Archived · Original link
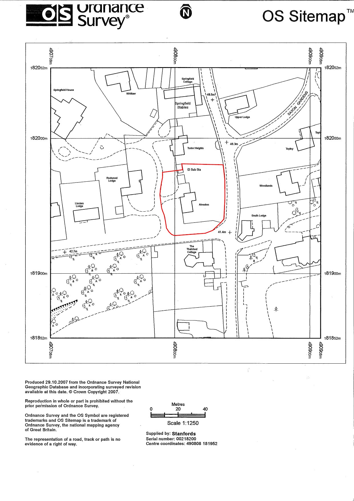
Plan - Location Plan
Archived · Original link
Plan - Elevation
Archived · Original link
Plan - Floor Plan
Archived · Original link
Plan - Floor Plan
Archived · Original link
Plan - Floor Plan
Archived · Original link
Plan - Floor Plan
Archived · Original link
Plan - Elevation
Archived · Original link
Plan - Elevation
Archived · Original link
Plan - Block Plan
Archived · Original link

Have your say

Your comment matters. Councils must consider every representation that raises material planning considerations.

Write a comment