← Buckinghamshire Council

Status

Registered New housing
Received
Not recorded
New homes
25

Full proposal

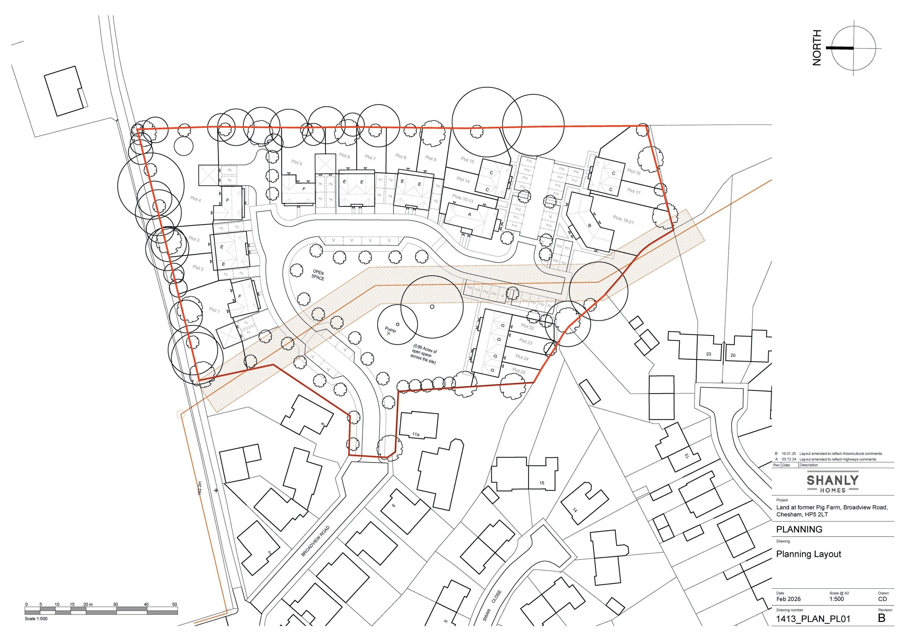
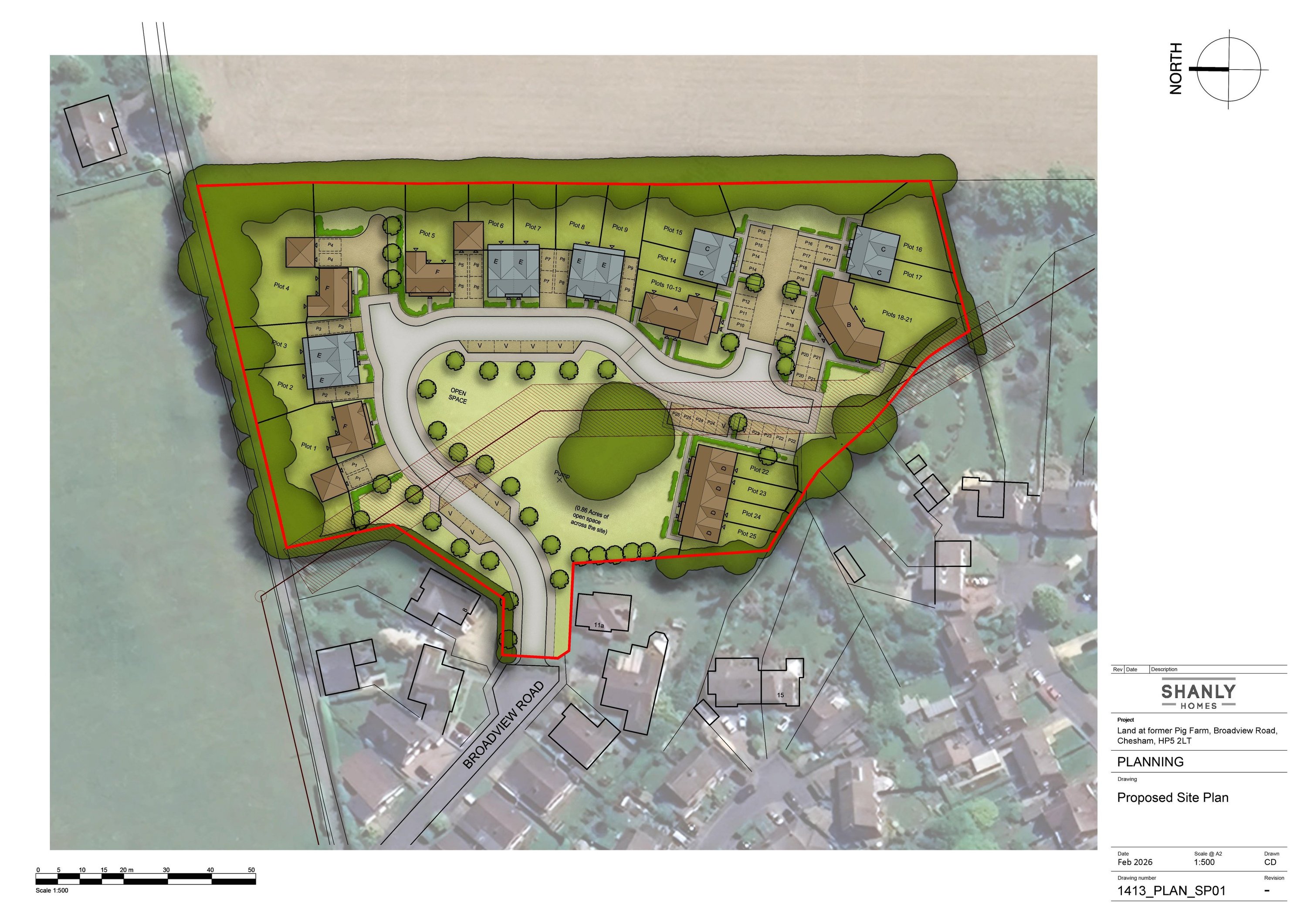
Outline planning application for the erection of 25 residential dwellings (Use Class C3), together with public open space, access, car parking and associated works (matters to be considered at this stage: access, layout and scale)

Documents

Plan - Block Plan
Archived · Original link
Plan - Location Plan
Archived · Original link
Plan - Site Plan
Archived · Original link
Application Form and Certificate
Archived · Original link
ARBORICULTURAL IMPACT ASSESSMENT
Additional Information
Not yet archived · Original link
Additional Information
Archived · Original link
Additional Information
Archived · Original link
Additional Information
Archived · Original link
Additional Information
Archived · Original link
Additional Information
Archived · Original link
LAND AT PLOUGH LANE - GEOTECHNICAL AND GEO-ENVIRONMENTAL PRA - PART 4
Additional Information
Not yet archived · Original link
Additional Information
Archived · Original link
Additional Information
Archived · Original link
Additional Information
Archived · Original link
Additional Information
Archived · Original link
Additional Information
Archived · Original link

Have your say

Your comment matters. Councils must consider every representation that raises material planning considerations.

Write a comment