← Burnley Borough Council

Status

Awaiting decision Change of use
Received
26 Aug 2025
New homes
1

Full proposal

Change of use of agricultural barn (sui generis) to dwelling (Use Class C3) with associated alterations

Documents

APPLICATION FORM REDACTED
Application Form
Not yet archived · Original link
BAT SURVEY REPORT
Report
Not yet archived · Original link
CONSULTATION OTHER SERVICE UNITS
Consultation
Not yet archived · Original link
COVERING LETTER
Correspondence
Not yet archived · Original link
DESIGN AND ACCESS STATEMENT
Other
Not yet archived · Original link
ENVIRONMENTAL HEALTH - RESPONSE
Consultee Comment
Not yet archived · Original link
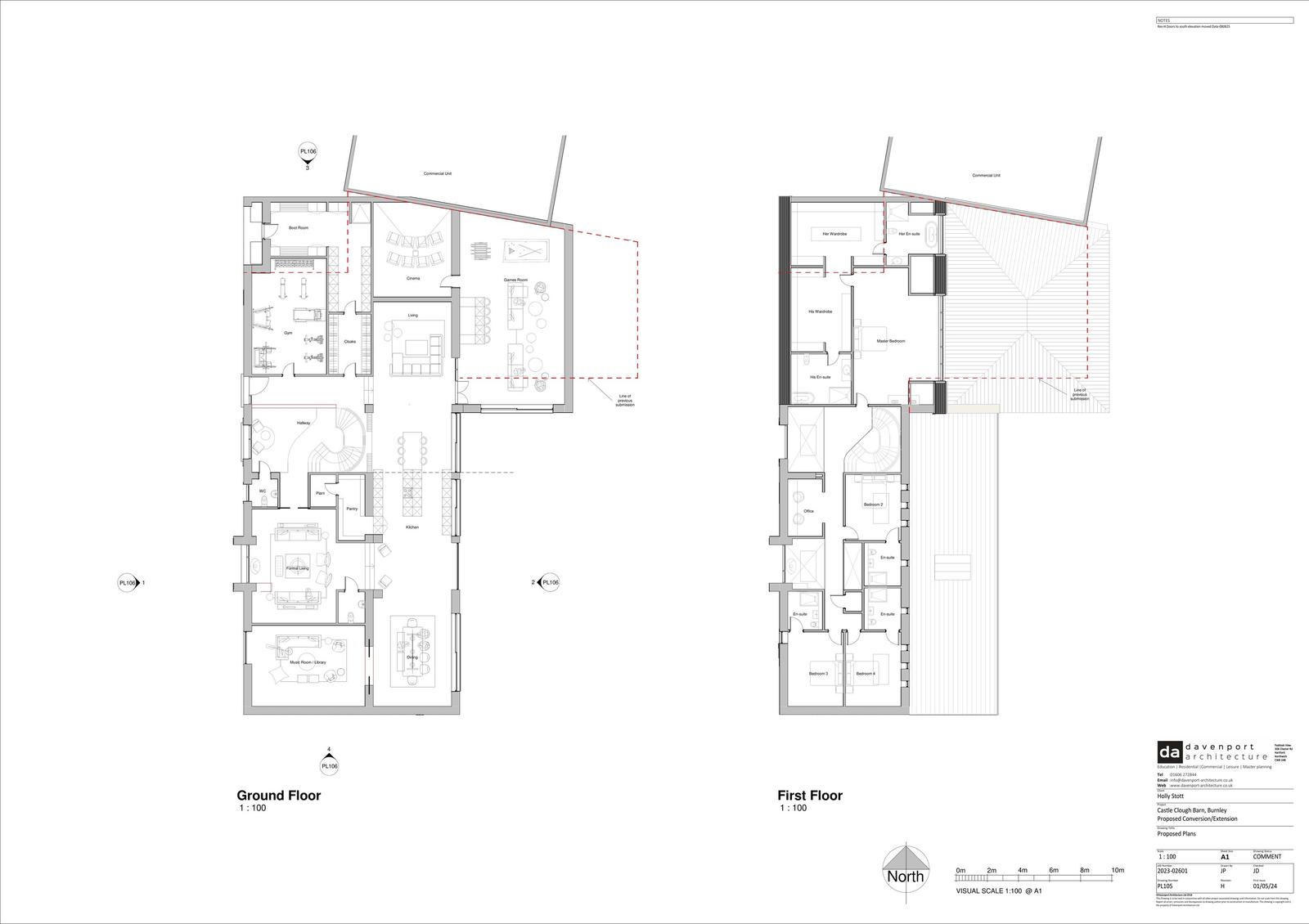
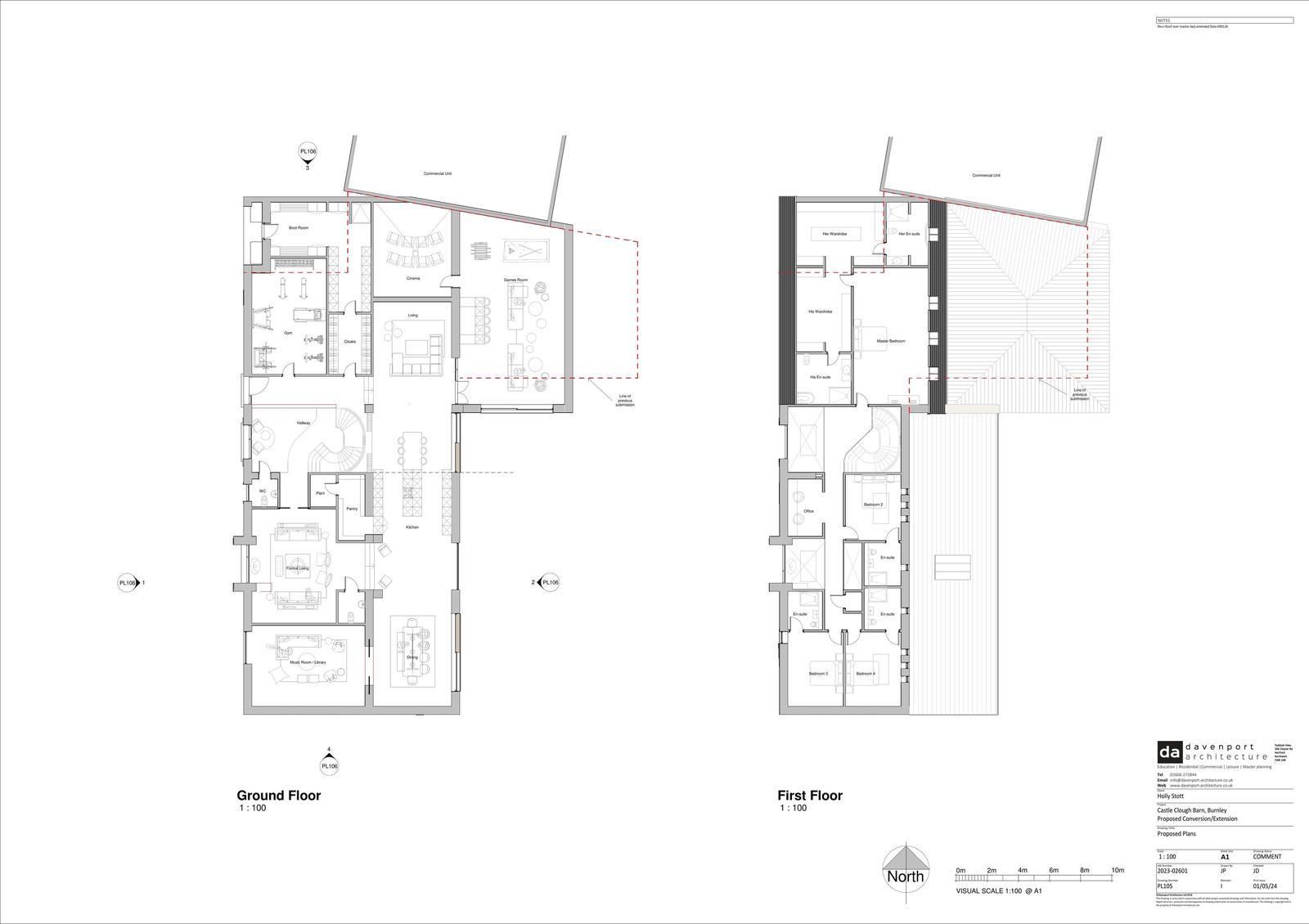
EXISTING PLANS AND ELEVATIONS
Drawing
Not yet archived · Original link
Drawing
Archived · Original link
HIGHWAYS COMMENT REC2209
Consultee Comment
Not yet archived · Original link
NEIGHBOUR CONSULTATION
Consultation
Not yet archived · Original link
PARISH COUNCIL CONSULTATION
Consultation
Not yet archived · Original link
PLANNING STATEMENT
Other
Not yet archived · Original link
PRELIMINARY BAT ROOST ASSESSMENT
Report
Not yet archived · Original link
PROPOSED ELEVATIONS
Amended Drawing
Not yet archived · Original link
PROPOSED ELEVATIONS
Superseded Drawing
Not yet archived · Original link
Superseded Drawing
Archived · Original link
Amended Drawing
Archived · Original link
Drawing
Archived · Original link
PUBLIC RIGHT OF WAY - REPSONSE
Consultee Comment
Not yet archived · Original link
Drawing
Archived · Original link
SITE NOTICE
Other
Not yet archived · Original link
STANDARD ACKNOWLEDGEMENT
Correspondence
Not yet archived · Original link
STANDARD CONSULTATION
Consultation
Not yet archived · Original link
STANDARD CONSULTATION
Consultation
Not yet archived · Original link
STANDARD CONSULTATION
Consultation
Not yet archived · Original link
STRUCTURAL REPORT
Report
Not yet archived · Original link
WARD COUNCILLOR CONSULTATION
Consultation
Not yet archived · Original link

Have your say

Your comment matters. Councils must consider every representation that raises material planning considerations.

Write a comment