← Burnley Borough Council

Status

Unknown House extension
Received
18 Mar 2025
New homes
0

Full proposal

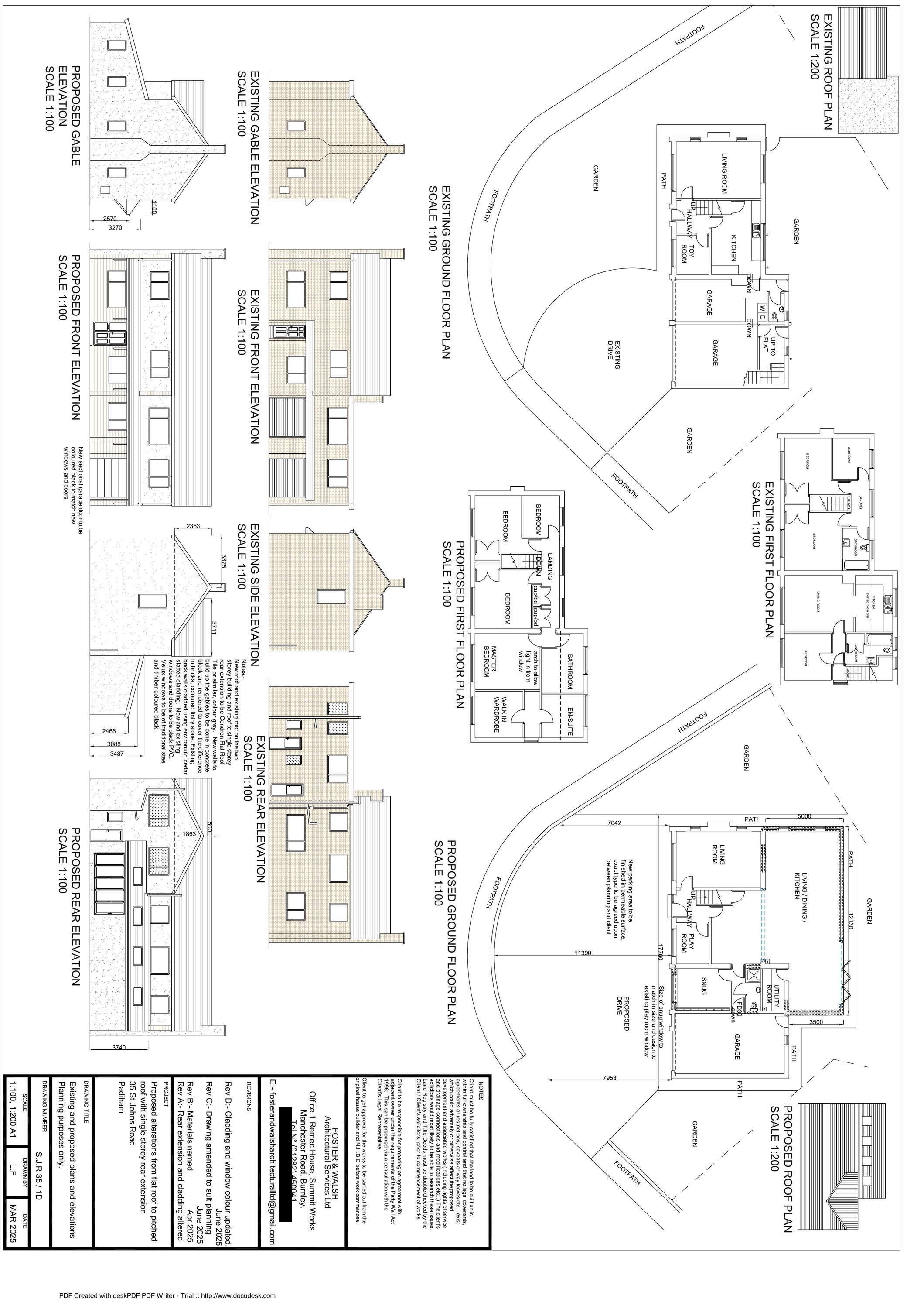
Proposed alteration from flat roof to pitched roof, single storey extension to rear and alterations to parking area.

Documents

APPLICATION FORM
Application Form
Not yet archived · Original link
DECISION NOTICE
Planning Decision
Not yet archived · Original link
Drawing
Archived · Original link
HIGHWAYS RESPONSE
Consultee Comment
Not yet archived · Original link
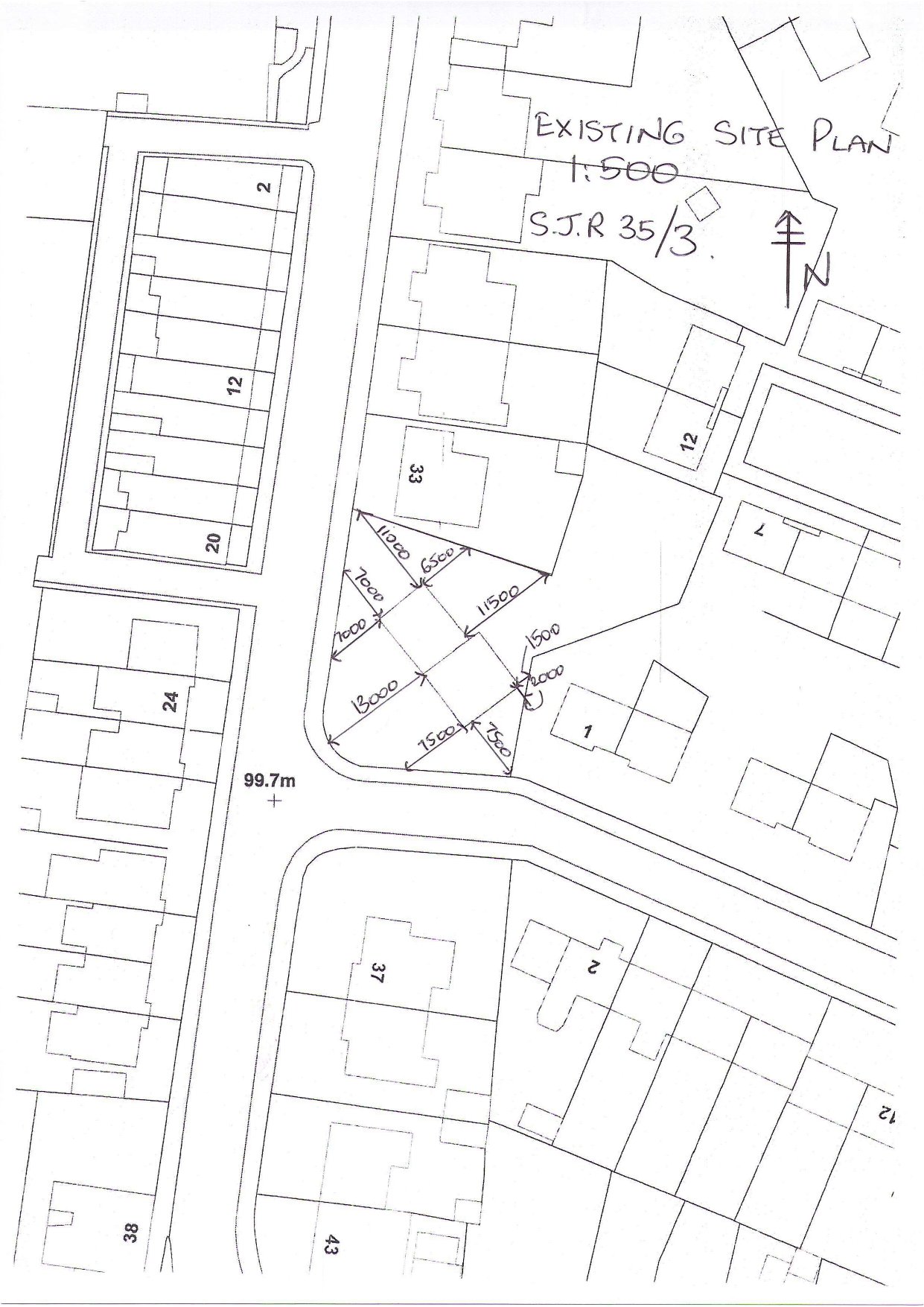
LOCATION PLAN
Drawing
Not yet archived · Original link
NEIGHBOUR CONSULTATION
Consultation
Not yet archived · Original link
OFFICER REPORT
Officer Report
Not yet archived · Original link
PARISH COUNCIL CONSULTATION
Consultation
Not yet archived · Original link
Drawing
Archived · Original link
STANDARD ACKNOWLEDGEMENT
Correspondence
Not yet archived · Original link
STANDARD CONSULTATION
Consultation
Not yet archived · Original link
WARD COUNCILLOR CONSULTATION
Consultation
Not yet archived · Original link

Have your say

Your comment matters. Councils must consider every representation that raises material planning considerations.

Write a comment