← Burnley Borough Council

Status

Unknown House extension
Received
19 May 2025
New homes
0

Full proposal

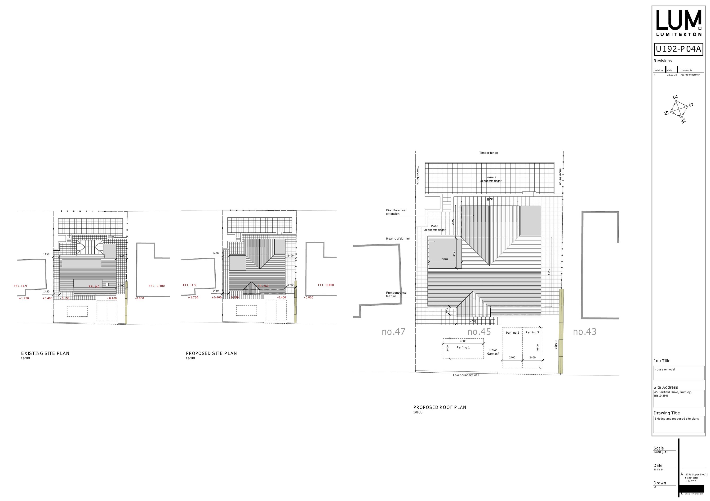
Ridge and eaves lift to extend first floor and create second floor with a rear dormer, two storey rear extension and alterations to front and side elevations.

Documents

Application Form
Archived · Original link
Planning Decision
Archived · Original link
Consultee Comment
Archived · Original link
Drawing
Archived · Original link
Consultation
Archived · Original link
Officer Report
Archived · Original link
Correspondence
Archived · Original link
Consultation
Archived · Original link
Consultation
Archived · Original link

Have your say

Your comment matters. Councils must consider every representation that raises material planning considerations.

Write a comment