← Burnley Borough Council

Status

Unknown House extension
Received
18 Jul 2025
New homes
0

Full proposal

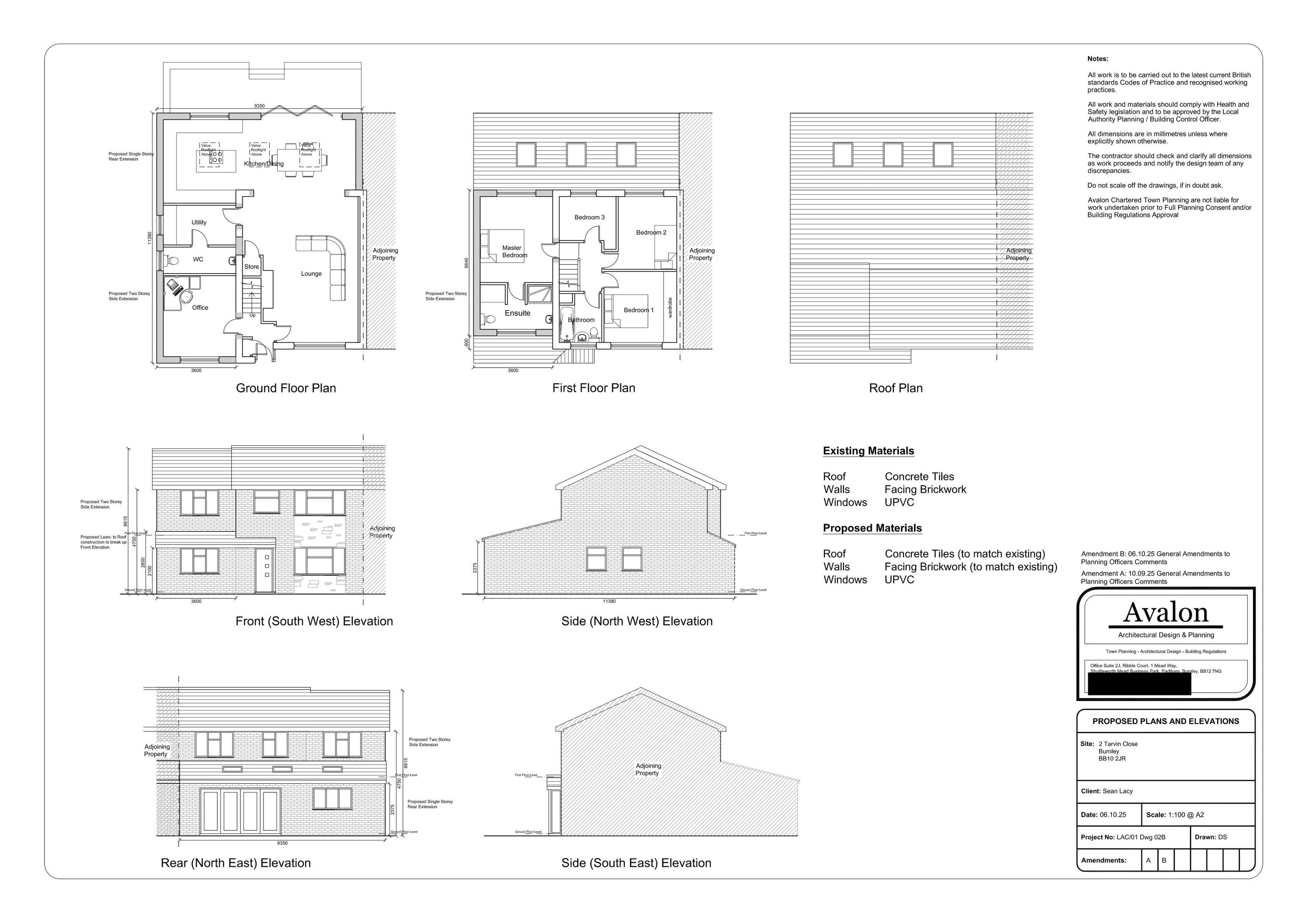
Proposed Two Storey Side Extension and Single Storey Rear Extension to Existing Dwelling

Documents

AMENDMENT : APPLICATION FORM - WITHOUT PERSONAL DATA
Amended Document
Not yet archived · Original link
DECISION NOTICE
Planning Decision
Not yet archived · Original link
Superseded Drawing
Archived · Original link
Amended Drawing
Archived · Original link
EXISTING PLANS AND ELEVATIONS
Drawing
Not yet archived · Original link
HIGHWAYS COMMENTS REC 10.10
Consultee Comment
Not yet archived · Original link
LOCATION PLAN
Drawing
Not yet archived · Original link
NEIGHBOUR CONSULTATION
Consultation
Not yet archived · Original link
OFFICER REPORT
Officer Report
Not yet archived · Original link
Superseded Drawing
Archived · Original link
Amended Drawing
Archived · Original link
Superseded Drawing
Archived · Original link
STANDARD ACKNOWLEDGEMENT
Correspondence
Not yet archived · Original link
WARD COUNCILLOR CONSULTATION
Consultation
Not yet archived · Original link

Have your say

Your comment matters. Councils must consider every representation that raises material planning considerations.

Write a comment