← Burnley Borough Council

Status

Awaiting decision New housing
Received
07 May 2025
New homes
28

Summary

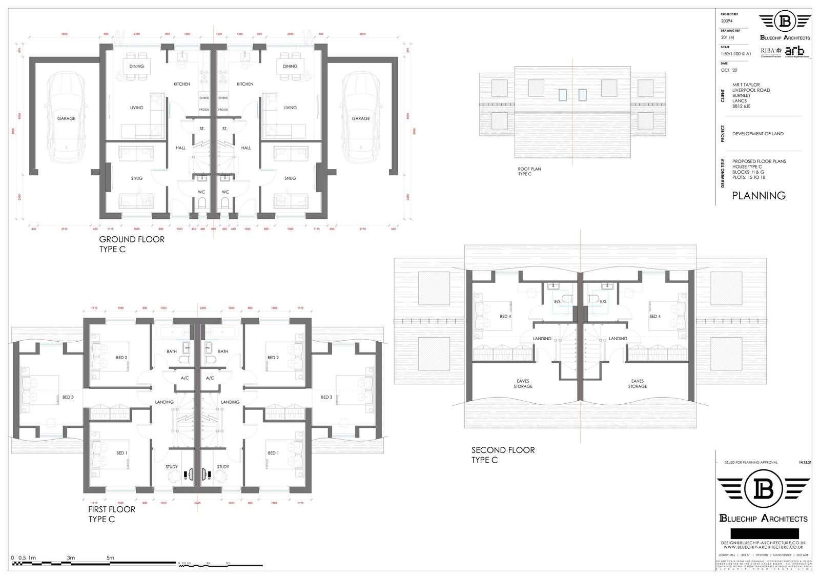
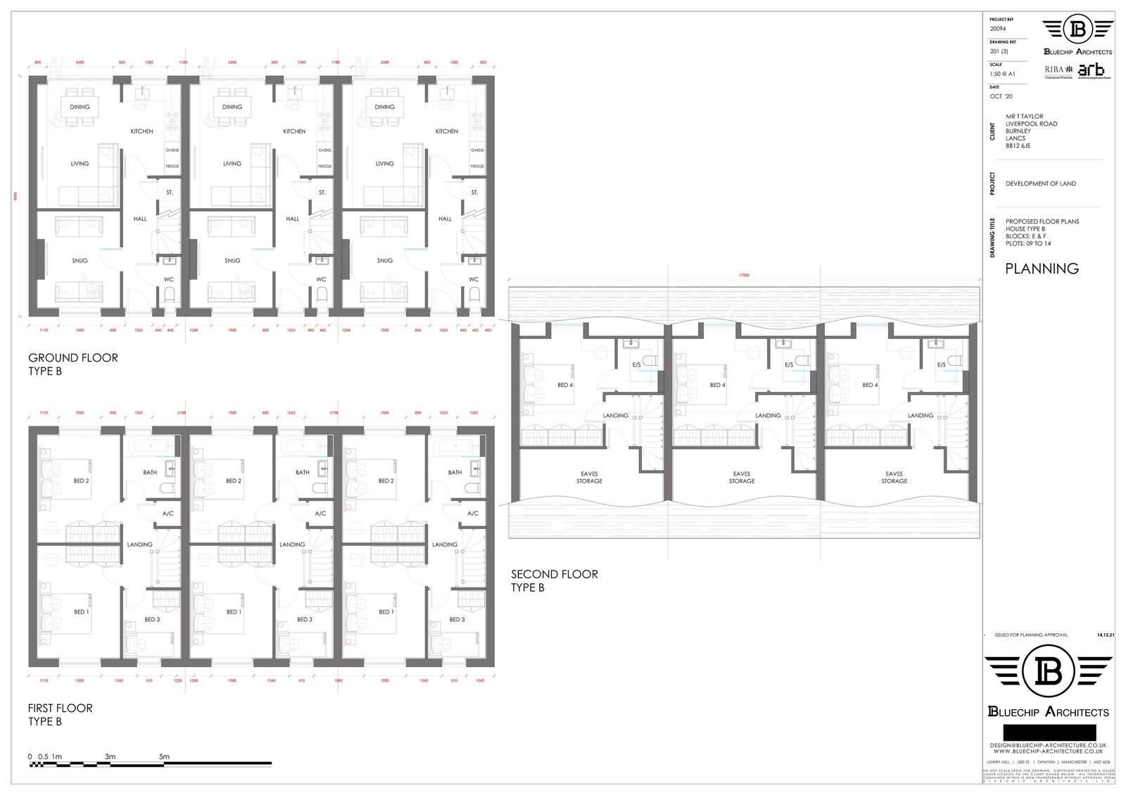
Outline application for 28 dwellings (18 houses and 10 duplex apartments), all matters reserved.

Full proposal

Outline Planning Application for 18no dwellings, 10no duplex apartments and associated works (all matters reserved).

Documents

Consultee Comment
Archived · Original link
Application Form
Archived · Original link
Report
Archived · Original link
Other
Archived · Original link
Consultee Comment
Archived · Original link
Consultee Comment
Archived · Original link
Consultee Comment
Archived · Original link
Consultee Comment
Archived · Original link
Consultee Comment
Archived · Original link
Consultee Comment
Archived · Original link
OS Extract
Archived · Original link
Drawing
Archived · Original link
Consultation
Archived · Original link
Consultee Comment
Archived · Original link
Other
Archived · Original link
Drawing
Archived · Original link
Correspondence
Archived · Original link
Consultation
Archived · Original link
Consultation
Archived · Original link
Consultation
Archived · Original link
Consultation
Archived · Original link
Consultation
Archived · Original link
Report
Archived · Original link
Consultee Comment
Archived · Original link
Consultation
Archived · Original link

Have your say

Your comment matters. Councils must consider every representation that raises material planning considerations.

Write a comment