← Caerphilly County Borough Council

Status

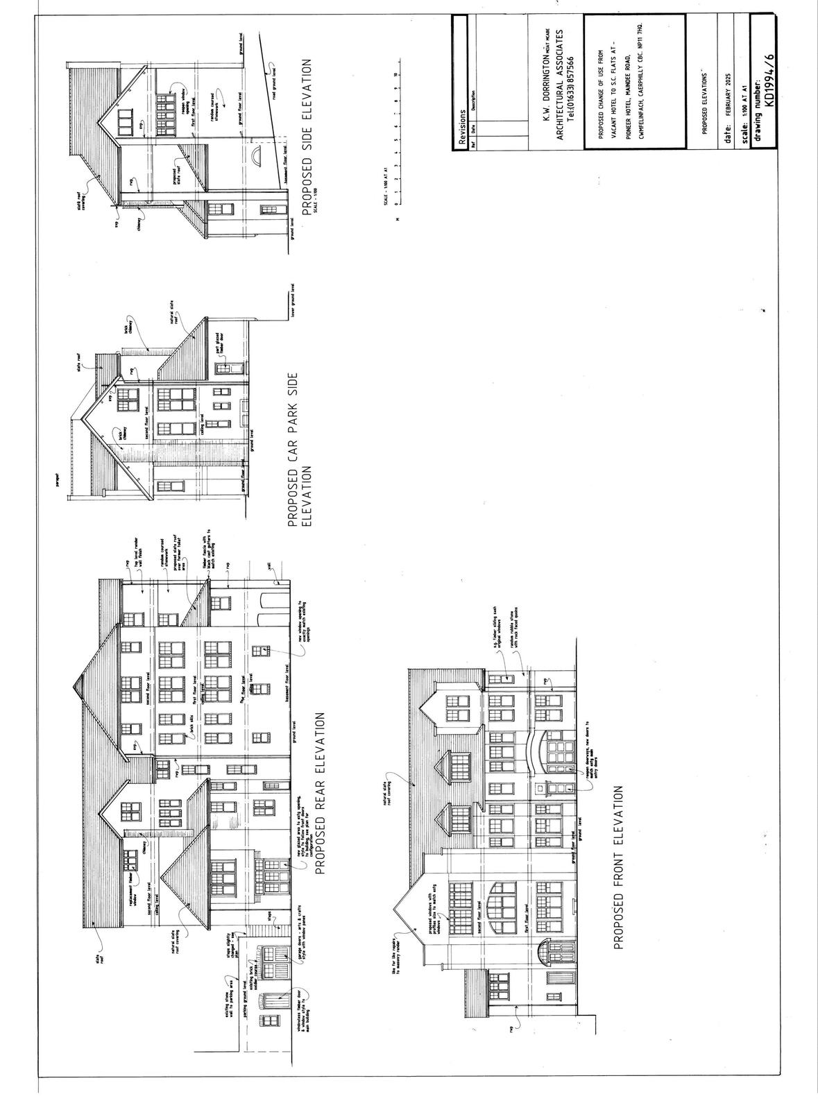
Awaiting decision Change of use
Received
27 Mar 2025
New homes
16

Full proposal

Change the use of vacant hotel into 16 No. self-contained flats with associated works

Documents

AMENDED ACCESS STATEMENT
Report
Not yet archived · Original link
AMENDED DESIGN STATEMENT
Report
Not yet archived · Original link
AMENDED EXISTING GROUND AND BASEMENT FLOOR PLANS
Drawing
Not yet archived · Original link
AMENDED HERITAGE STATEMENT
Report
Not yet archived · Original link
AMENDED PROPOSED 1ST AND 2ND FLOOR PLANS
Drawing
Not yet archived · Original link
AMENDED PROPOSED GROUND AND BASEMENT FLOOR PLANS
Drawing
Not yet archived · Original link
APPLICATION FORM
Application Form
Not yet archived · Original link
BAT AND ROOST REPORT
Report
Not yet archived · Original link
CADW MAP
OS Extract
Not yet archived · Original link
GREEN INFRASTRUCTURE STATEMENT:
Report
Not yet archived · Original link
HENEB COMMENTS
Consultee Comment
Not yet archived · Original link
HERITAGE OFFICER COMMENTS
Consultee Comment
Not yet archived · Original link
OBSERVER 18.09.2025
Press Notice
Not yet archived · Original link
OS Extract
Archived · Original link

Have your say

Your comment matters. Councils must consider every representation that raises material planning considerations.

Write a comment