← Caerphilly County Borough Council

Status

Awaiting decision Industrial
Received
02 May 2025
New homes
0

Full proposal

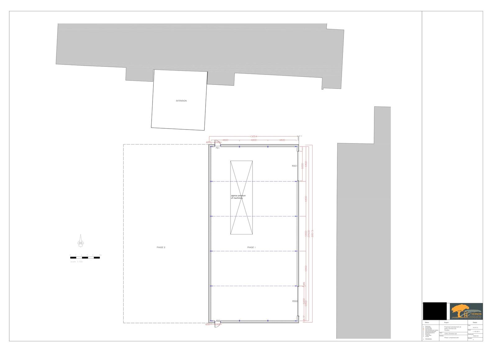
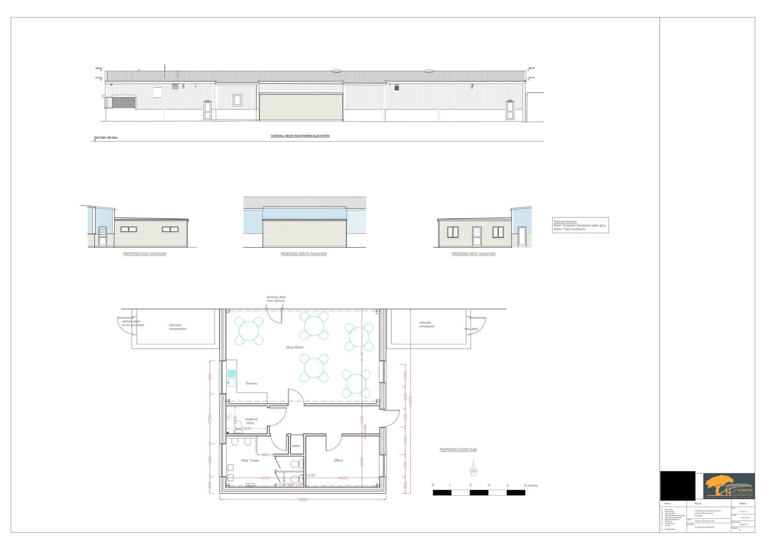
Erect single storey extension to existing factory and erection of 2 new factory buildings in 2 phases

Documents

Application Form
Archived · Original link
General Comment
Archived · Original link
Report
Archived · Original link
Consultee Comment
Archived · Original link
OS Extract
Archived · Original link
HERPETOFAUNA SURVEY REPORT
Report
Not yet archived · Original link
Consultee Comment
Archived · Original link
Drawing
Archived · Original link
Drawing
Archived · Original link
Drawing
Archived · Original link
Drawing
Archived · Original link
Drawing
Archived · Original link
Drawing
Archived · Original link
Consultee Comment
Archived · Original link
OS Extract
Archived · Original link

Have your say

Your comment matters. Councils must consider every representation that raises material planning considerations.

Write a comment