← Caerphilly County Borough Council

Status

Awaiting decision New housing
Received
29 May 2025
New homes
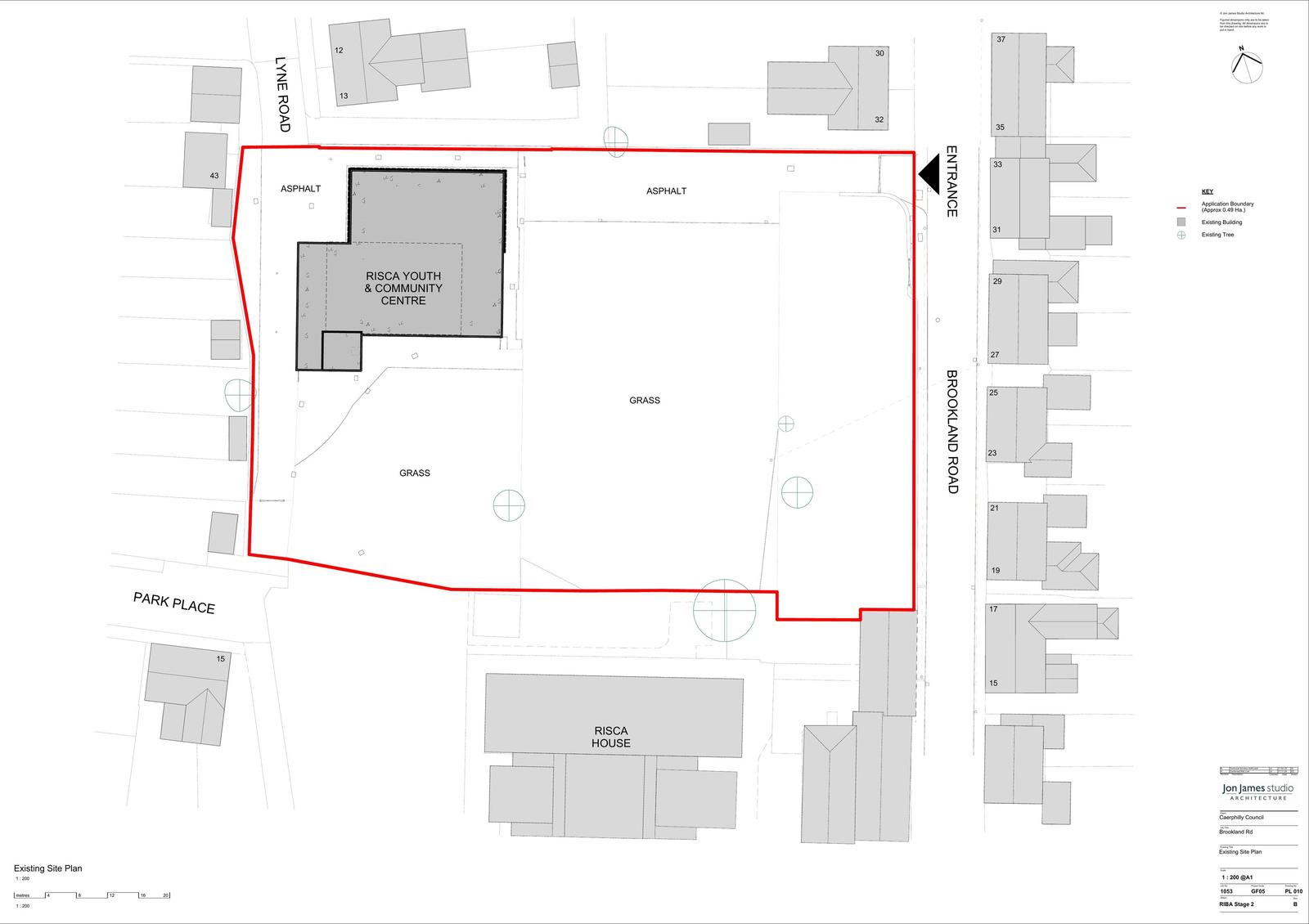
23

Full proposal

Erect residential development of up to 23 new homes, including access and highway infrastructure, landscape and drainage

Documents

AMENDED ECOLOGICAL IMPACT ASSESSMENT REPORT
Report
Not yet archived · Original link
APPLICATION FORM
Application Form
Not yet archived · Original link
ARBORICULTURAL IMPACT ASSESSMENT
Drawing
Not yet archived · Original link
ARBORICULTURAL IMPACT ASSESSMENT
Report
Not yet archived · Original link
CAERPHILLY OBSERVER PRESS ADVERT 26.06.25
Press Notice
Not yet archived · Original link
COUNCILLOR OWEN COMMENTS
General Comment
Not yet archived · Original link
DAS
Report
Not yet archived · Original link
DRAINAGE STRATEGY
Drawing
Not yet archived · Original link
DRAINAGE STRATEGY REPORT
Report
Not yet archived · Original link
DWR CYMRU COMMENTS
Consultee Comment
Not yet archived · Original link
DWR CYMRU COMMENTS WATER EASEMENT
Consultee Comment
Not yet archived · Original link
DWR CYMRU COMMENTS WATER PLAN
Consultee Comment
Not yet archived · Original link
ECOLOGICAL IMPACT ASSESSMENT REPORT
Report
Not yet archived · Original link
ECOLOGIST COMMENTS
Consultee Comment
Not yet archived · Original link
ECOLOGIST COMMENTS
Consultee Comment
Not yet archived · Original link
ESPONSE TO NRW COMMENTS
Report
Not yet archived · Original link
EXISTING CATCHMENT PLAN AND FLOW PATHS
Drawing
Not yet archived · Original link
Drawing
Archived · Original link
FCA LEVELS PLAN
Drawing
Not yet archived · Original link
FCA POS FLOOD EXTENTS AND CUT-FILL ASSESSMENT
Drawing
Not yet archived · Original link
FCA PROPOSED FLOOD ROUTES PLAN
Drawing
Not yet archived · Original link
FCA SITE CROSS SECTIONS
Drawing
Not yet archived · Original link
FLOOD CONSEQUENCE ASSESSMENT
Report
Not yet archived · Original link
FLOOD CONSEQUENCE ASSESSMENT & DRAINAGE STATEMENT
Report
Not yet archived · Original link
FLOOD RISK FROM RESERVOIRS
Drawing
Not yet archived · Original link
FLOOD RISK FROM RIVERS
Drawing
Not yet archived · Original link
FLOOD RISK FROM SEA
Drawing
Not yet archived · Original link
FLOOD RISK FROM SMALL WATERCOURSES AND SURFACE WATER
Drawing
Not yet archived · Original link
FLOOD RISK MAP - ALL
Drawing
Not yet archived · Original link
HARDWORKS GA
Drawing
Not yet archived · Original link
ILLUSTRATIVE LANDSCAPE MASTERPLAN
Drawing
Not yet archived · Original link
ILLUSTRATIVE PERSPECTIVE VIEW 1
Drawing
Not yet archived · Original link
ILLUSTRATIVE PERSPECTIVE VIEW 2
Drawing
Not yet archived · Original link
INFO DRAINAGE ESCAPED WATER PLAN
Drawing
Not yet archived · Original link
INTEGRATED CATCHMENT MODELLING REPORT
Report
Not yet archived · Original link
LANDSCAPE COMMENTS
Consultee Comment
Not yet archived · Original link
LOCATION PLAN
OS Extract
Not yet archived · Original link
MAIN RIVER AND FLOOD DEFENCE LOCATION PLAN
Drawing
Not yet archived · Original link
NATURAL RESOURCES WALES COMMENTS
Consultee Comment
Not yet archived · Original link
NRW COMMENTS
Consultee Comment
Not yet archived · Original link
NRW COMMENTS
Consultee Comment
Not yet archived · Original link
NRW CONSULTEE COMMENTS
Consultee Comment
Not yet archived · Original link
NRW RESPONSE
Consultee Comment
Not yet archived · Original link
OUTLINE GREEN INFRASTRUCTURE STATEMENT
Report
Not yet archived · Original link
PARAMETERS PLAN
Drawing
Not yet archived · Original link
PRE-APPLICATION CONSULTATION REPORT (PAC)
Report
Not yet archived · Original link
PROPOSED FCA LOCATION PLAN
Drawing
Not yet archived · Original link
RISCA DESK STUDY REPORT PART 1 OF 2
Report
Not yet archived · Original link
SITE INVESTIGATION REPORT
Report
Not yet archived · Original link
SITE INVESTIGATION REPORT
Report
Not yet archived · Original link
SOFTWORKS AND PLANTING GA
Drawing
Not yet archived · Original link
STRATEGIC PLANNING RESPONSE
Correspondence
Not yet archived · Original link
TOPOGRAPHICAL SURVEY-001
Drawing
Not yet archived · Original link
TRANSPORT STATEMENT
Report
Not yet archived · Original link
TREE CONSTRAINTS PLAN
Drawing
Not yet archived · Original link
TREE SURVEY
Report
Not yet archived · Original link
WASTE STRATEGY AND OPERATIONS MANAGER COMMENTS
Consultee Comment
Not yet archived · Original link
WATER LEVEL MONITORING LETTER REPORT
Report
Not yet archived · Original link

Have your say

Your comment matters. Councils must consider every representation that raises material planning considerations.

Write a comment