← Caerphilly County Borough Council

Status

Awaiting decision Listed building
Received
05 Dec 2025
New homes
193

Full proposal

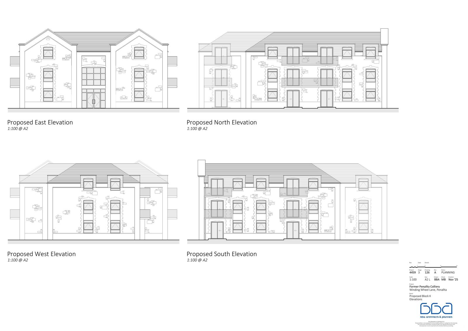
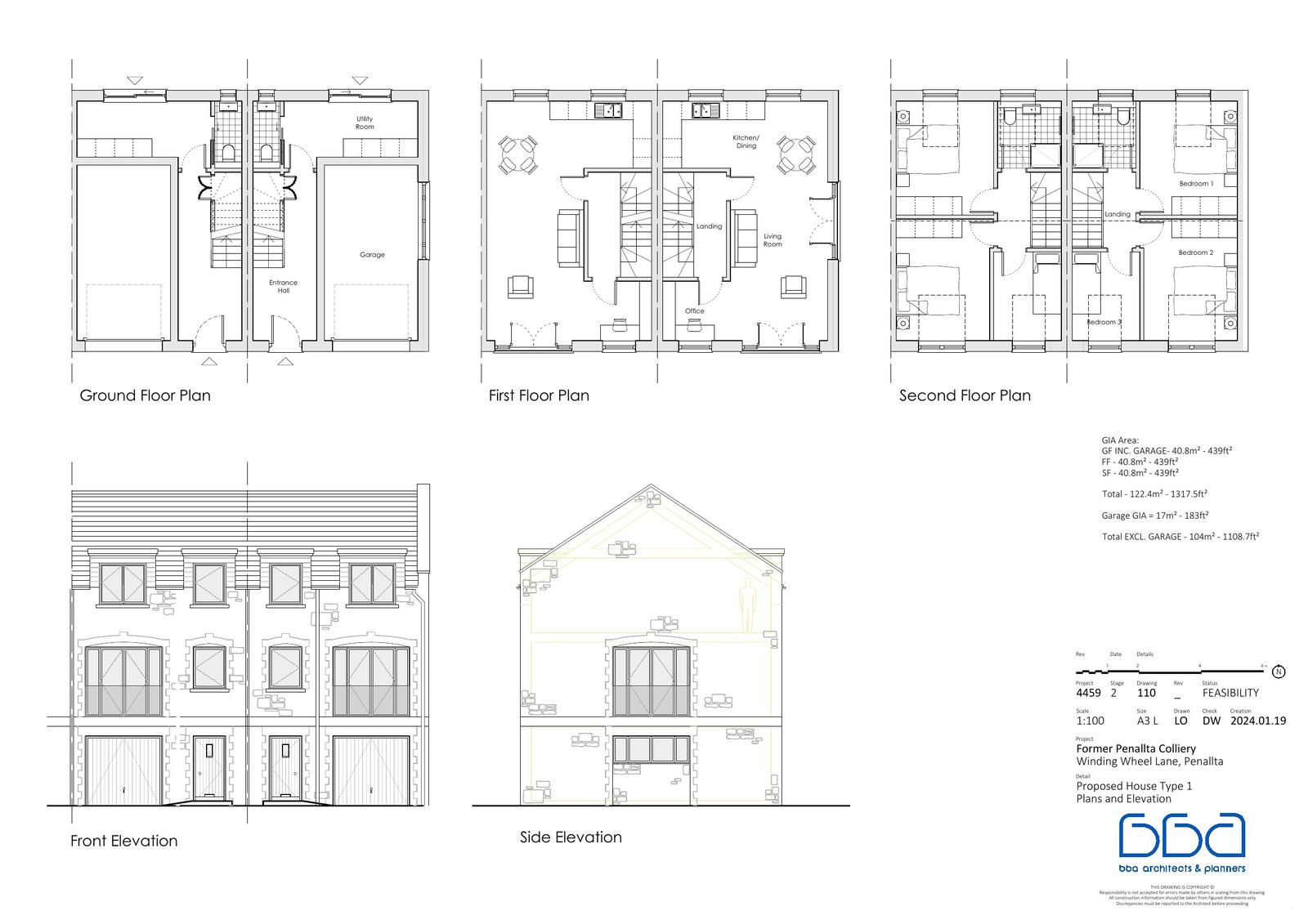
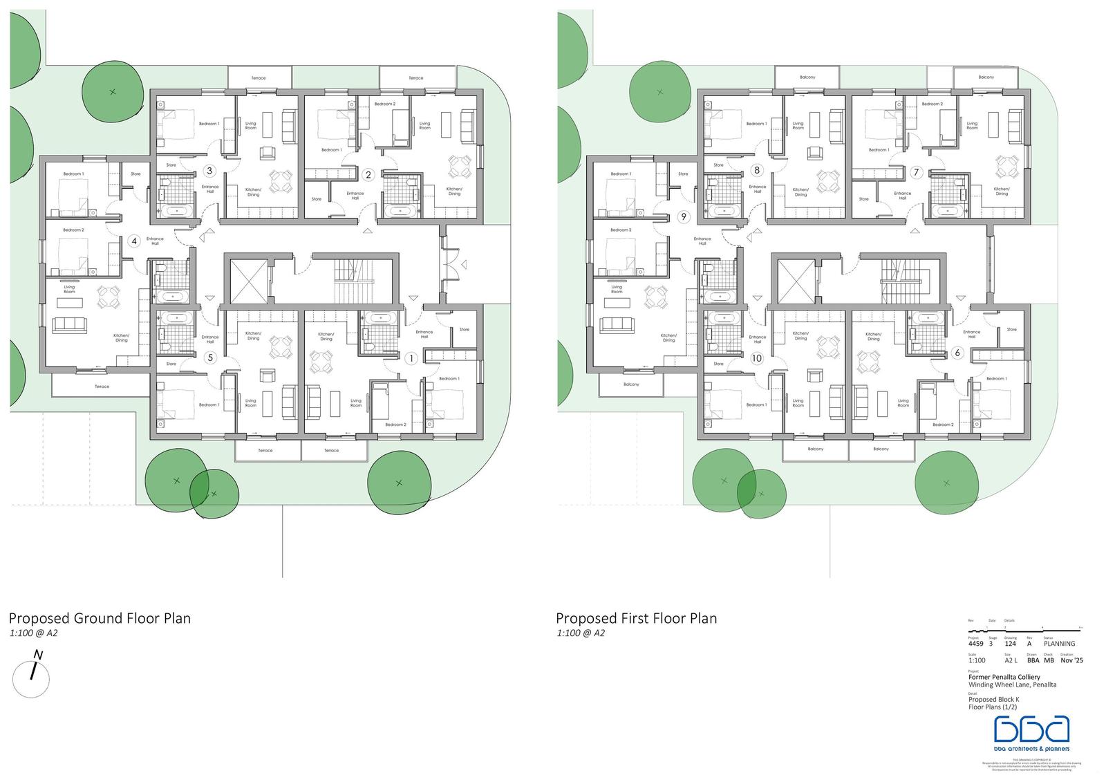
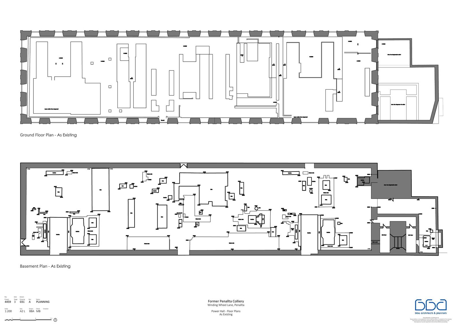
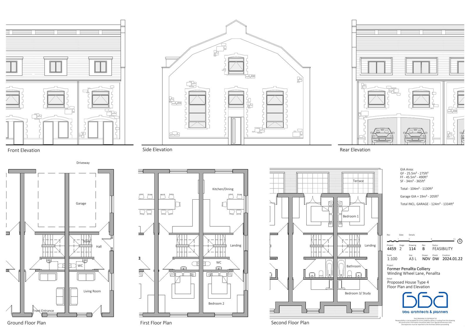
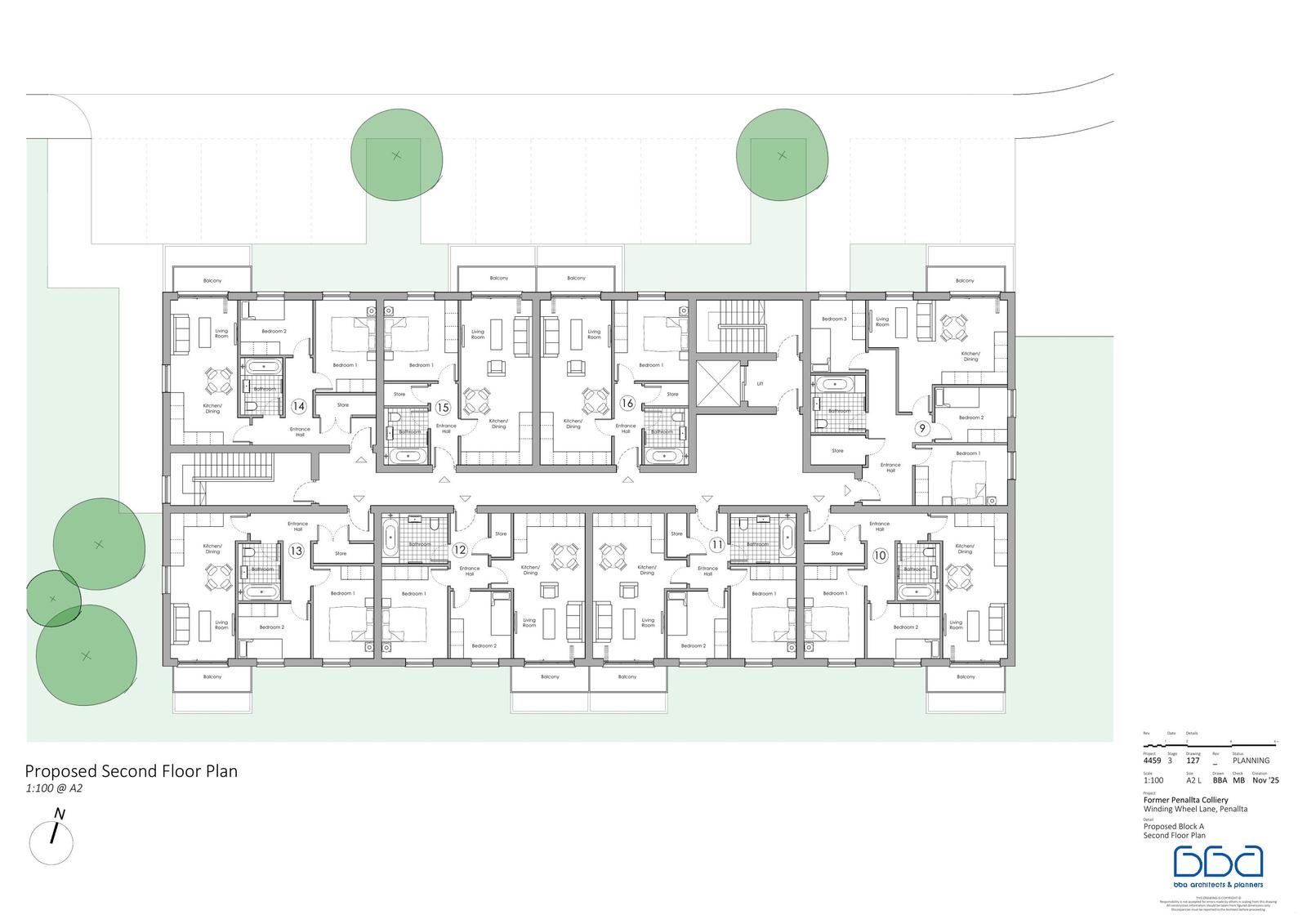
Construct 60 No. new dwellings in the existing building, 133 No. new dwellings elsewhere on the site and 400m2 of commercial area under the existing winding wheels

Documents

Drawing
Archived · Original link
Drawing
Archived · Original link
Drawing
Archived · Original link

Have your say

Your comment matters. Councils must consider every representation that raises material planning considerations.

Write a comment