← Caerphilly County Borough Council
26/0049/HH
Caerphilly County Borough Council
Status
Awaiting decision
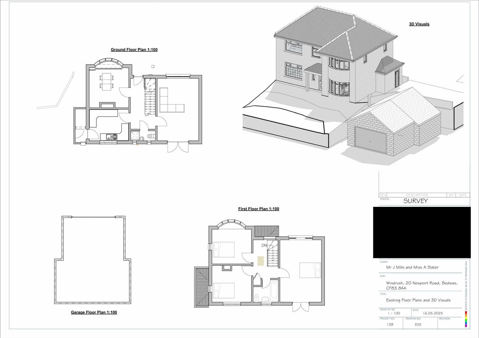
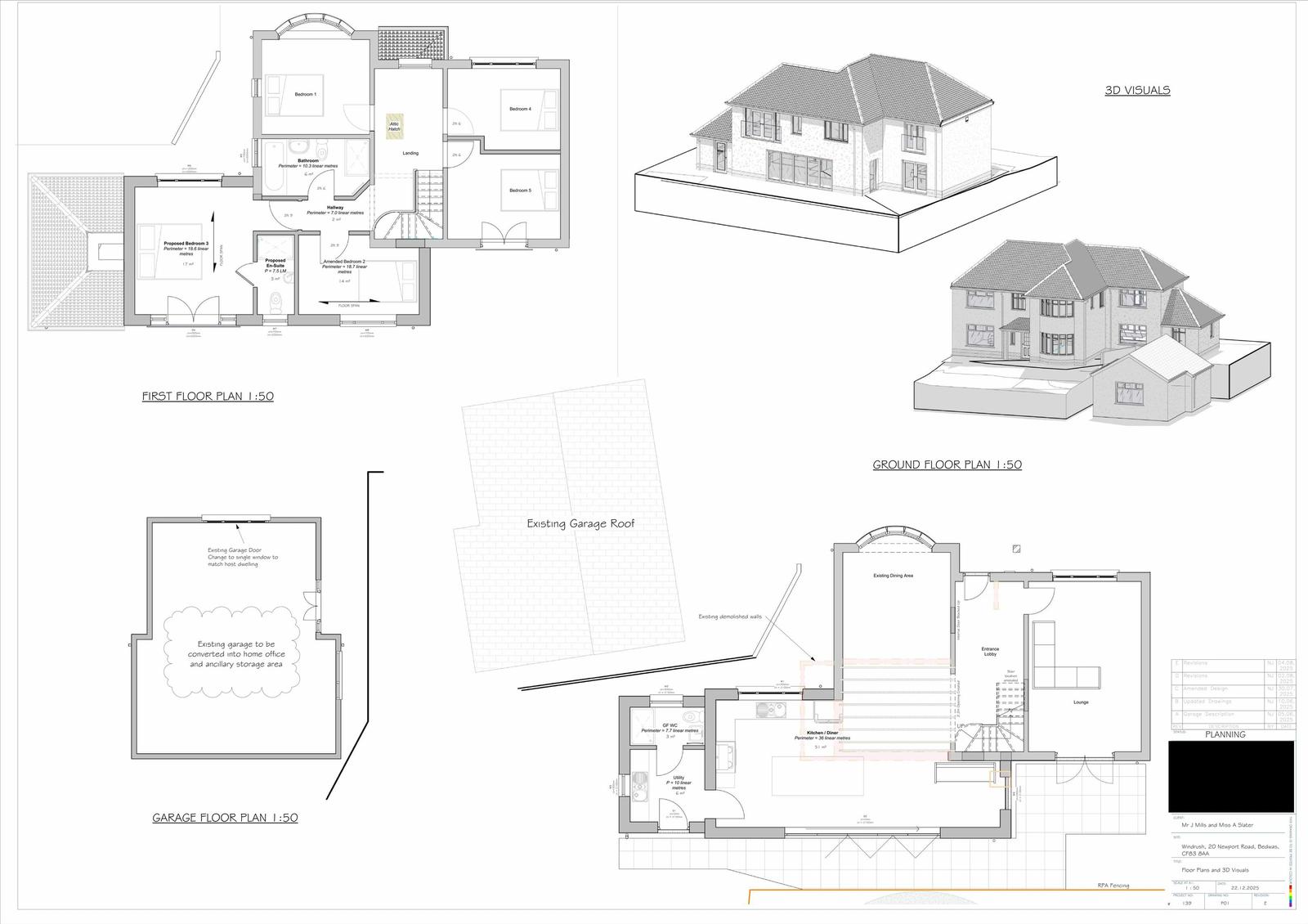
House extension
Received
21 Jan 2026
New homes
0
Full proposal
Erect two storey side/rear extension and conversion of garage to home office
Documents
Have your say
Your comment matters. Councils must consider every representation that raises material planning considerations.