← Caerphilly County Borough Council

Status

Awaiting decision House extension
Received
06 Feb 2026
New homes
0

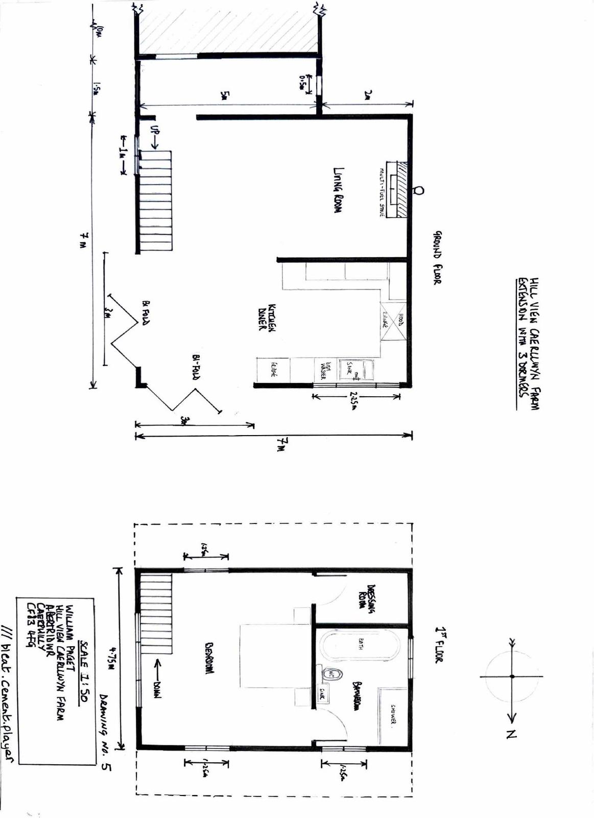
Full proposal

Erect single storey extension to existing building with a dormer roof to incorporate bedroom with en-suite bathroom, ground floor to include kitchen/diner and living space, extension exterior finish to be part render and part Millwood timber effect vertical cladding to blend to existing dwelling

Documents

Application Form
Archived · Original link
Drawing
Archived · Original link
Drawing
Archived · Original link
Drawing
Archived · Original link
OS Extract
Archived · Original link
Drawing
Archived · Original link
Drawing
Archived · Original link

Have your say

Your comment matters. Councils must consider every representation that raises material planning considerations.

Write a comment