← Caerphilly County Borough Council

Status

Awaiting decision Change of use
Received
Last month
New homes
0

Full proposal

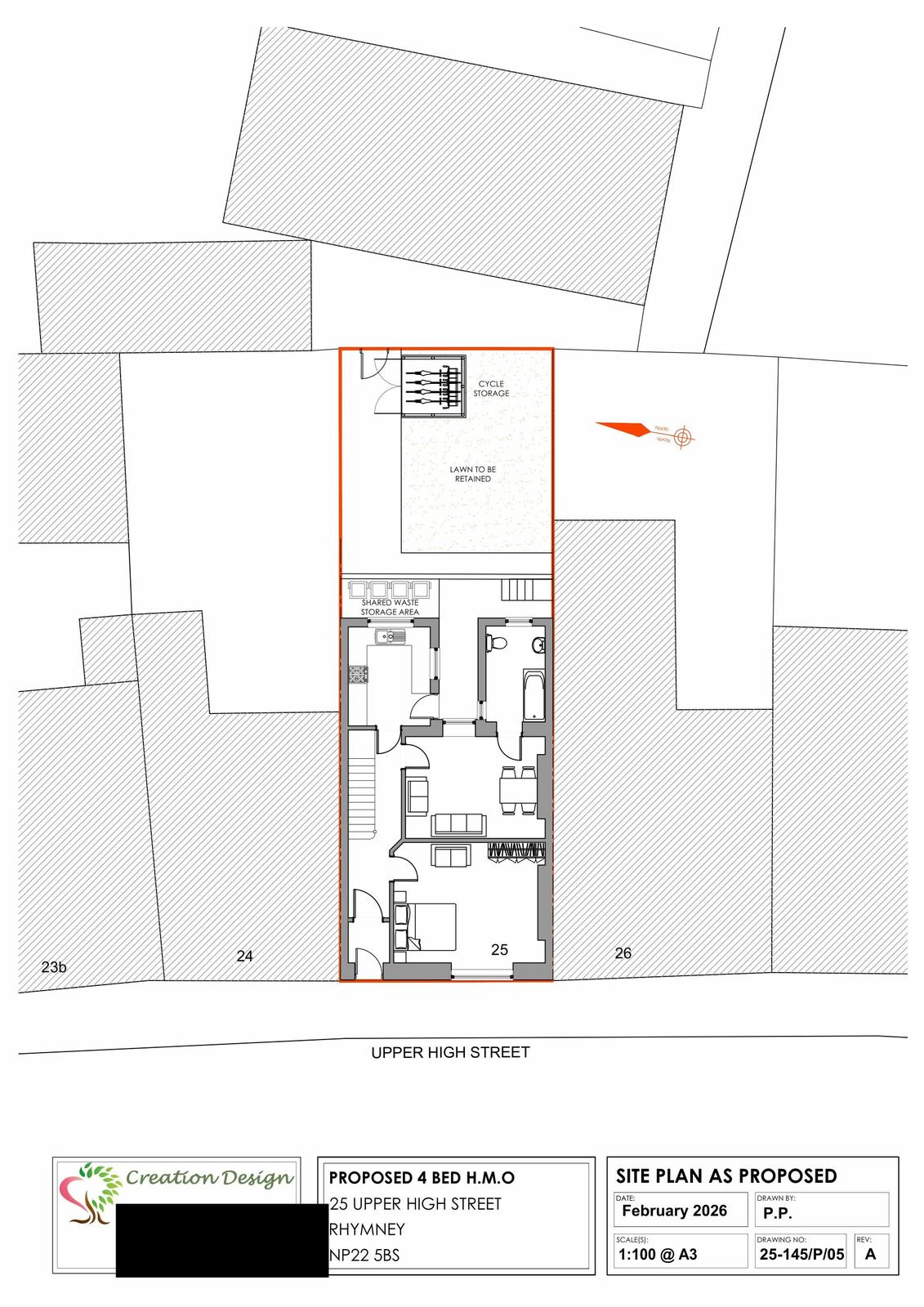
Change the use from dwellinghouse (Class C3) to 4 Bed HMO (Class C4)

Documents

Application Form
Archived · Original link
Drawing
Archived · Original link
DESIGN AND ACCESS STATEMENT
Report
Not yet archived · Original link
Drawing
Archived · Original link
Drawing
Archived · Original link
OS Extract
Archived · Original link
Drawing
Archived · Original link
Drawing
Archived · Original link
Drawing
Archived · Original link
Site Notice
Archived · Original link

Have your say

Your comment matters. Councils must consider every representation that raises material planning considerations.

Write a comment