← Caerphilly County Borough Council
26/0119/COU
Caerphilly County Borough Council
Status
Awaiting decision
Change of use
Received
Last month
New homes
12
Full proposal
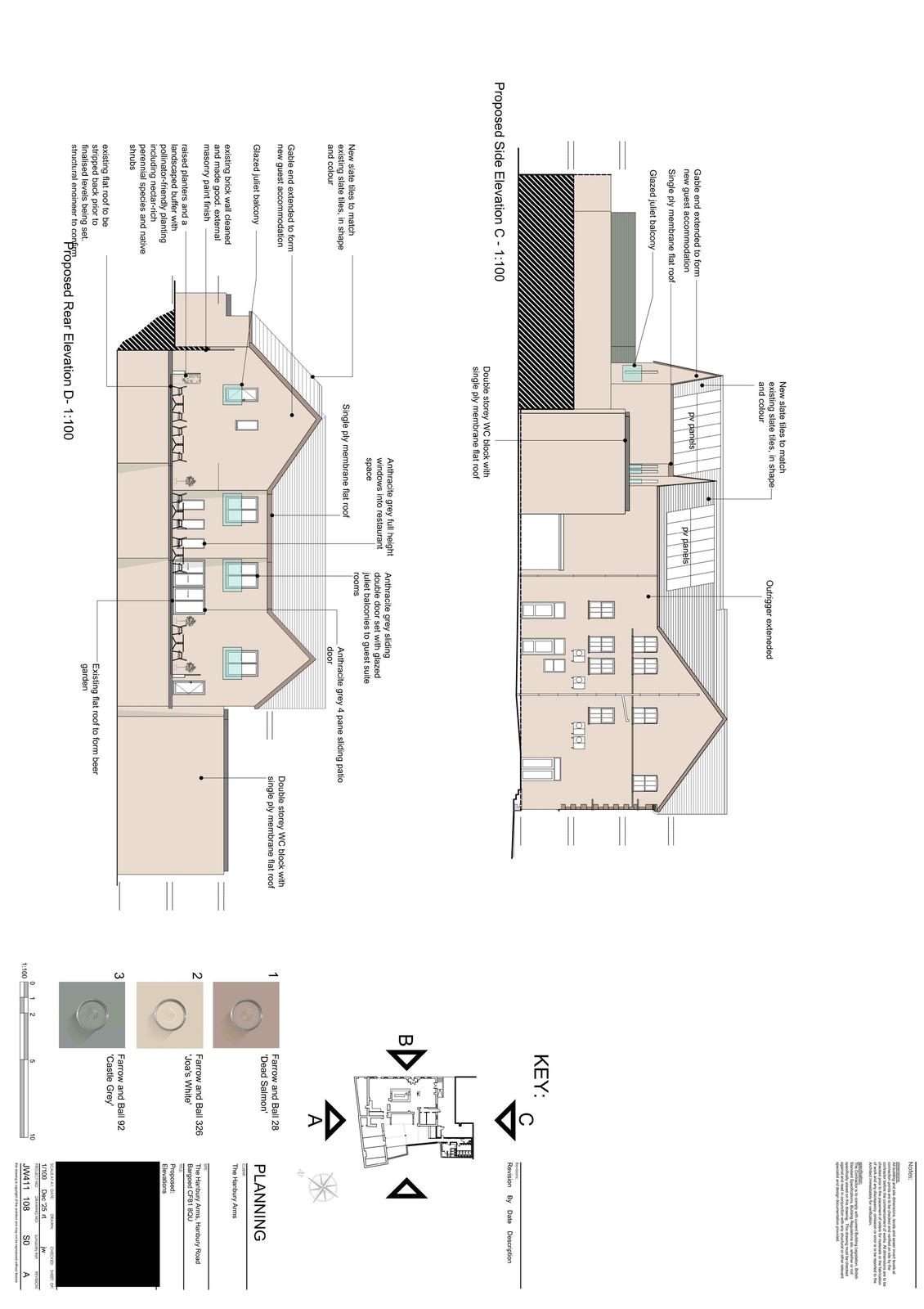
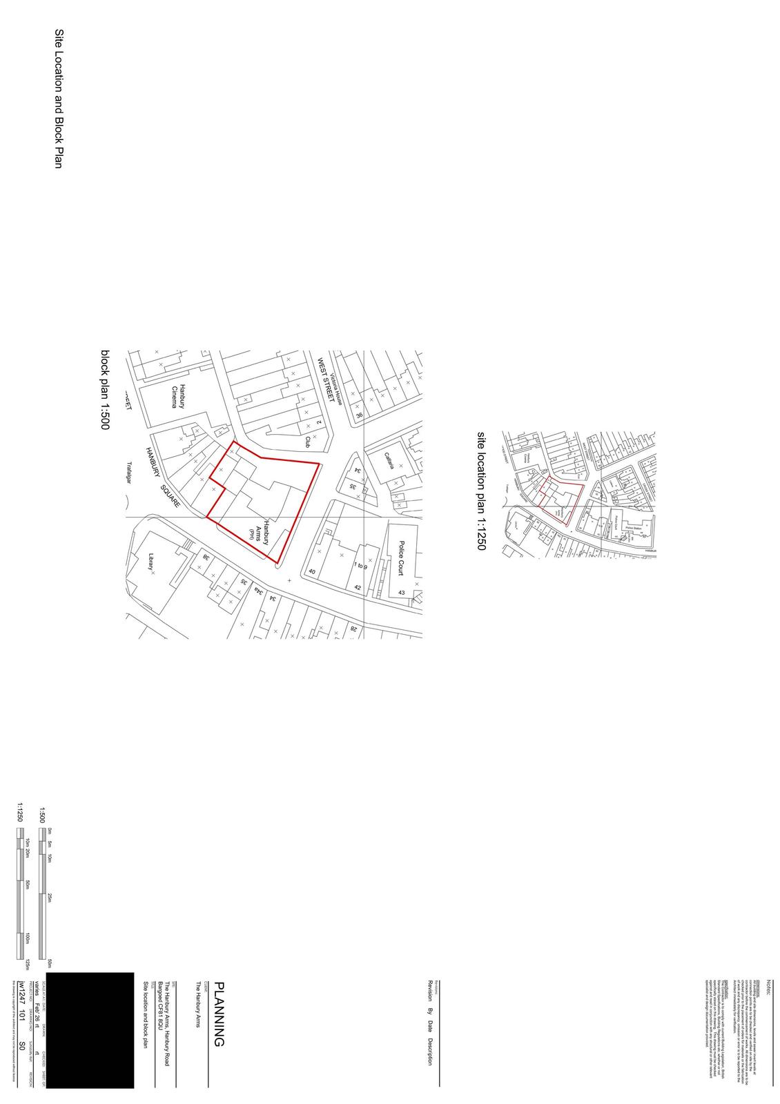
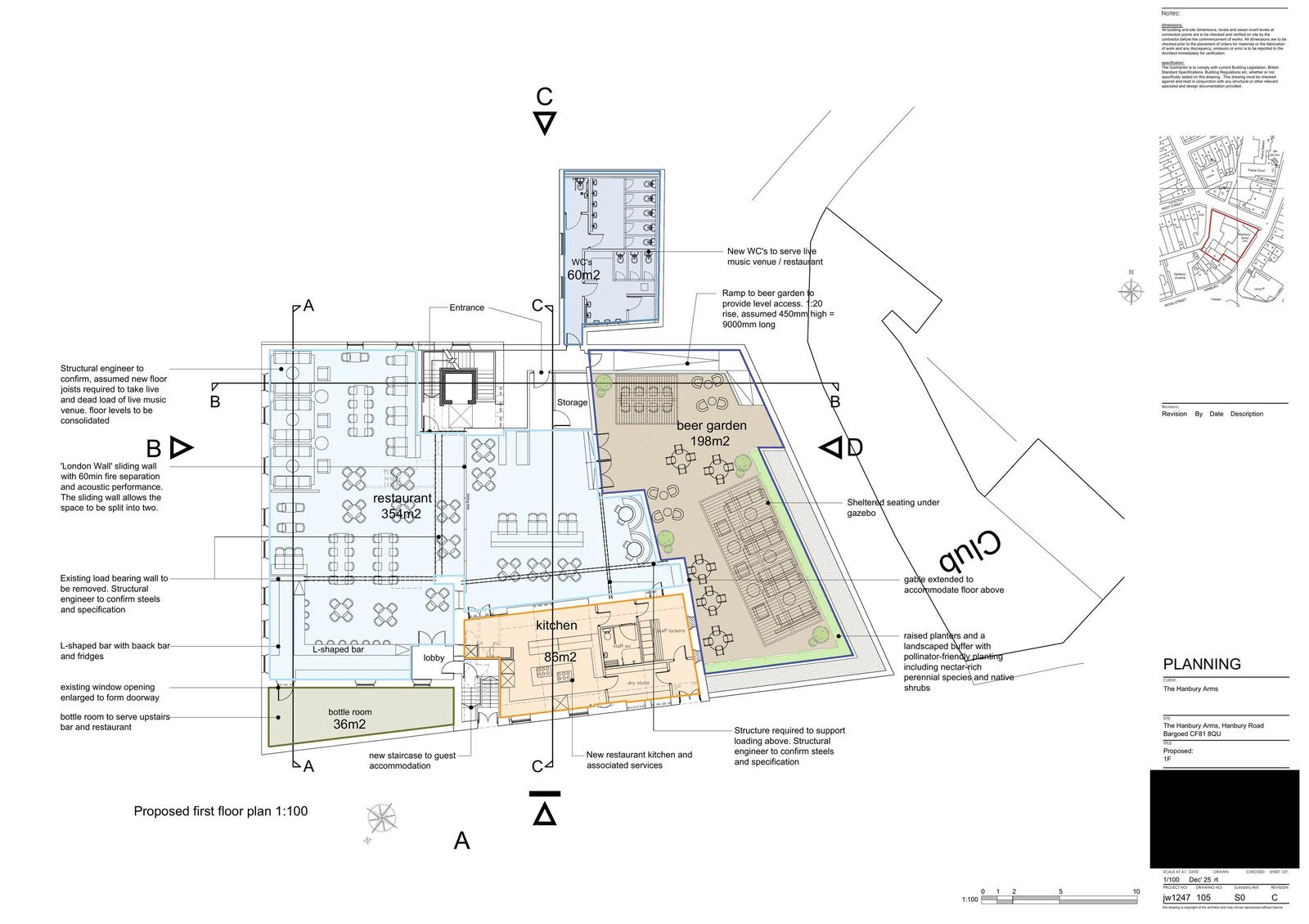
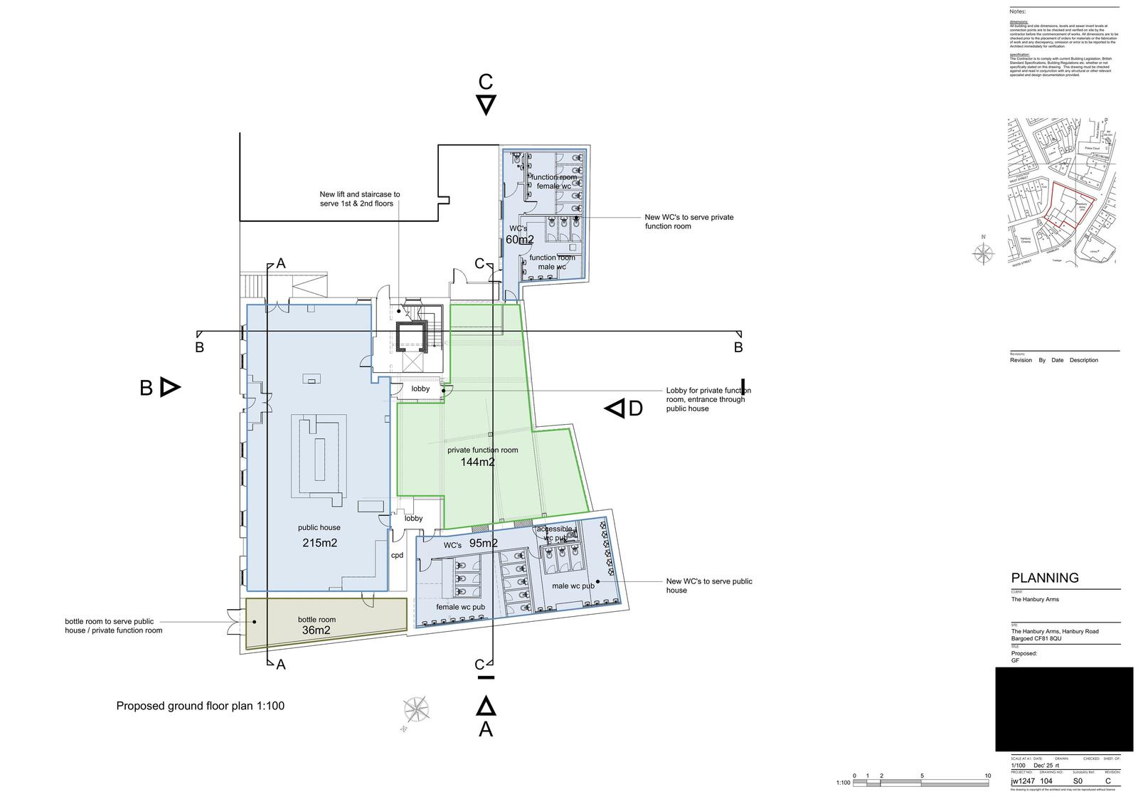
Change the use of Public House to mixed use to include public bar at ground floor, extension of the first floor to create restaurant and music venue with beer garden, and extension of second floor to provide 12 guest bedrooms
Documents
Have your say
Your comment matters. Councils must consider every representation that raises material planning considerations.