← Caerphilly County Borough Council
26/0124/HH
Caerphilly County Borough Council
Status
Awaiting decision
House extension
Received
Last month
New homes
0
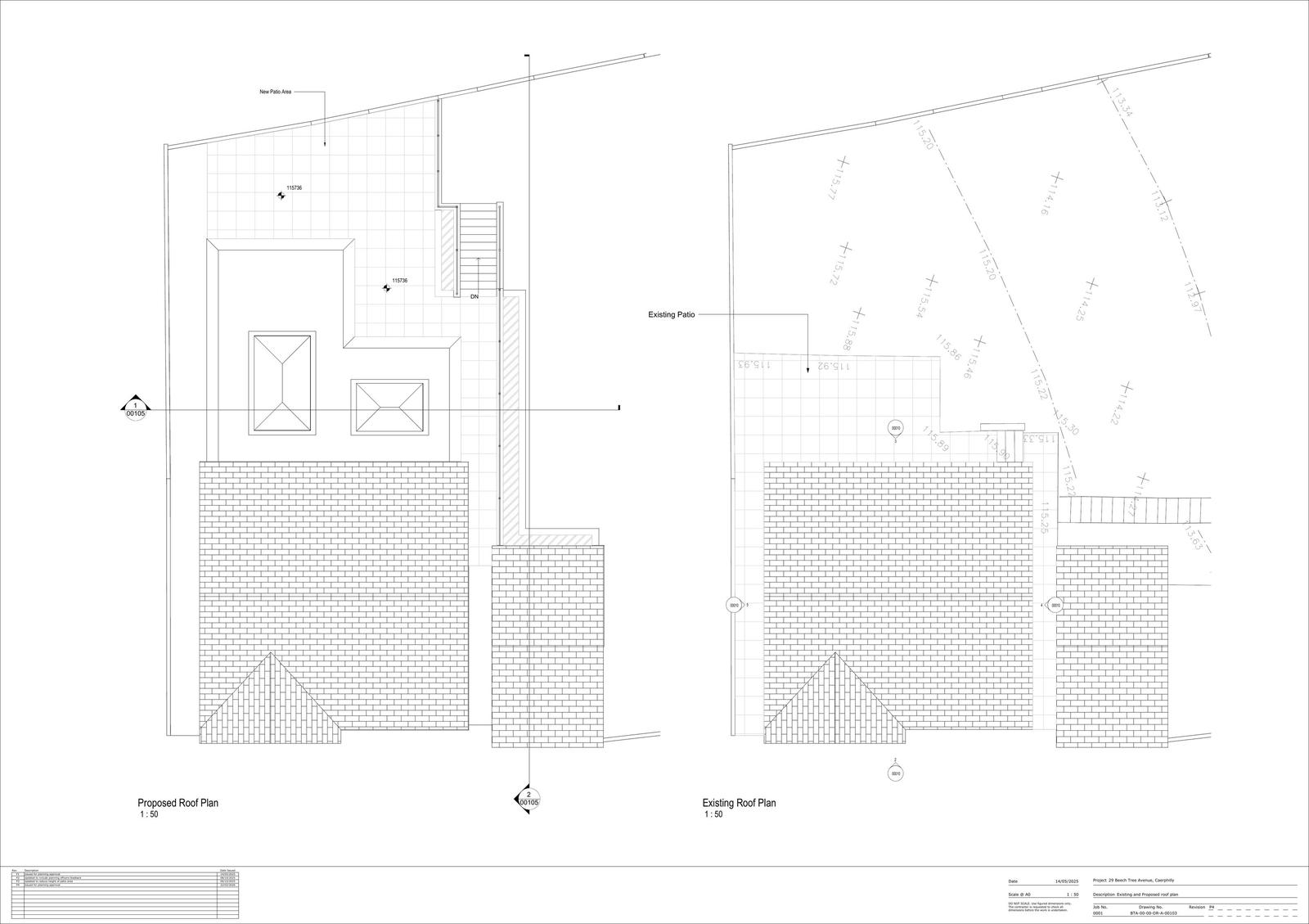
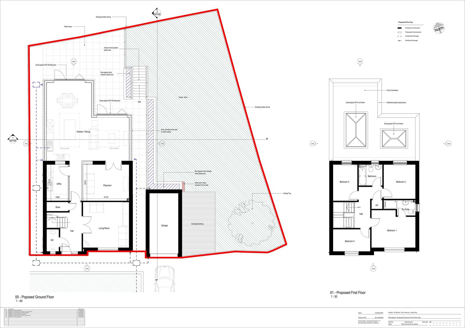
Full proposal
Construct single-storey brick extension with a flat roof and external patio area
Documents
Have your say
Your comment matters. Councils must consider every representation that raises material planning considerations.