← Calderdale Council

Status

Permit Change of use
Received
11 Nov 2024
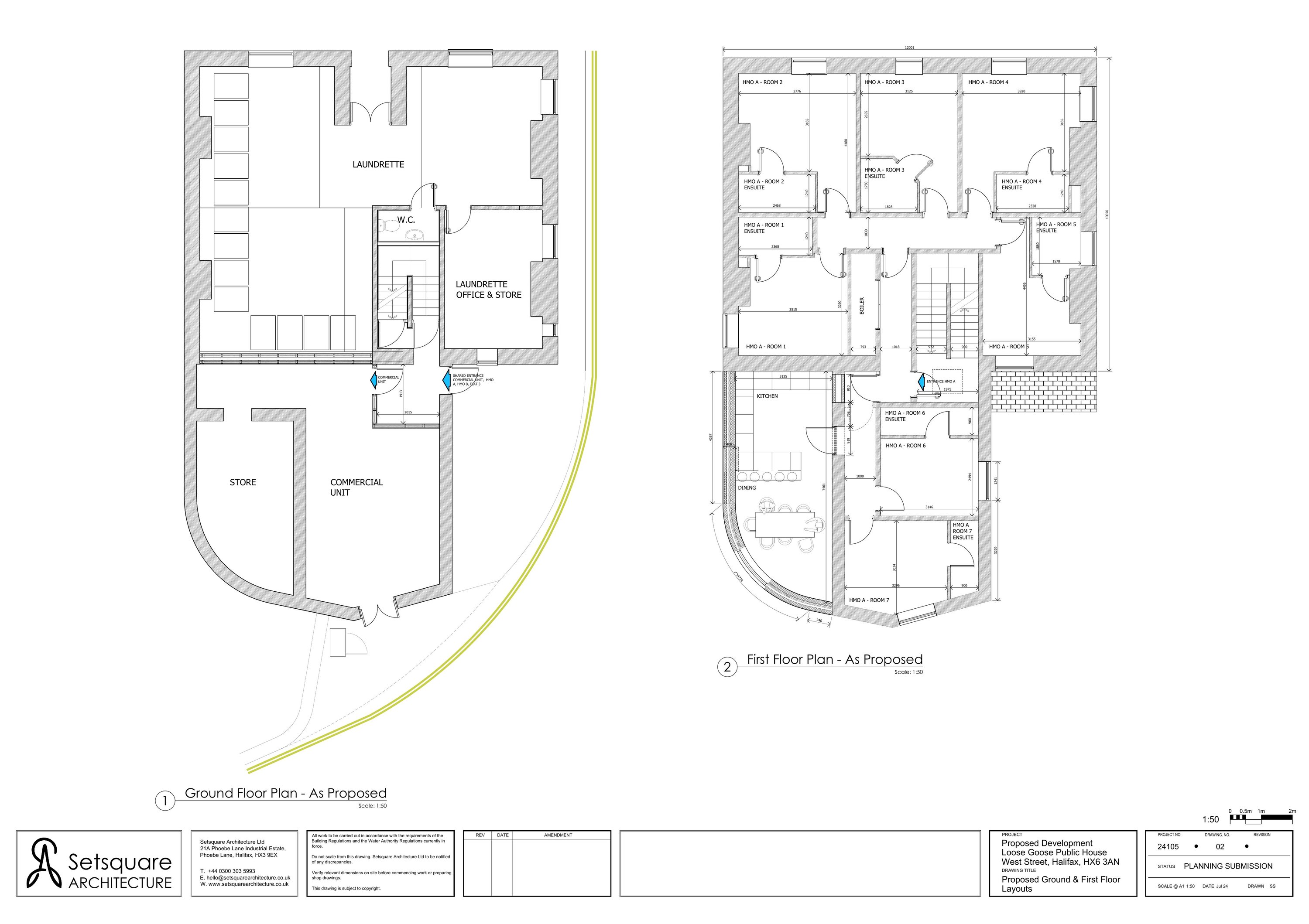
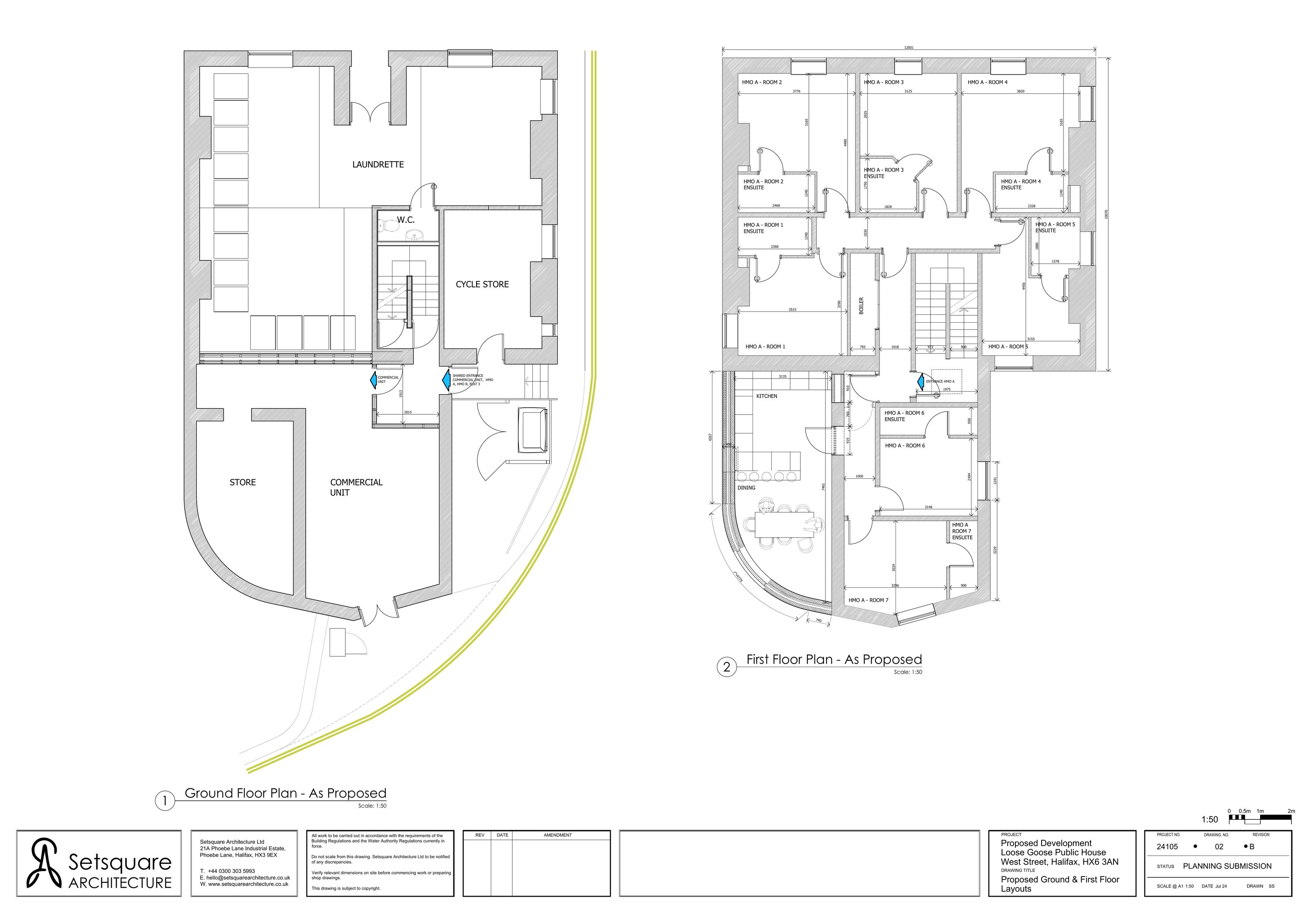
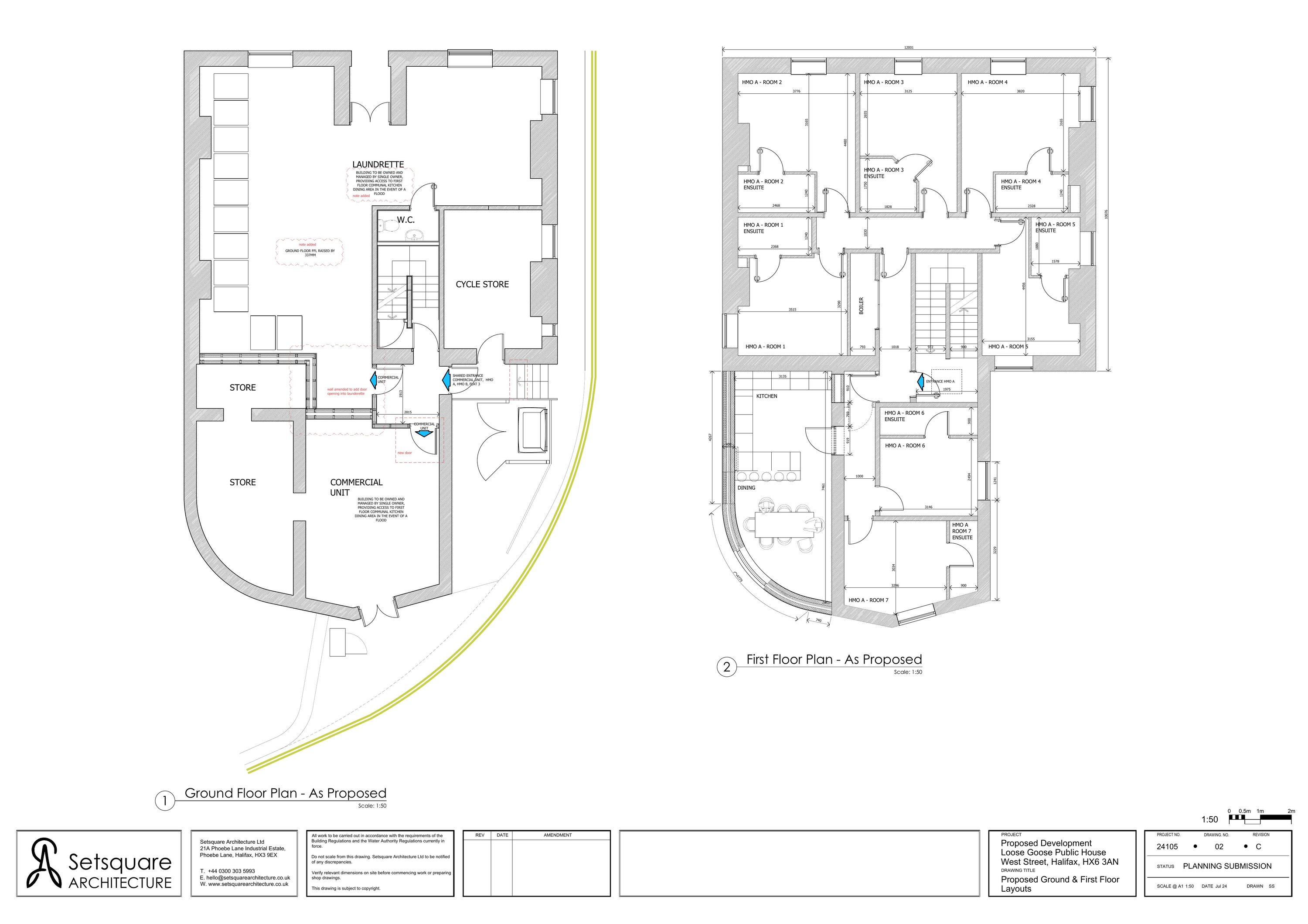
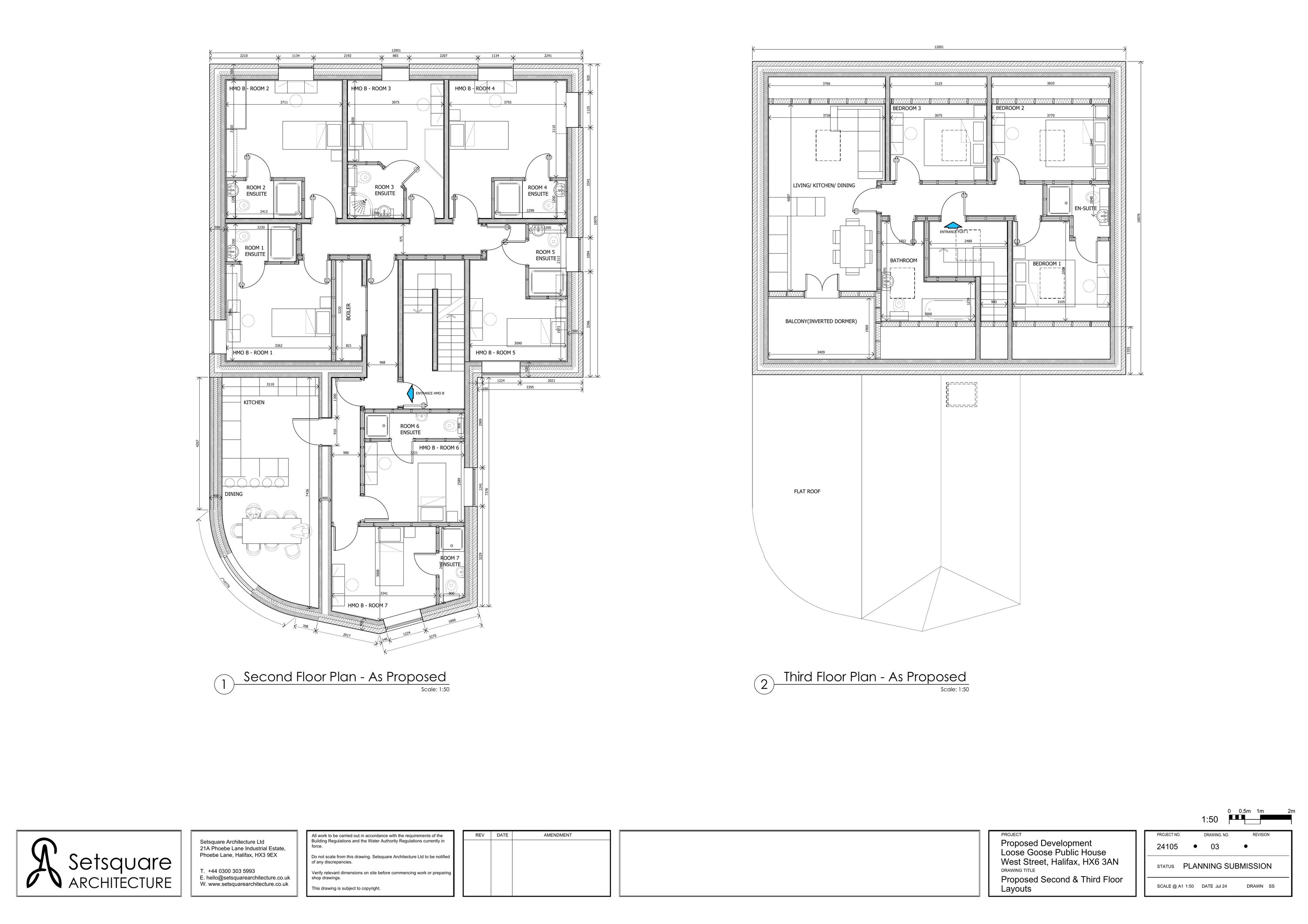
New homes
14

Full proposal

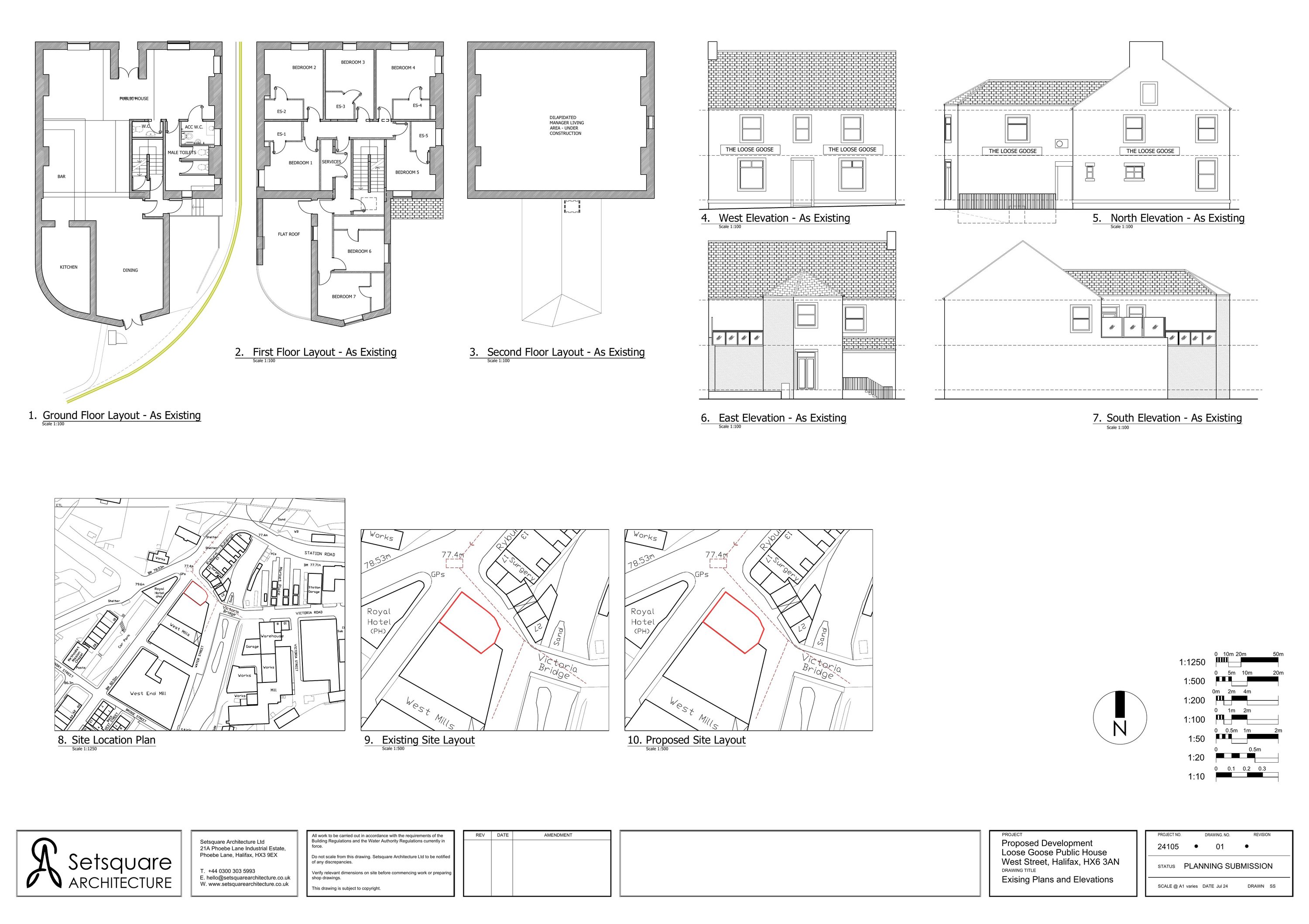
Additional storey to main building, two storey extension of existing flat roof extension to rear. The building will then consist of 2no. commercial units. The first floor will be a 7 bedroom HMO, second floor will also be a 7 bedroom HMO, the existing apartment will be raised up to the third floor

Documents

Application Form
Archived · Original link
Applicant Correspondence
Archived · Original link
Supporting Information
Archived · Original link
Supporting Information
Archived · Original link
Supporting Information
Archived · Original link
Supporting Information
Archived · Original link
Consultee Comment
Archived · Original link
CONSULTEE COMMENT SUBMITTED ONLINE
Consultee Comment
Not yet archived · Original link
Consultee Comment
Archived · Original link
Consultee Comment
Archived · Original link
Consultee Comment
Archived · Original link
Decision Notice
Archived · Original link
Supporting Information
Archived · Original link
Supporting Information
Archived · Original link
Consultee Comment
Archived · Original link
Consultee Comment
Archived · Original link
Supporting Information
Archived · Original link
Supporting Information
Archived · Original link
Supporting Information
Archived · Original link
Supporting Information
Archived · Original link
Supporting Information
Archived · Original link
Supporting Information
Archived · Original link
Supporting Information
Archived · Original link
Consultee Comment
Archived · Original link
Report
Archived · Original link
Photograph
Archived · Original link
Consultee Comment
Archived · Original link
Supporting Information
Archived · Original link
Supporting Information
Archived · Original link

Have your say

Your comment matters. Councils must consider every representation that raises material planning considerations.

Write a comment