← Calderdale Council

Status

Permit New housing
Received
11 Nov 2024
New homes
1

Full proposal

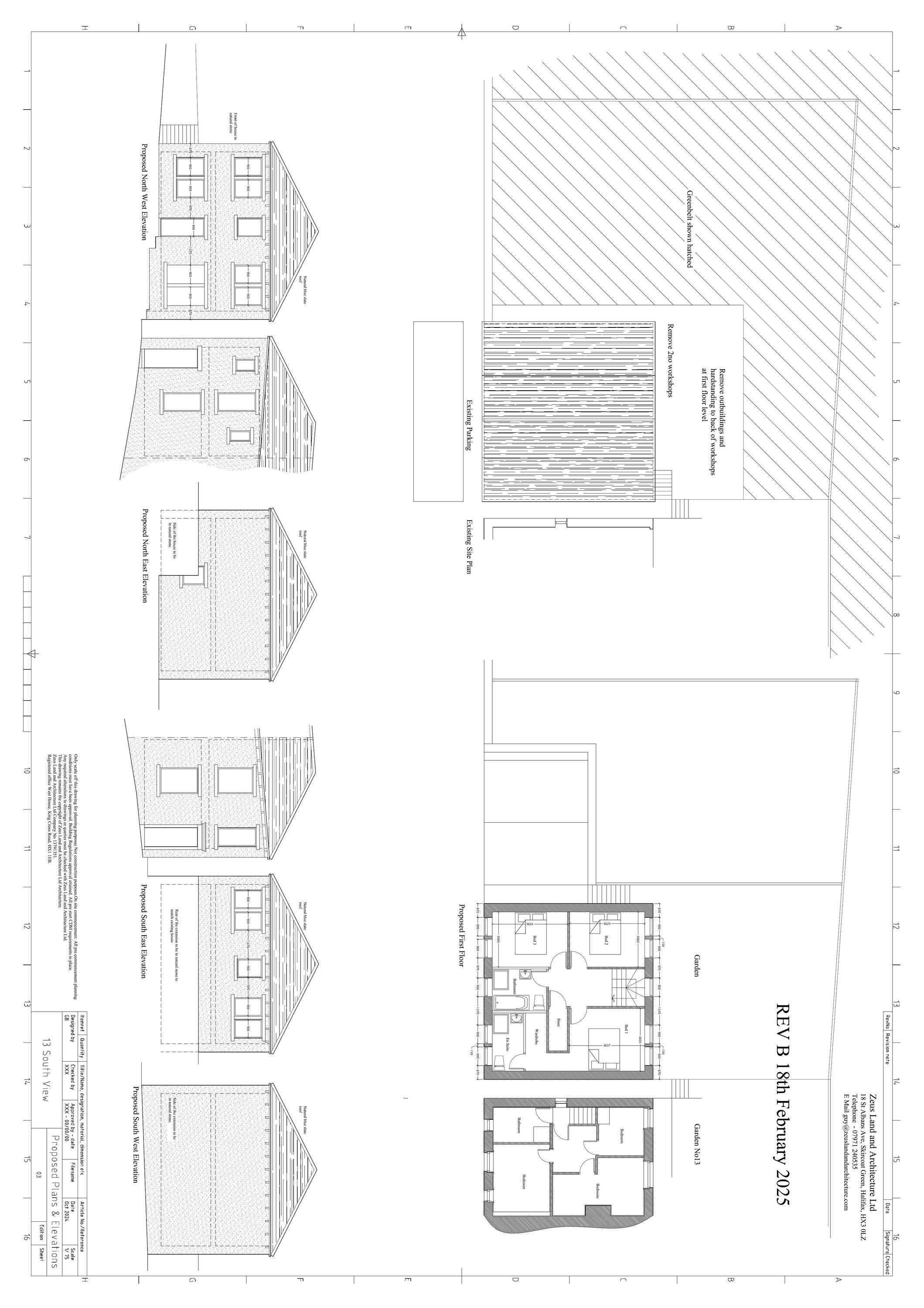
Demolish workshops and replace with 1no dwelling

Documents

(SUPERSEDED) LOCATION PLAN
Drawing
Not yet archived · Original link
(SUPERSEDED) PROPOSED ELEVATIONS AND FLOOR PLANS
Drawing
Not yet archived · Original link
AMENDED LOCATION PLAN
Drawing
Not yet archived · Original link
APPLICATION FORM REDACTED
Application Form
Not yet archived · Original link
BAT SCOPING SURVEY
Supporting Information
Not yet archived · Original link
COAL MINING RISK ASSESSMENT
Supporting Information
Not yet archived · Original link
CONSULTEE COMMENT SUBMITTED ONLINE
Consultee Comment
Not yet archived · Original link
CONSULTEE COMMENT SUBMITTED ONLINE
Consultee Comment
Not yet archived · Original link
Decision Notice
Decision Notice
Not yet archived · Original link
DPDC0 - PP AFFECT SET OF LB DEPARTURE
Other
Not yet archived · Original link
EXISTING FLOOR PLAN AND ELEVATIONS
Drawing
Not yet archived · Original link
EXT OF TIME AGREED
Applicant Correspondence
Not yet archived · Original link
EXT OF TIME AGREED
Applicant Correspondence
Not yet archived · Original link
HERITAGE STATEMENT
Supporting Information
Not yet archived · Original link
MINERAL STATEMENT
Supporting Information
Not yet archived · Original link
OFFICER REPORT
Report
Not yet archived · Original link
Drawing
Archived · Original link
SPECIES ENHANCEMENT STATEMENT
Supporting Information
Not yet archived · Original link
URBAN DESIGNER CONSULTATION RESPONSE
Consultations
Not yet archived · Original link

Have your say

Your comment matters. Councils must consider every representation that raises material planning considerations.

Write a comment