← Calderdale Council

Status

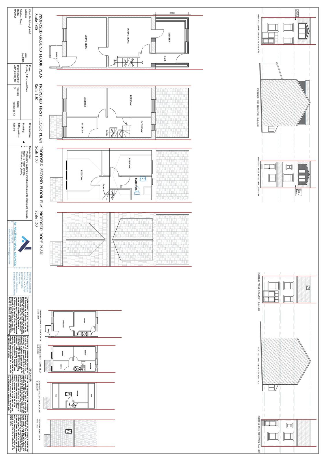
Refuse House extension
Received
09 Dec 2024
New homes
0

Full proposal

Front and rear dormer and single storey extension

Documents

Supporting Information
Archived · Original link
Photograph
Archived · Original link
Decision Notice
Archived · Original link
Drawing
Archived · Original link
Report
Archived · Original link
Supporting Information
Archived · Original link

Have your say

Your comment matters. Councils must consider every representation that raises material planning considerations.

Write a comment