← Calderdale Council

Status

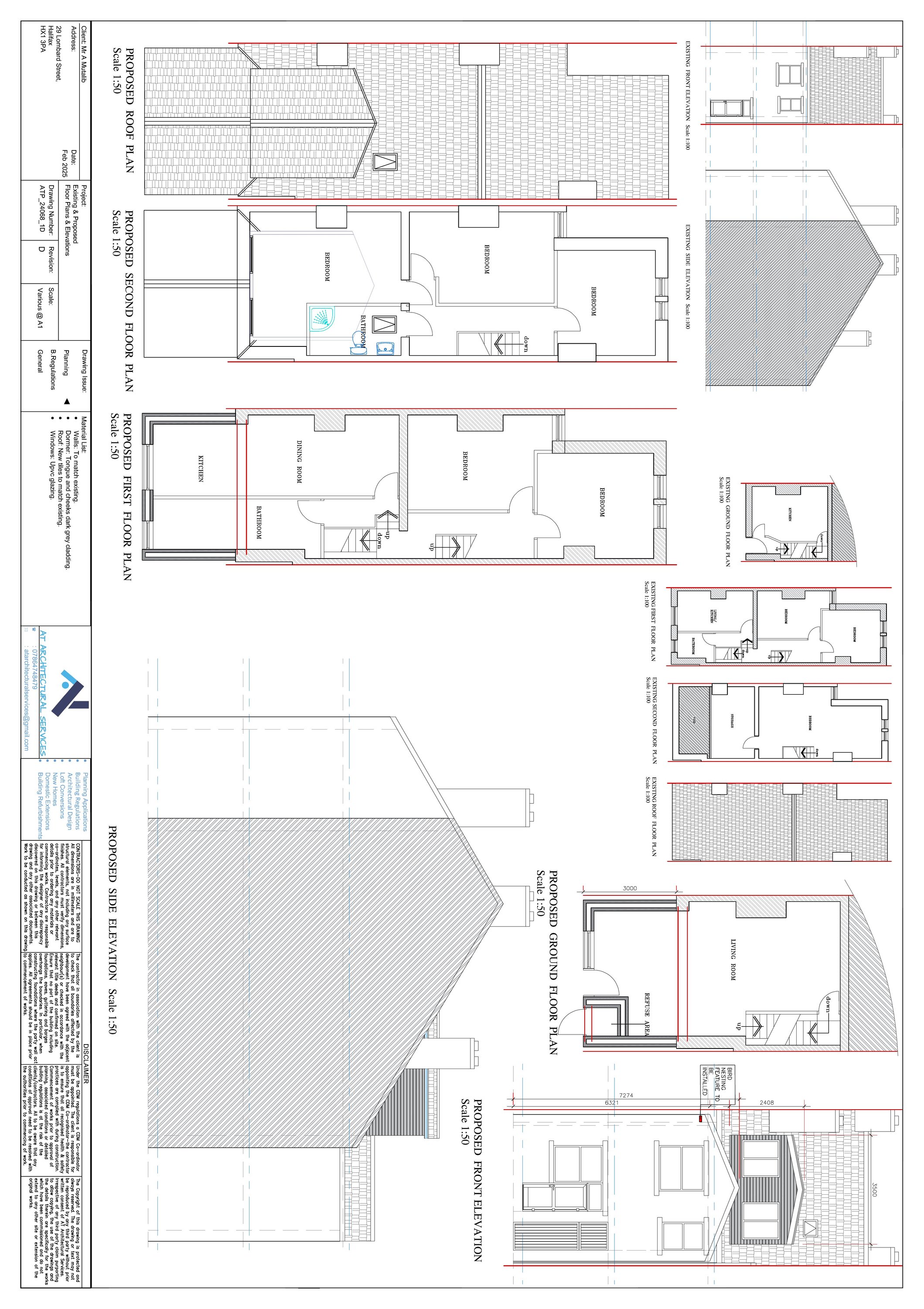
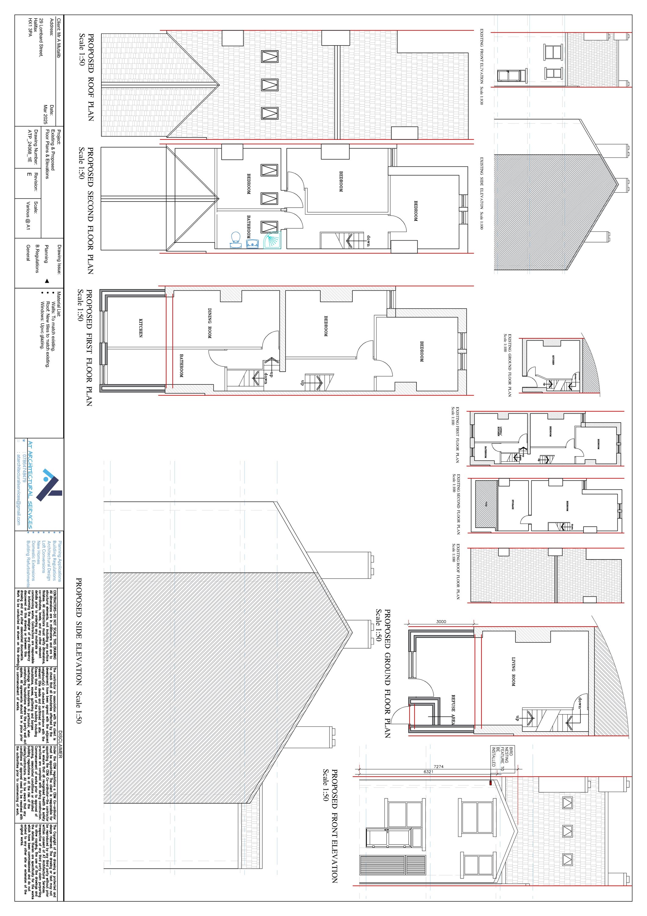
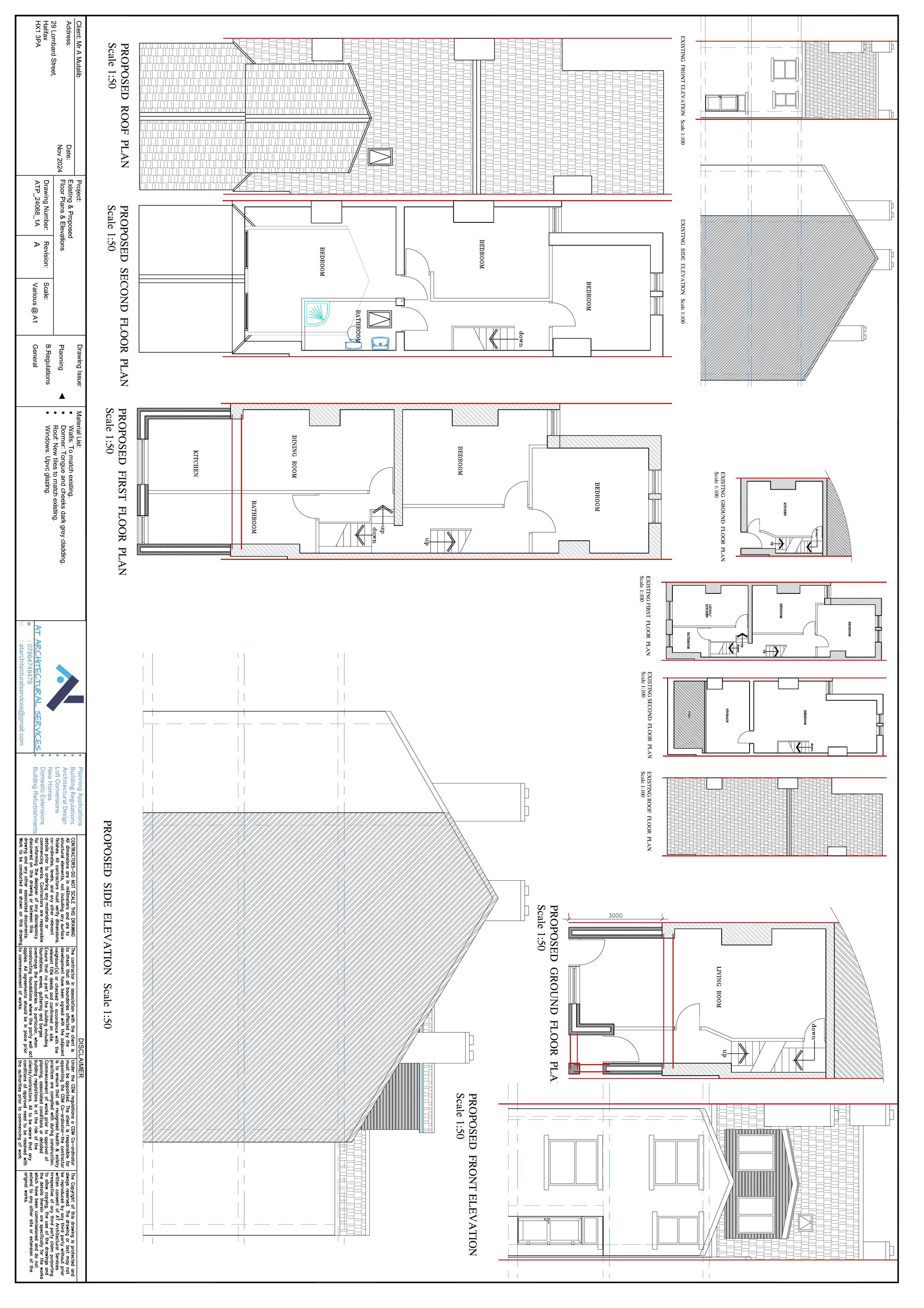
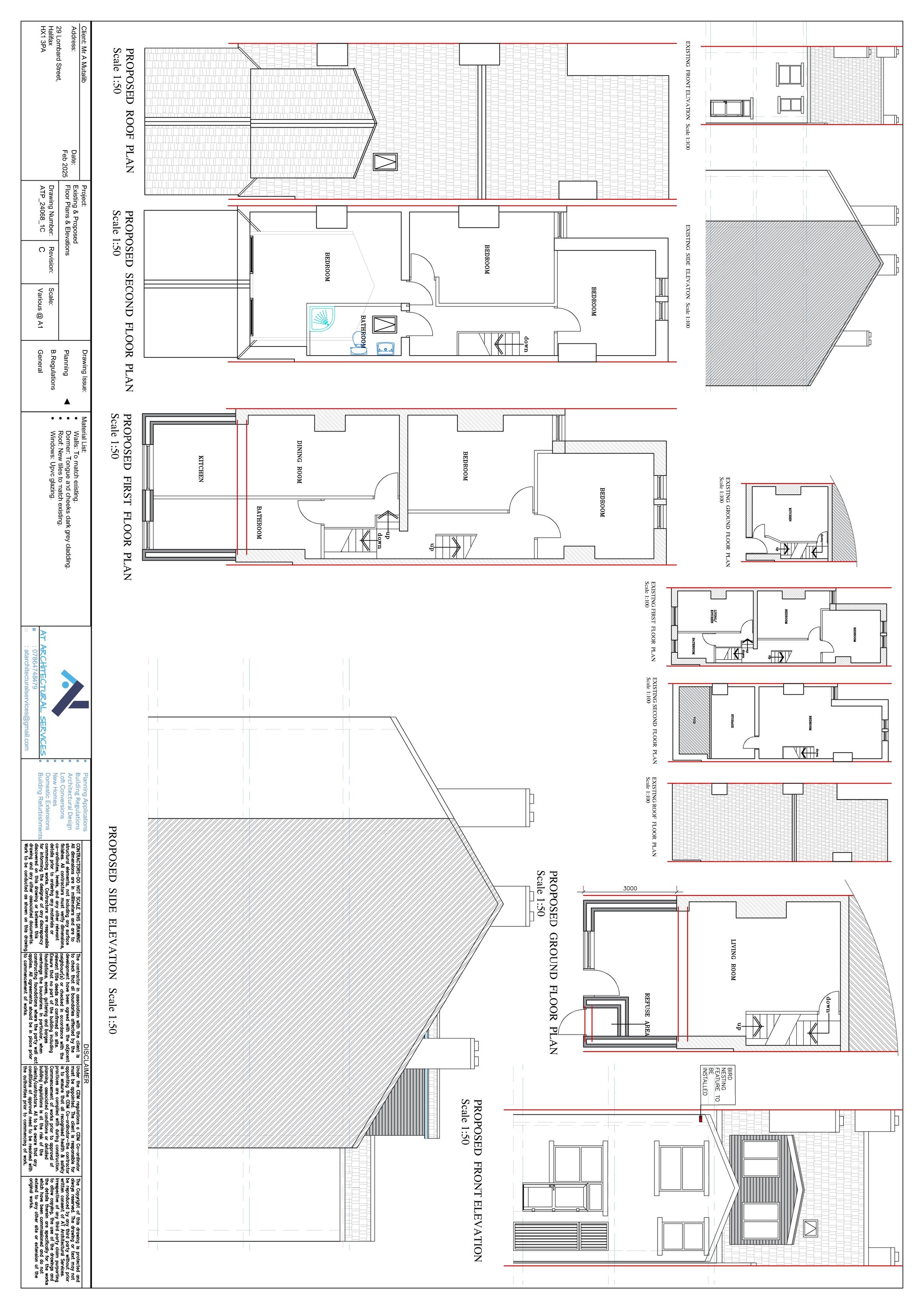
Permit House extension
Received
10 Dec 2024
New homes
0

Full proposal

Two storey front extension and addition of front dormer

Have your say

Your comment matters. Councils must consider every representation that raises material planning considerations.

Write a comment