← Calderdale Council

Status

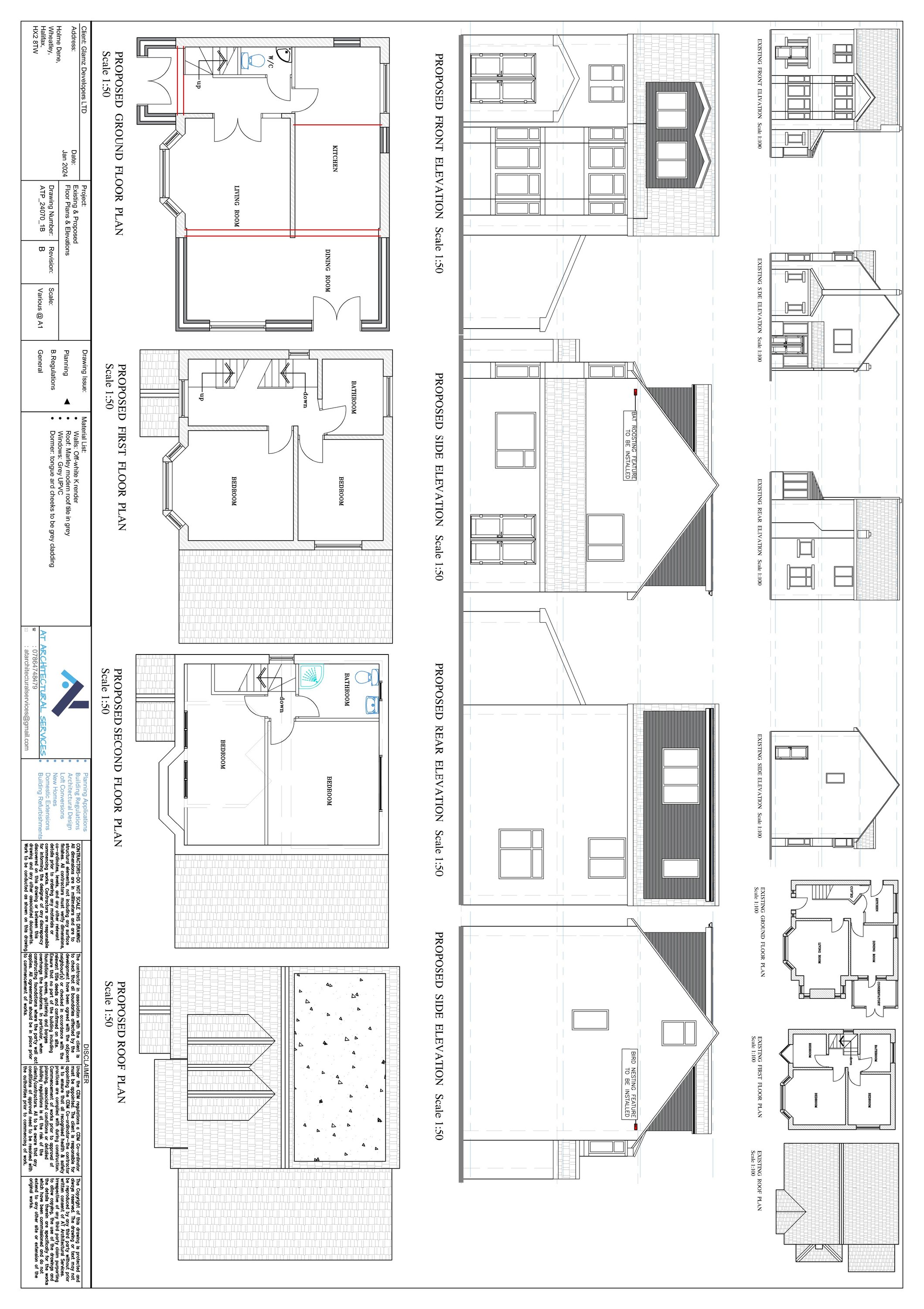
Permit House extension
Received
12 Dec 2024
New homes
0

Full proposal

Single storey side extension, rear dormer and front porch

Documents

Other
Archived · Original link
Supporting Information
Archived · Original link
Supporting Information
Archived · Original link
Supporting Information
Archived · Original link
Supporting Information
Archived · Original link
Supporting Information
Archived · Original link
Decision Notice
Archived · Original link
Drawing
Archived · Original link
Report
Archived · Original link
Supporting Information
Archived · Original link

Have your say

Your comment matters. Councils must consider every representation that raises material planning considerations.

Write a comment